
Located within the Riomar III residential complex, this south-facing semi-detached villa enjoys access to a large communal park area and swimming pool. Positioned on a desirable corner plot, the property offers both privacy and additional outdoor space.
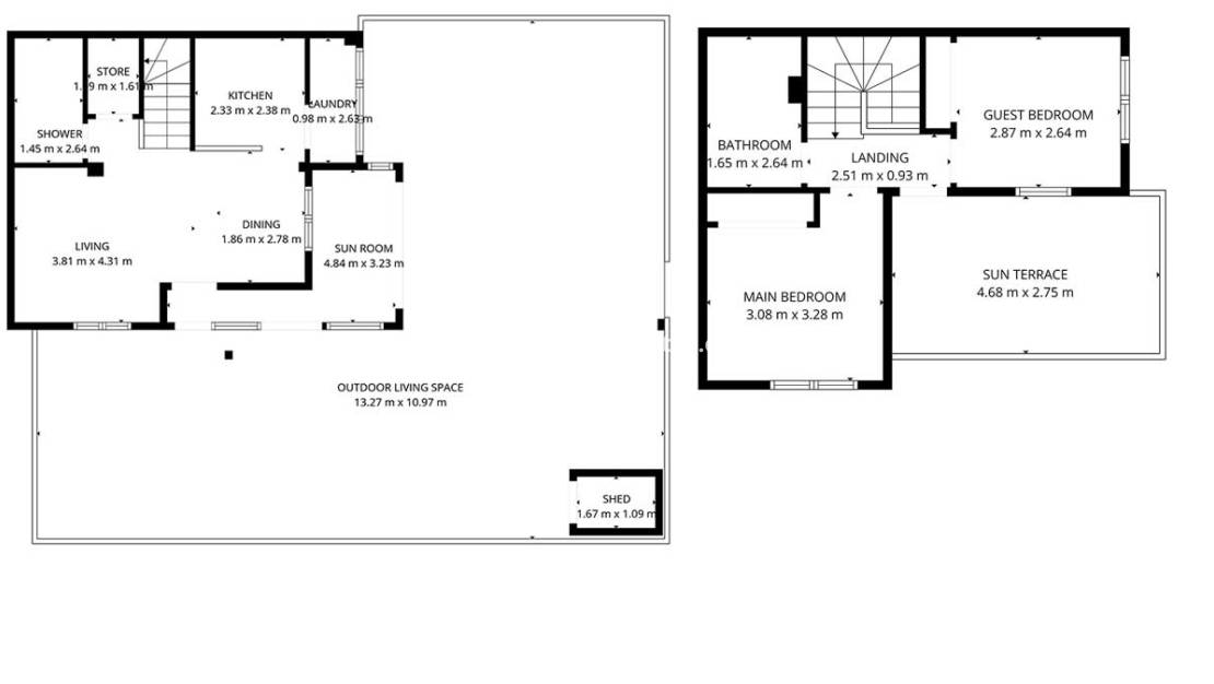
The home comprises two bedrooms and two full bathrooms, along with an open-plan kitchen and a separate laundry/utility room. The spacious lounge and dining area leads to a glazed terrace, providing extra living space ideal for dining or relaxing throughout the year.
Outside, the property sits on a well-sized corner plot with a low-maintenance patio garden and a generous upper terrace, perfect for enjoying the sunny climate. The home is equipped with air conditioning and benefits from both indoor and outdoor storage rooms.
The property is sold fully furnished and presented in excellent condition.
Riomar III is known for its well-maintained communal gardens and swimming pools. The complex is located in a peaceful neighbourhood with mature trees and green spaces, making it suitable for both year-round living and holiday use.
One of the key advantages of this location is its proximity to the beach. The beautiful beaches of Mil Palmeras are just 900 metres away, including Playa de Mil Palmeras, a Blue Flag beach with fine golden sand. Local bars, cafés, shops and other amenities are also within easy reach.
Contact us today to arrange a viewing of this well-presented home in an ideal coastal location.
Why Choose Solmar Estates?
We are proud members of the API – Agente de la Propiedad Inmobiliaria – an association that has been present in Spanish real estate for many years. Being a part of the API is an option taken by Real Estate Agents that includes obligations in training, experience & an extensive ethical code. API membership gives maximum guarantees to our buyers & vendors about our operation and qualifications. API registration number 00280.
For more information click on the link below
Save 1,000´s on your Spanish property purchase buy using one of our preferred currency exchange partners
Need finance to help you purchase dream Spanish property? We work with the Mortgage Direct the number 1 International mortgage broker in Spain
On top of the purchase price you need to allow 10% for purchase transfer tax & a further 3,500 euros to cover notary taxes & charges & solicitor / legal charges including your NIE application
If you are going to purchase with a Spanish mortgage you will need to allow for an extra 3,500 euros on top of the amounts above to cover mortgage broker fees, bank mortgage commission, bank valuation & arrangement fees & insurances. Maximum mortgage available for non- residents is 70% of the purchase price
Register NOW for the latest currency updates & mortgage offers as we can genuinely save you 1,000´s & 1,000´s on your Spanish property purchase
The information given above is subject to change and does not form part of any contract
C.C. Playa Flamenca Unit 129,
Calle Niagara, 62,
03189 Playa Flamenca,
Alicante, Spain
First of all, thanks for contacting us.
We have received your request regarding the property reference: R-91912. One of our agents will contact you as soon as possible.
First of all, thanks for contacting us.
We have received a request for a report if you lower the price of the property with the reference: R-91912
In the meantime, please have a look at this selection of similar properties, that might be of interest to you:
