+34 966 116 650 +34 678 933 450 info@solmarestates.com
C.C. Playa Flamenca Unit 129, Calle Niagara, 62, 03189 Playa Flamenca, Alicante, Spain

Apartment · New Build Costa Blanca South · Villajoyosa · Playa del Torres

Ref.: N-14388
74m2
2
2
Yes

Features

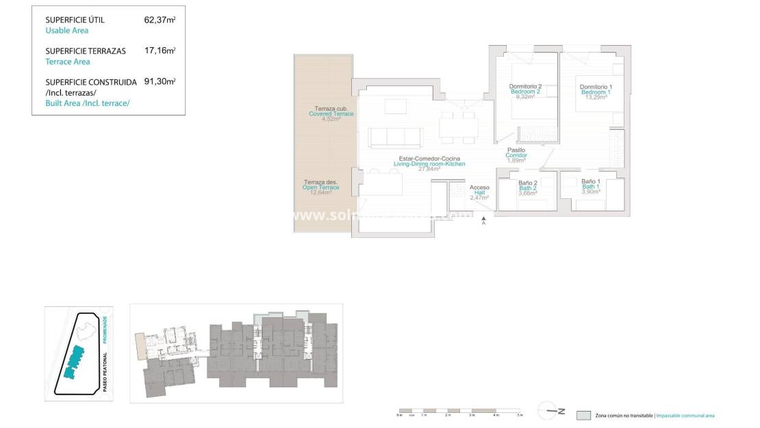
Bedrooms: 2
Bathrooms: 2
Built: 74m2
Energy Rating: B
Terrace: 19 Msq.
Useable Build Space: 64 Msq.
Parking - Space
Communal Pool
Elevator/Lift
Gated
Number of Parking Spaces: 1
Near Schools
Near Commercial Center
Location: Coastal, Urbanisation
Gym
Double Bedrooms: 2
Air Conditioning: Pre-Installed
Beach: 200 Meters
Energy Rating
Energy Rating:
B

Description

NEW BUILD COMPLEX IN VILLAYOJOSA New Build residential complex of 42 apartments and penthouses in Villayojosa located few steps from the beach. Luxury properties with 1, 2 and 3-bedrooms designed down to the smallest detail. Just 200 meters from the sea, with spacious terraces are perfect for relaxing and enjoying the sea views. Located in a natural environment, this promotion has a swimming pool, gardens, children’s area, equipped gym and sauna. Ground floor properties with 1 bedroom and 1 bathroom with terraces and private gardens. Apartments with 1 and 2 bedrooms and 1 and 2 bathrooms with large terraces where you have a covered area and an open area. Penthouses with 3 bedrooms and 2 bathrooms with terraces and private solariums. All properties has private parking space. Villajoyosa is a hidden pearl on the Spanish Costa Blanca. This colourful fishing village is located between Benidorm and El Campello, about 30 minutes by car from Alicante airport. In recent years, the idyllic town has become a sought-after location for second-home residents and tourists. Villajoyosa has a lot to offer, from the wide sandy beach to the narrow and colourful streets of the historic town centre. Today, more than thirty thousand people live in Villajoyosa and, above all, the colourful houses offer tons of inspiration for the many artists. Villajoyosa is also known for its delicious Valor chocolate factory museum.

Location

The very best currency exchange & mortgage offers

Save 1,000´s on your Spanish property purchase buy using one of our preferred currency exchange partners

Need finance to help you purchase dream Spanish property? We work with the Mortgage Direct the number 1 International mortgage broker in Spain

Calculate mortgages

Currency exchange

  • Pounds: 386.273 GBP
  • Russian ruble: 386.273 RUB
  • Swiss franc: 409.356 CHF
  • Chinese yuan: 3.562.982 CNY
  • Dollar: 521.184 USD
  • Swedish krona: 4.814.900 SEK
  • The Norwegian crown: 4.873.863 NOK

Purchase costs

On top of the purchase price you need to allow 10% for purchase transfer tax & a further 3,500 euros to cover notary taxes & charges & solicitor / legal charges including your NIE application

If you are going to purchase with a Spanish mortgage you will need to allow for an extra 3,500 euros on top of the amounts above to cover mortgage broker fees, bank mortgage commission, bank valuation & arrangement fees & insurances. Maximum mortgage available for non- residents is 70% of the purchase price

Register NOW for the latest currency updates & mortgage offers as we can genuinely save you 1,000´s & 1,000´s on your Spanish property purchase

The information given above is subject to change and does not form part of any contract

Ask for information

Responsable del tratamiento: Solmar Estates, Finalidad del tratamiento: Gestión y control de los servicios ofrecidos a través de la página Web de Servicios inmobiliarios, Envío de información a traves de newsletter y otros, Legitimación: Por consentimiento, Destinatarios: No se cederan los datos, salvo para elaborar contabilidad, Derechos de las personas interesadas: Acceder, rectificar y suprimir los datos, solicitar la portabilidad de los mismos, oponerse altratamiento y solicitar la limitación de éste, Procedencia de los datos: El Propio interesado, Información Adicional: Puede consultarse la información adicional y detallada sobre protección de datos Aquí.

© 2026 Solmar Estates · Legal · Privacy · Terms & conditions apply · Cookies · Web map · Design: Mediaelx

Contact WhatsApp