
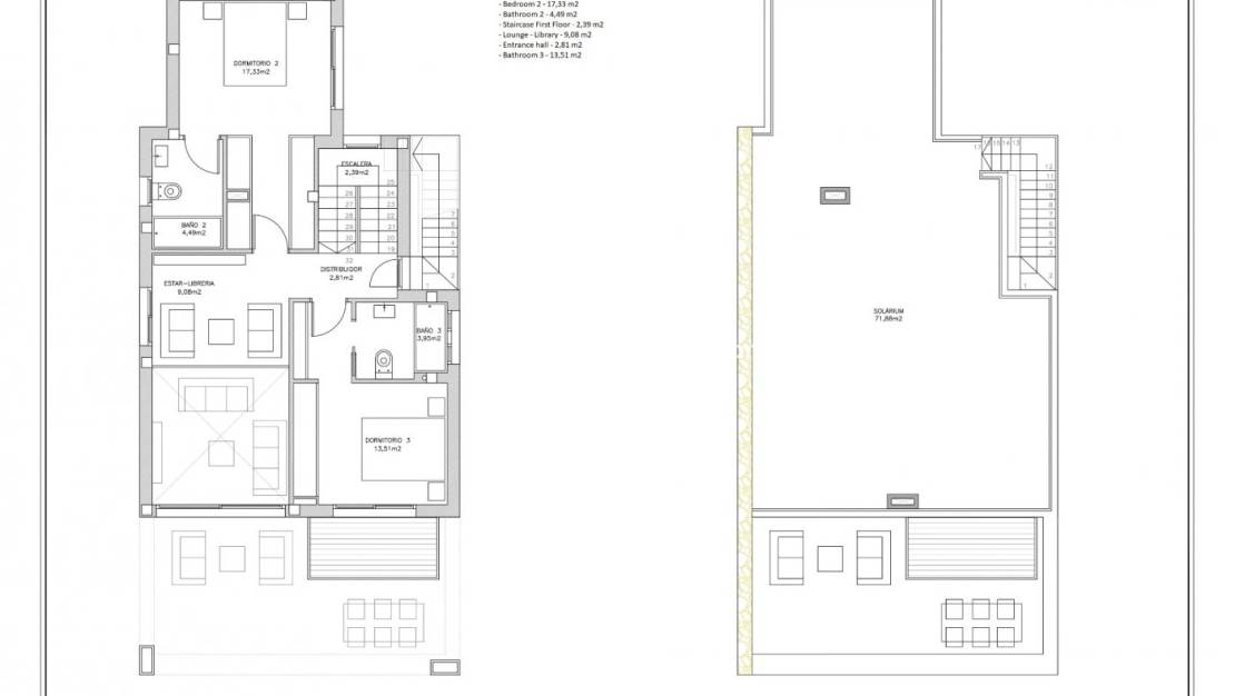
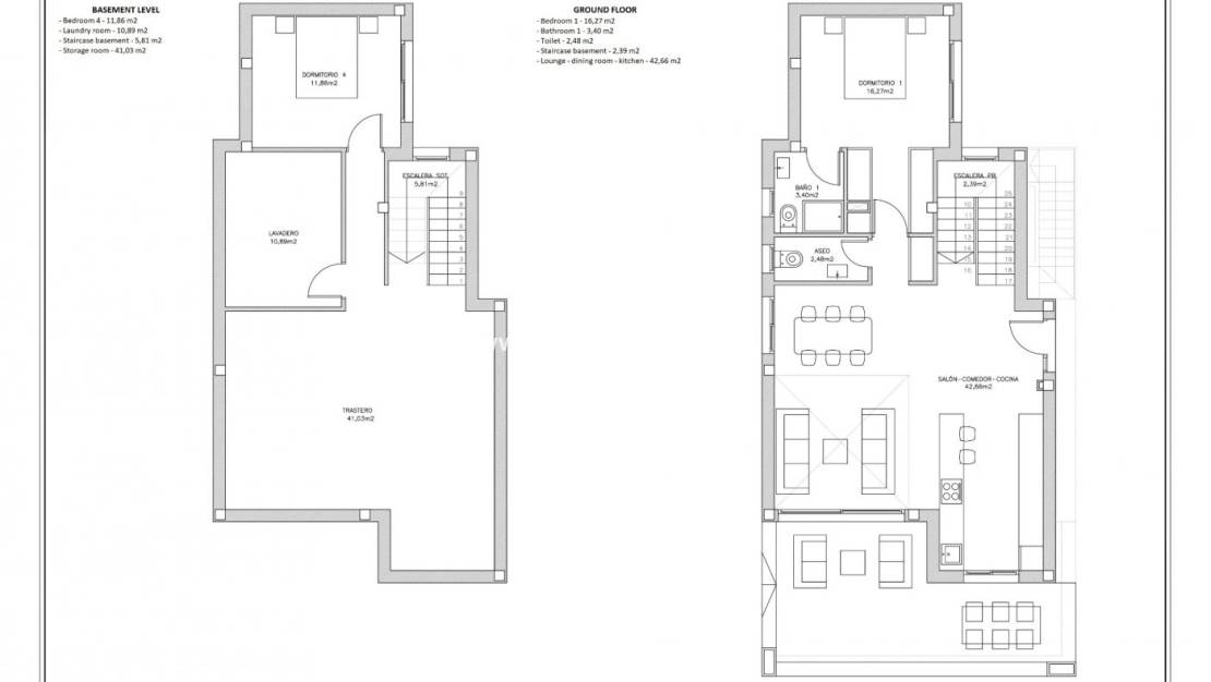
2 NEW BUILD VILLAS IN TORREVIEJA 2 New Beautiful villas in Torrevieja. Villas has 4 bedrooms, 4 bathrooms, open plan kitchen with the lounge area, fitted wardrobes, private garden with the pool and off road parking space, private solarium and basement. Villas located 15 minutes walk to the famous Playa de La Mata (5 minutes by car). Torrevieja is a Spanish town in the province of Alicante, on the Costa Blanca. It is known for its typically Mediterranean climate and coastline. It has boardwalks with resorts along its sandy beaches. The small Museum of the Sea and Salt houses exhibitions on the fishing and salt history of the city. In the interior, the Lagunas de La Mata-Torrevieja Natural Park has trails and two salty lagoons, one pink and the other green. Alicante airport located 40 minutes away and Murcia airport about 1 hour away.
Save 1,000´s on your Spanish property purchase buy using one of our preferred currency exchange partners
Need finance to help you purchase dream Spanish property? We work with the Mortgage Direct the number 1 International mortgage broker in Spain
On top of the purchase price you need to allow 10% for purchase transfer tax & a further 3,500 euros to cover notary taxes & charges & solicitor / legal charges including your NIE application
If you are going to purchase with a Spanish mortgage you will need to allow for an extra 3,500 euros on top of the amounts above to cover mortgage broker fees, bank mortgage commission, bank valuation & arrangement fees & insurances. Maximum mortgage available for non- residents is 70% of the purchase price
Register NOW for the latest currency updates & mortgage offers as we can genuinely save you 1,000´s & 1,000´s on your Spanish property purchase
The information given above is subject to change and does not form part of any contract
C.C. Playa Flamenca Unit 129,
Calle Niagara, 62,
03189 Playa Flamenca,
Alicante, Spain
First of all, thanks for contacting us.
We have received your request regarding the property reference: N-89198. One of our agents will contact you as soon as possible.
First of all, thanks for contacting us.
We have received a request for a report if you lower the price of the property with the reference: N-89198
In the meantime, please have a look at this selection of similar properties, that might be of interest to you:
