+34 966 116 650 +34 678 933 450 info@solmarestates.com
C.C. Playa Flamenca Unit 129, Calle Niagara, 62, 03189 Playa Flamenca, Alicante, Spain

Detached Villa · New Build Costa Blanca South · La Romana · Batistes

Ref.: N-24691
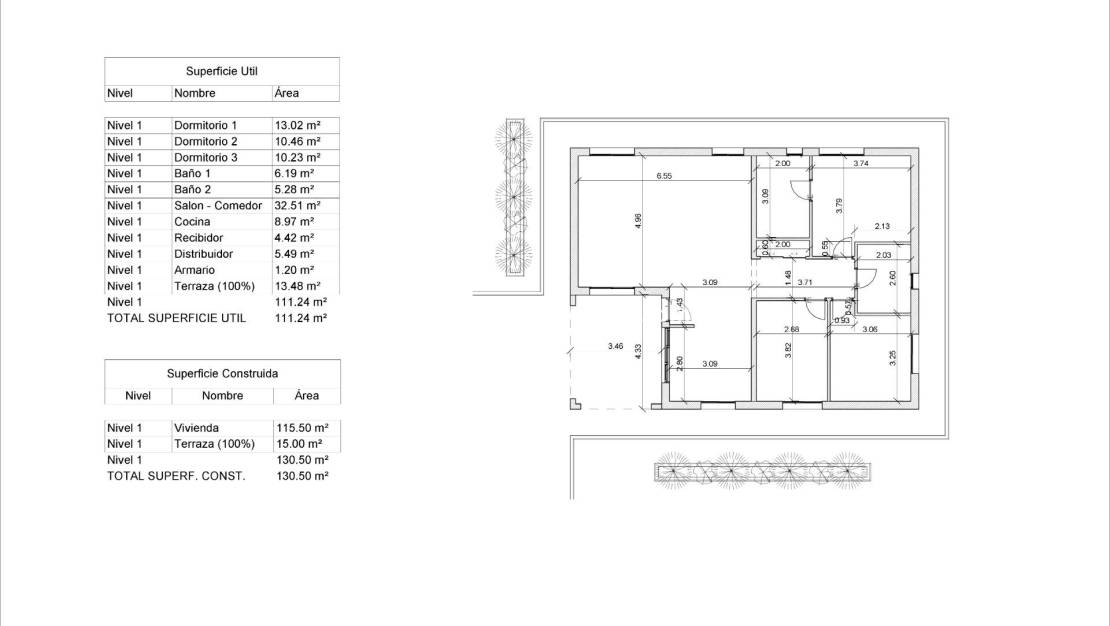
130m2
10.227m2
3
2
Yes

Features

Bedrooms: 3
Bathrooms: 2
Built: 130m2
Plot: 10.227m2
Energy Rating: B
Private Pool
Garden
Gated
Number of Parking Spaces: 1
Near Schools
Air Conditioning: Pre-Installed
Double Bedrooms: 3
Useable Build Space: 110 Msq.
Terrace: 15 Msq.
Location: Mountain
Parking - Space
Beach: 40000 Meters
Energy Rating
Energy Rating:
B

Description

Newly built villas located in La Romana. Newly built villas with several models to choose from, with 2 or 3 bedrooms, one or two floors, and built with slabs or a frame structure. The exact price will be calculated depending on the model and plot chosen. All villas are built on rustic plots of over 10,000 m2, of which 2,500 m2 will be fenced. The villas have an open-plan kitchen with living room, fitted wardrobes, private swimming pool, porch and outdoor parking space. There are several plots to choose from. The price has been calculated based on a plot priced at £55,000 (if another plot is chosen, the difference will be paid according to the price of the plot). Self-build project, delivery in approximately 12 months from the granting of the licence. If you are looking for a peaceful setting, close to typical Spanish villages away from mass tourism, surrounded by mountains, with a very large plot and about 30 minutes from the sea, this is your home. La Romana is a typical Spanish village with all the amenities you need for everyday life, surrounded by mountains and with several natural areas nearby where you can go hiking or mountain biking. Located 30 minutes from Alicante airport.

Location

The very best currency exchange & mortgage offers

Save 1,000´s on your Spanish property purchase buy using one of our preferred currency exchange partners

Need finance to help you purchase dream Spanish property? We work with the Mortgage Direct the number 1 International mortgage broker in Spain

Calculate mortgages

Currency exchange

  • Pounds: 328.115 GBP
  • Russian ruble: 328.115 RUB
  • Swiss franc: 347.722 CHF
  • Chinese yuan: 3.026.533 CNY
  • Dollar: 442.714 USD
  • Swedish krona: 4.089.960 SEK
  • The Norwegian crown: 4.140.045 NOK

Purchase costs

On top of the purchase price you need to allow 10% for purchase transfer tax & a further 3,500 euros to cover notary taxes & charges & solicitor / legal charges including your NIE application

If you are going to purchase with a Spanish mortgage you will need to allow for an extra 3,500 euros on top of the amounts above to cover mortgage broker fees, bank mortgage commission, bank valuation & arrangement fees & insurances. Maximum mortgage available for non- residents is 70% of the purchase price

Register NOW for the latest currency updates & mortgage offers as we can genuinely save you 1,000´s & 1,000´s on your Spanish property purchase

The information given above is subject to change and does not form part of any contract

Ask for information

Responsable del tratamiento: Solmar Estates, Finalidad del tratamiento: Gestión y control de los servicios ofrecidos a través de la página Web de Servicios inmobiliarios, Envío de información a traves de newsletter y otros, Legitimación: Por consentimiento, Destinatarios: No se cederan los datos, salvo para elaborar contabilidad, Derechos de las personas interesadas: Acceder, rectificar y suprimir los datos, solicitar la portabilidad de los mismos, oponerse altratamiento y solicitar la limitación de éste, Procedencia de los datos: El Propio interesado, Información Adicional: Puede consultarse la información adicional y detallada sobre protección de datos Aquí.

© 2026 Solmar Estates · Legal · Privacy · Terms & conditions apply · Cookies · Web map · Design: Mediaelx

Contact WhatsApp