+34 966 116 650 +34 678 933 450 info@solmarestates.com
C.C. Playa Flamenca Unit 129, Calle Niagara, 62, 03189 Playa Flamenca, Alicante, Spain

Detached Villa · New Build Costa Blanca South · Aspe · Poligono 19

Ref.: N-63923
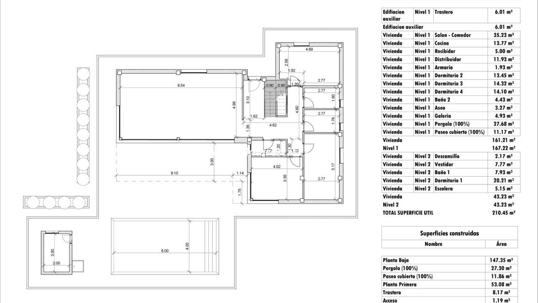
248m2
13.172m2
4
3
Yes

Features

Bedrooms: 4
Bathrooms: 3
Built: 248m2
Plot: 13.172m2
Energy Rating: B
Private Pool
Garden
Gated
Number of Parking Spaces: 1
Near Schools
Air Conditioning: Pre-Installed
Double Bedrooms: 4
Location: Mountain
Terrace: 38 Msq.
Beach: 25000 Meters
Parking - Space
Useable Build Space: 210 Msq.
Storage / Trastero
Energy Rating
Energy Rating:
B

Description

Newly built villas located in the municipality of Aspe. Newly built villas with several models to choose from, with 2, 3 or 4 bedrooms, on one or two floors and built with slabs or with a structure: depending on the model and the plot chosen, the exact price will be calculated. All the villas are built on rustic plots of over 10,000 m2, of which around 2,500 m2 will be fenced off. The villas have an open-plan kitchen with living room, built-in wardrobes, private swimming pool, porch, storage room and outdoor parking space. There are several plots to choose from. The price is based on a plot priced at £77,500 (if another plot is chosen, the difference will be paid or credited according to the price of the plot). Self-build project, delivery in approximately 12 months from the granting of the licence. If you are looking for a quiet environment, close to typical Spanish villages away from tourist crowds, surrounded by mountains, with a very large plot and about 30 minutes from the sea, this is your home. Aspe is a typical Spanish village with all the amenities for everyday life, surrounded by mountains and with several natural areas nearby where you can go hiking or mountain biking. Located 25 km from the beach, 9 km from Elche and about 20 km from Alicante airport.

Location

The very best currency exchange & mortgage offers

Save 1,000´s on your Spanish property purchase buy using one of our preferred currency exchange partners

Need finance to help you purchase dream Spanish property? We work with the Mortgage Direct the number 1 International mortgage broker in Spain

Calculate mortgages

Currency exchange

  • Pounds: 552.935 GBP
  • Russian ruble: 552.935 RUB
  • Swiss franc: 585.976 CHF
  • Chinese yuan: 5.100.268 CNY
  • Dollar: 746.054 USD
  • Swedish krona: 6.892.340 SEK
  • The Norwegian crown: 6.976.743 NOK

Purchase costs

On top of the purchase price you need to allow 10% for purchase transfer tax & a further 3,500 euros to cover notary taxes & charges & solicitor / legal charges including your NIE application

If you are going to purchase with a Spanish mortgage you will need to allow for an extra 3,500 euros on top of the amounts above to cover mortgage broker fees, bank mortgage commission, bank valuation & arrangement fees & insurances. Maximum mortgage available for non- residents is 70% of the purchase price

Register NOW for the latest currency updates & mortgage offers as we can genuinely save you 1,000´s & 1,000´s on your Spanish property purchase

The information given above is subject to change and does not form part of any contract

Ask for information

Responsable del tratamiento: Solmar Estates, Finalidad del tratamiento: Gestión y control de los servicios ofrecidos a través de la página Web de Servicios inmobiliarios, Envío de información a traves de newsletter y otros, Legitimación: Por consentimiento, Destinatarios: No se cederan los datos, salvo para elaborar contabilidad, Derechos de las personas interesadas: Acceder, rectificar y suprimir los datos, solicitar la portabilidad de los mismos, oponerse altratamiento y solicitar la limitación de éste, Procedencia de los datos: El Propio interesado, Información Adicional: Puede consultarse la información adicional y detallada sobre protección de datos Aquí.

© 2026 Solmar Estates · Legal · Privacy · Terms & conditions apply · Cookies · Web map · Design: Mediaelx

Contact WhatsApp