
Ubicada en el complejo residencial Riomar III, esta villa adosada con orientación sur disfruta de acceso a una amplia zona de parque comunitario y piscina. Ubicada en una atractiva parcela esquinera, la propiedad ofrece privacidad y amplios espacios exteriores.
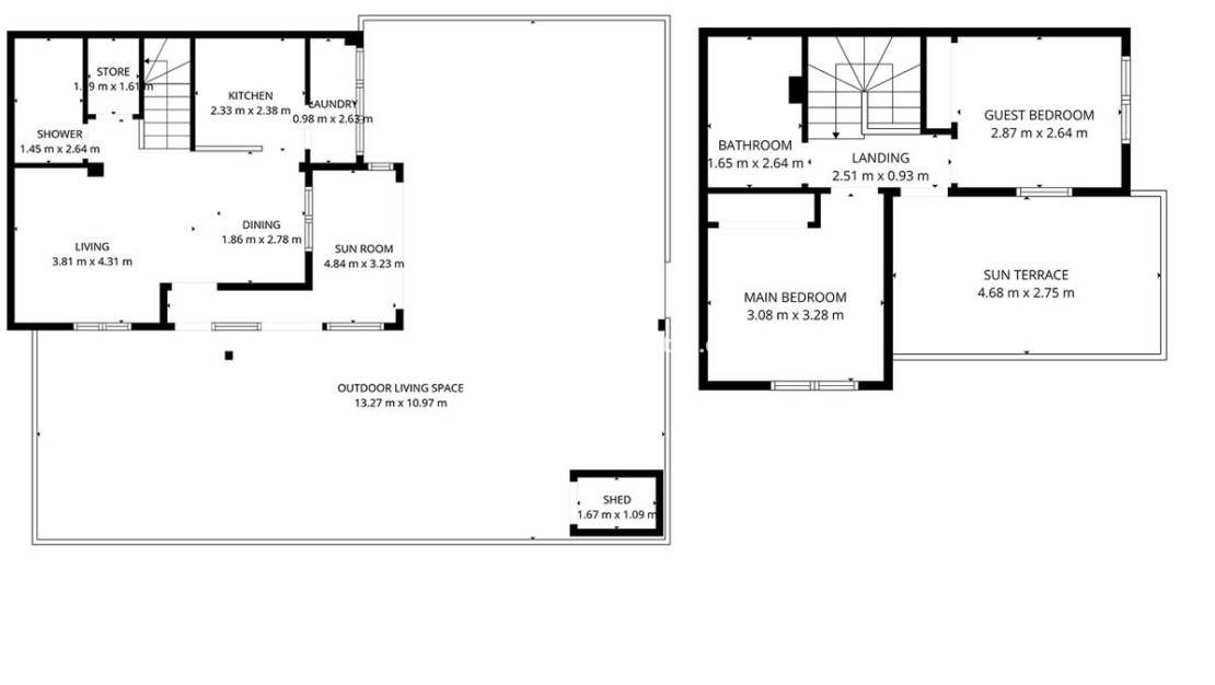
La casa consta de dos dormitorios y dos baños completos, además de una cocina americana y un lavadero independiente. El amplio salón-comedor da acceso a una terraza acristalada, que ofrece un espacio adicional ideal para comer o relajarse durante todo el año.
En el exterior, la propiedad se encuentra en una amplia parcela esquinera con un patio ajardinado de fácil mantenimiento y una amplia terraza superior, ideal para disfrutar del sol. La casa está equipada con aire acondicionado y cuenta con trasteros interiores y exteriores.
La propiedad se vende completamente amueblada y presentada en excelentes condiciones.
Riomar III es conocido por sus cuidados jardines y piscinas comunitarias. El complejo se encuentra en una tranquila zona residencial con árboles centenarios y zonas verdes, ideal tanto para vivir todo el año como para disfrutar de vacaciones.
Una de las principales ventajas de esta ubicación es su proximidad a la playa. Las hermosas playas de Mil Palmeras están a solo 900 metros, incluyendo la Playa de Mil Palmeras, una playa con Bandera Azul y arena fina y dorada. Bares, cafeterías, tiendas y otros servicios locales también están a poca distancia.
Contáctenos hoy para concertar una visita a esta casa bien presentada en una ubicación costera ideal.
¿Por qué elegir Solmar Estates?
Nos enorgullecemos de ser miembros de API (Agente de la Propiedad Inmobiliaria), una asociación con amplia experiencia en el sector inmobiliario español. Formar parte de API es una opción para los agentes inmobiliarios que incluye obligaciones de formación, experiencia y un extenso código ético. La membresía de API ofrece las máximas garantías a compradores y vendedores sobre nuestras operaciones y cualificaciones. Número de registro API: 00280.
Para más información haga clic en el siguiente enlace
Ahorre 1,000 en su compra de propiedad en España con uno de nuestros socios de cambio de moneda preferidos
¿Necesita financiación para comprar la propiedad española de sus sueños? Trabajamos con Mortgage Direct, el corredor hipotecario internacional número 1 en España
Además del precio de compra, debe permitir el 10% del impuesto de transferencia de compra y otros 3.500 euros para cubrir los impuestos y cargos notariales y los cargos legales / de abogado, incluida su solicitud NIE
Si va a comprar con una hipoteca española, deberá permitir 3.500 euros adicionales además de los montos anteriores para cubrir los honorarios de los agentes hipotecarios, las comisiones hipotecarias bancarias, las tasas y arreglos bancarios y los seguros. La hipoteca máxima disponible para no residentes es el 70% del precio de compra
Regístrese AHORA para obtener las últimas actualizaciones de divisas y ofertas de hipotecas, ya que realmente podemos ahorrarle 1,000 y 1,000 en su compra de propiedades en España
La información proporcionada anteriormente está sujeta a cambios y no forma parte de ningún contrato
C.C. Playa Flamenca Unit 129,
Calle Niagara, 62,
03189 Playa Flamenca,
Alicante, Spain
© 2026 Solmar Estates · Nota legal · Privacidad · Términos y condiciones de aplicación · Cookies · Mapa Web · Diseño: Mediaelx
En primer lugar, gracias por contactarnos.
Hemos recibido su solicitud con respecto a la referencia de propiedad:R-91912. Uno de nuestros agentes se pondrá en contacto con usted lo antes posible.
En primer lugar, gracias por contactarnos.
Hemos recibido una solicitud de informe si baja el precio de la propiedad con la referencia: R-91912
Mientras tanto, eche un vistazo a esta selección de propiedades similares que podrían ser de su interés:
