
ADOSADOS DE OBRA NUEVA EN FUENTE ALAMO, MURCIA
Residencial de obra nueva de villas y adosados en en Fuente Álamo, Murcia.
Esta ubicación ofrece un entorno natural excepcional, alejado del bullicio de las grandes ciudades y de la presión turística de la costa. Además, estamos comprometidos a trabajar desde una perspectiva de desarrollo sostenible, minimizando nuestro impacto medioambiental y maximizando la integración con la comunidad local. Aquí sus sueños de un estilo de vida tranquilo y sostenible se hacen realidad. Imagine despertarse cada mañana en un entorno natural impresionante, rodeado de paisajes serenos y de la belleza única de la campiña murciana.
Los proyectos de nueva construcción priorizan la eficiencia energética, el uso de materiales respetuosos con el medio ambiente y la integración armoniosa con el entorno rural. Desde el diseño de la propiedad hasta la planificación del desarrollo para reducir nuestra huella de carbono y promover prácticas responsables en todas las operaciones.
Desarrollo dando prioridad a la eficiencia energética y la integración comunitaria para crear viviendas de alta calidad en armonía con el entorno natural.
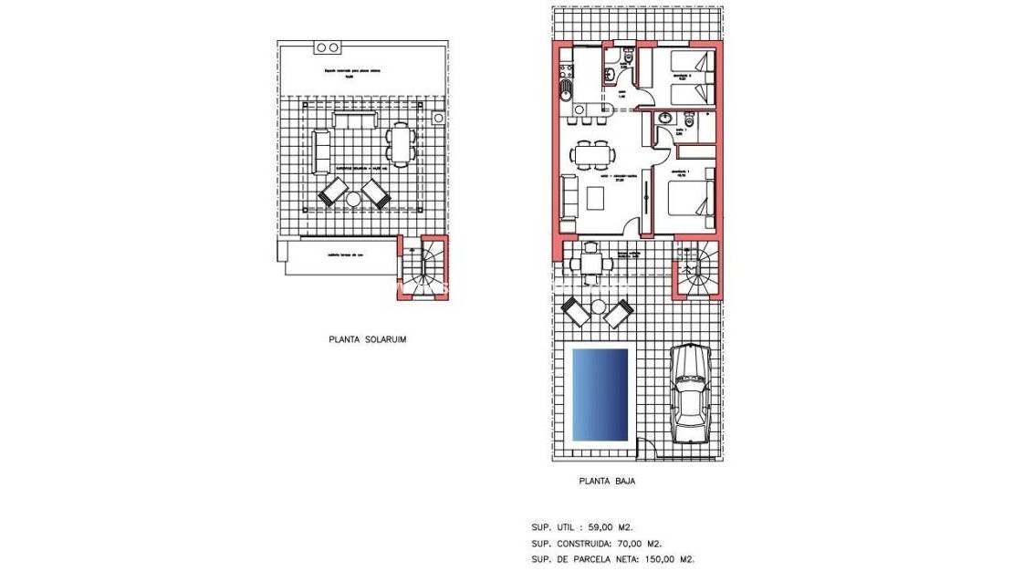
Pre-instalación de sistema de aire acondicionado por conductos, frío / calor, instalación de máquinas en las opciones.
Sistema de video portero.
Puerta de acceso de seguridad lacada en color, con cerradura y herrajes de seguridad antivandálicos.
Armarios con maletero, forrados interiormente, lacados en blanco.
Muebles de Cocina no incluidos (opcional):
- Posibilidad de cualquier tipo de modificación por parte del cliente.
- Encimera de piedra.
- Fregadero de acero inoxidable, con grifería monomando Roca o similar.
- Placa vitrocerámica, campana extractora y horno eléctrico, de acero inoxidable. Balay o similar.
Sistema de placas solares fotovoltaicas, con depósito acumulador. Preinstalación de aire acondicionado por conductos, frío/calor, instalación de máquinas en opciones.
Piscina privada opcional con coste adicional con iluminación nocturna sumergida y depuración con sistema de cloración salina.
Posibilidad de realizar modificaciones en la vivienda, previa valoración aprobada por ambas partes.
Fuente Álamo de Murcia es una localidad y municipio de la Región de Murcia, al sur de España. Está situada a 22 km al noroeste de Cartagena y a 35 km al suroeste de Murcia.
La ciudad se encuentra en la cuenca del Mar Menor, rodeada por las sierras de Algarrobo, Los Gómez, Los Victorias y Carrascoy. El agua de estas montañas fluye hacia abajo en la Rambla de Fuente Álamo y luego en el Mar Menor.
Fuente Álamo se encuentra a 30 minutos del aeropuerto de Murcia - Corvera.
Ahorre 1,000 en su compra de propiedad en España con uno de nuestros socios de cambio de moneda preferidos
¿Necesita financiación para comprar la propiedad española de sus sueños? Trabajamos con Mortgage Direct, el corredor hipotecario internacional número 1 en España
Además del precio de compra, debe permitir el 10% del impuesto de transferencia de compra y otros 3.500 euros para cubrir los impuestos y cargos notariales y los cargos legales / de abogado, incluida su solicitud NIE
Si va a comprar con una hipoteca española, deberá permitir 3.500 euros adicionales además de los montos anteriores para cubrir los honorarios de los agentes hipotecarios, las comisiones hipotecarias bancarias, las tasas y arreglos bancarios y los seguros. La hipoteca máxima disponible para no residentes es el 70% del precio de compra
Regístrese AHORA para obtener las últimas actualizaciones de divisas y ofertas de hipotecas, ya que realmente podemos ahorrarle 1,000 y 1,000 en su compra de propiedades en España
La información proporcionada anteriormente está sujeta a cambios y no forma parte de ningún contrato