
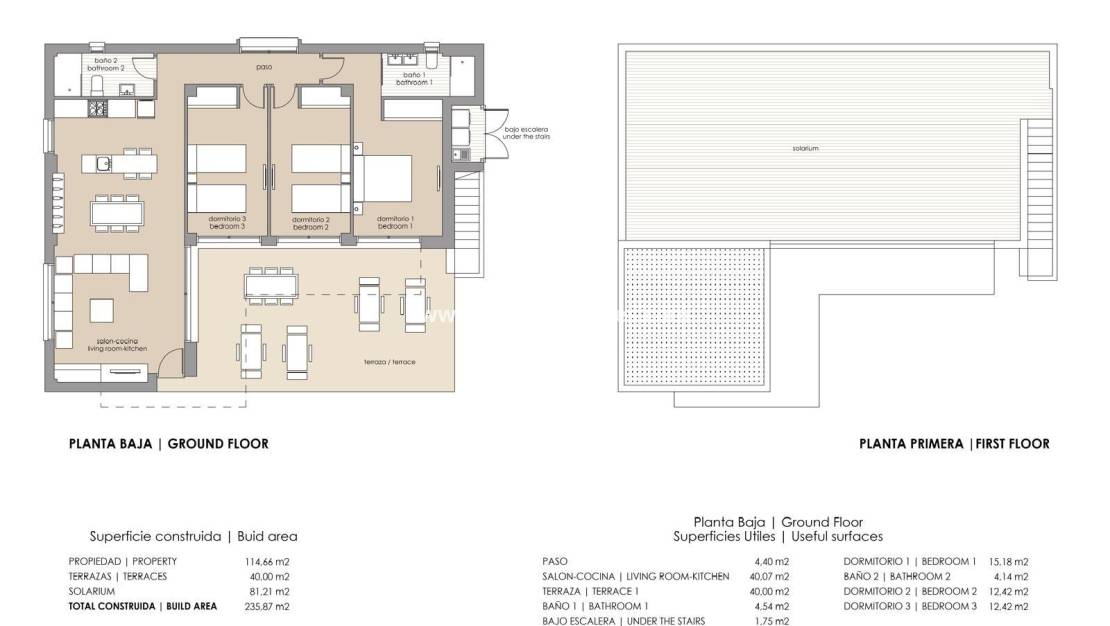
Villas de nueva construcción en Vistabella Golf Resort – Orihuela Disfrute de la vida moderna mediterránea en el corazón de la Costa Blanca con estas impresionantes villas de nueva construcción en Vistabella Golf Resort. Situada entre San Miguel de Salinas y Los Montesinos, en el municipio de Orihuela, esta exclusiva urbanización ofrece lujo, comodidad y una ubicación inmejorable tanto para los amantes del golf como para quienes buscan un estilo de vida tranquilo. Dos modelos de villas distintos Los compradores pueden elegir entre dos elegantes diseños: Villas de una sola planta con 3 dormitorios, 2 baños y solárium en la azotea. Villas de dos plantas con 4 dormitorios, 3 baños y terraza solárium en la primera planta. Ambos modelos se encuentran en parcelas de aproximadamente 300 m² e incluyen piscina privada y aparcamiento en el recinto. Calidad superior y confort moderno Todas las villas cuentan con acabados de lujo, incluyendo aire acondicionado por conductos totalmente instalado, cocinas equipadas con electrodomésticos, iluminación exterior, persianas eléctricas y elegantes mamparas de ducha en los baños. La combinación de estilo y funcionalidad garantiza un hogar que es a la vez bonito y práctico. Exclusivo estilo de vida en un complejo de golf Vistabella Golf Resort es una comunidad cerrada con un campo de golf de 18 hoyos, pistas de pádel, una bolera, un supermercado y una amplia variedad de bares y restaurantes. Las futuras mejoras elevarán el complejo a un auténtico destino de 5 estrellas, con nuevas incorporaciones previstas, como un bar de champán, un bar de sushi, un hotel con spa, una playa artificial, una pista de tenis, un campo de fútbol y un bar gourmet. Ubicación privilegiada en la Costa Blanca El complejo ofrece un excelente acceso a las mejores playas, campos de golf y servicios de la región. Las distancias a los principales puntos de interés son las siguientes: Playa de La Mata: 18 km Playa de Guardamar del Segura: 20 km Torrevieja: 15 km Aeropuerto de Alicante: 55 km Aeropuerto de Murcia: 68 km Villamartín Golf: 12 km Las Colinas Golf & Country Club: 14 km La casa de sus sueños le espera Ya sea como residencia permanente, casa de vacaciones o inversión para alquilar, estas villas de nueva construcción en Vistabella Golf Resort ofrecen un valor excepcional en una de las zonas costeras más codiciadas de España. Póngase en contacto con nosotros hoy mismo para concertar una visita y asegurarse su lugar en esta lujosa comunidad de golf.
Ahorre 1,000 en su compra de propiedad en España con uno de nuestros socios de cambio de moneda preferidos
¿Necesita financiación para comprar la propiedad española de sus sueños? Trabajamos con Mortgage Direct, el corredor hipotecario internacional número 1 en España
Además del precio de compra, debe permitir el 10% del impuesto de transferencia de compra y otros 3.500 euros para cubrir los impuestos y cargos notariales y los cargos legales / de abogado, incluida su solicitud NIE
Si va a comprar con una hipoteca española, deberá permitir 3.500 euros adicionales además de los montos anteriores para cubrir los honorarios de los agentes hipotecarios, las comisiones hipotecarias bancarias, las tasas y arreglos bancarios y los seguros. La hipoteca máxima disponible para no residentes es el 70% del precio de compra
Regístrese AHORA para obtener las últimas actualizaciones de divisas y ofertas de hipotecas, ya que realmente podemos ahorrarle 1,000 y 1,000 en su compra de propiedades en España
La información proporcionada anteriormente está sujeta a cambios y no forma parte de ningún contrato