
Lujosos chalets adosados de nueva construcción en Benijófar, Costa Blanca
Ubicación privilegiada en Benijófar con fácil acceso a todos los servicios
Descubra un nuevo nivel de vida de lujo en la encantadora ciudad de Benijófar, una zona muy solicitada en la Costa Blanca española. Estas villas adosadas de nueva construcción están situadas en un barrio vibrante con una mezcla perfecta de modernidad y encanto local, ofreciendo fácil acceso a todos los servicios y atracciones esenciales. A sólo 10 km de las doradas playas de Guardamar del Segura y a 30 km del aeropuerto de Alicante, las villas están estratégicamente situadas para mayor comodidad y estilo de vida.
Diseño espacioso y moderno con acabados de primera calidad
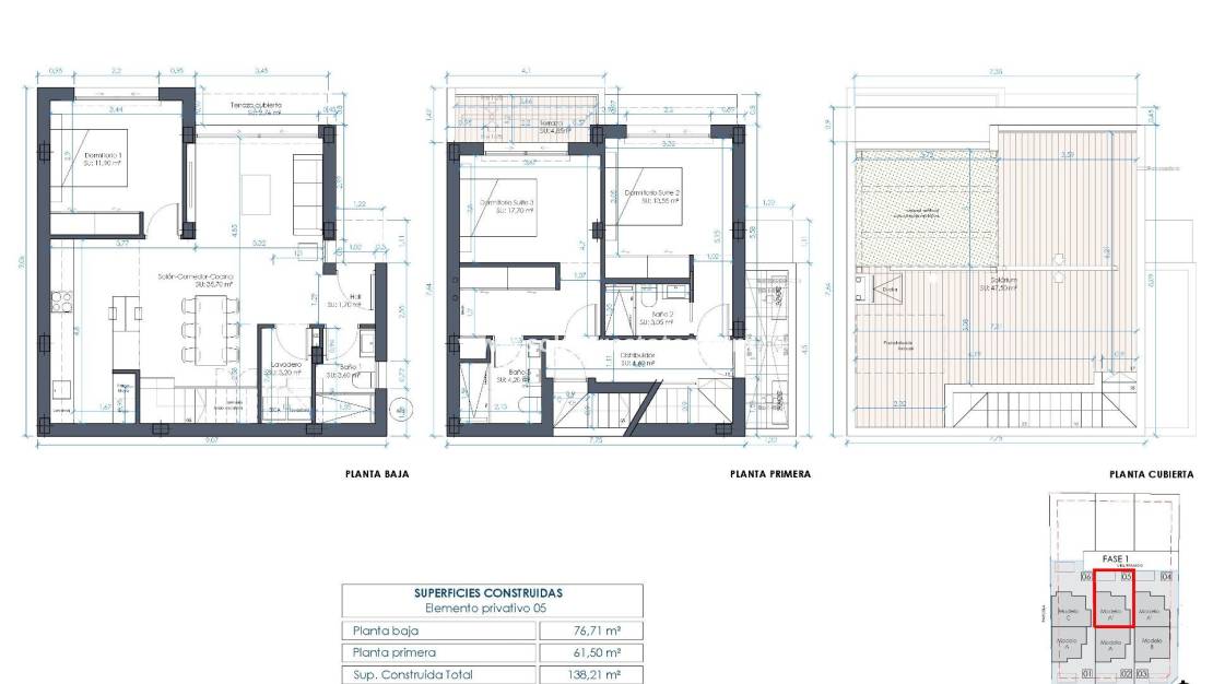
Cada villa está diseñada con una estética contemporánea, con líneas limpias y acabados de alta calidad. La distribución incluye tres amplios dormitorios y tres cuartos de baño, proporcionando un amplio espacio para familias o invitados. El salón-comedor de planta abierta conecta perfectamente con la cocina totalmente equipada, ofreciendo un espacio perfecto para el entretenimiento y las reuniones familiares. Los grandes ventanales permiten la entrada de mucha luz natural, creando un ambiente luminoso y acogedor en toda la casa.
Espacios exteriores privados con piscina y solarium
Estas villas incluyen espacios exteriores privados diseñados para relajarse y disfrutar del clima mediterráneo. El jardín embaldosado cuenta con una piscina de 2,5x5m, perfecta para refrescarse en los días calurosos, y un amplio espacio de aparcamiento. Las propiedades también vienen con un solarium en la azotea, donde se puede disfrutar de las vistas de los alrededores. El solarium está equipado para una posible instalación de jacuzzi, por lo que es un lugar perfecto para relajarse y disfrutar de la puesta de sol.
Inclusiones de alta calidad para el máximo confort
Todas las villas están totalmente equipadas con electrodomésticos de alta gama, como frigorífico con congelador panelado, placa de inducción, lavavajillas panelado, microondas integrado y horno. Otras características incluyen unidades de aire acondicionado para el control del clima, calefacción por suelo radiante en los baños y persianas eléctricas para mayor privacidad. Los focos y apliques exteriores realzan el ambiente, haciendo que cada villa sea a la vez funcional y lujosa.
Benijófar: Una mezcla de tradición y modernidad
Benijófar es un pueblo encantador con un ambiente acogedor, conocido por su hermosa iglesia, tiendas locales, supermercados, farmacias, bancos y deliciosos restaurantes. Los amantes de la naturaleza apreciarán el cercano parque natural, ideal para pasear y explorar. Los entusiastas del golf encontrarán varios campos de golf a poca distancia en coche, mientras que las familias pueden disfrutar de los cercanos parques acuáticos de Rojales (4 km) y Torrevieja (12 km). Las villas también están bien comunicadas, ya que las autopistas N-332 y AP-7 facilitan el acceso a las ciudades de los alrededores.
¿Listo para hacer de Benijófar su nuevo hogar?
Disfrute del lujo y la comodidad de estas modernas villas en Benijófar. No pierda esta oportunidad de disfrutar de la vida en la Costa Blanca. Póngase en contacto con nosotros hoy mismo para concertar una visita y dar el primer paso hacia la casa de sus sueños.
Ahorre 1,000 en su compra de propiedad en España con uno de nuestros socios de cambio de moneda preferidos
¿Necesita financiación para comprar la propiedad española de sus sueños? Trabajamos con Mortgage Direct, el corredor hipotecario internacional número 1 en España
Además del precio de compra, debe permitir el 10% del impuesto de transferencia de compra y otros 3.500 euros para cubrir los impuestos y cargos notariales y los cargos legales / de abogado, incluida su solicitud NIE
Si va a comprar con una hipoteca española, deberá permitir 3.500 euros adicionales además de los montos anteriores para cubrir los honorarios de los agentes hipotecarios, las comisiones hipotecarias bancarias, las tasas y arreglos bancarios y los seguros. La hipoteca máxima disponible para no residentes es el 70% del precio de compra
Regístrese AHORA para obtener las últimas actualizaciones de divisas y ofertas de hipotecas, ya que realmente podemos ahorrarle 1,000 y 1,000 en su compra de propiedades en España
La información proporcionada anteriormente está sujeta a cambios y no forma parte de ningún contrato