
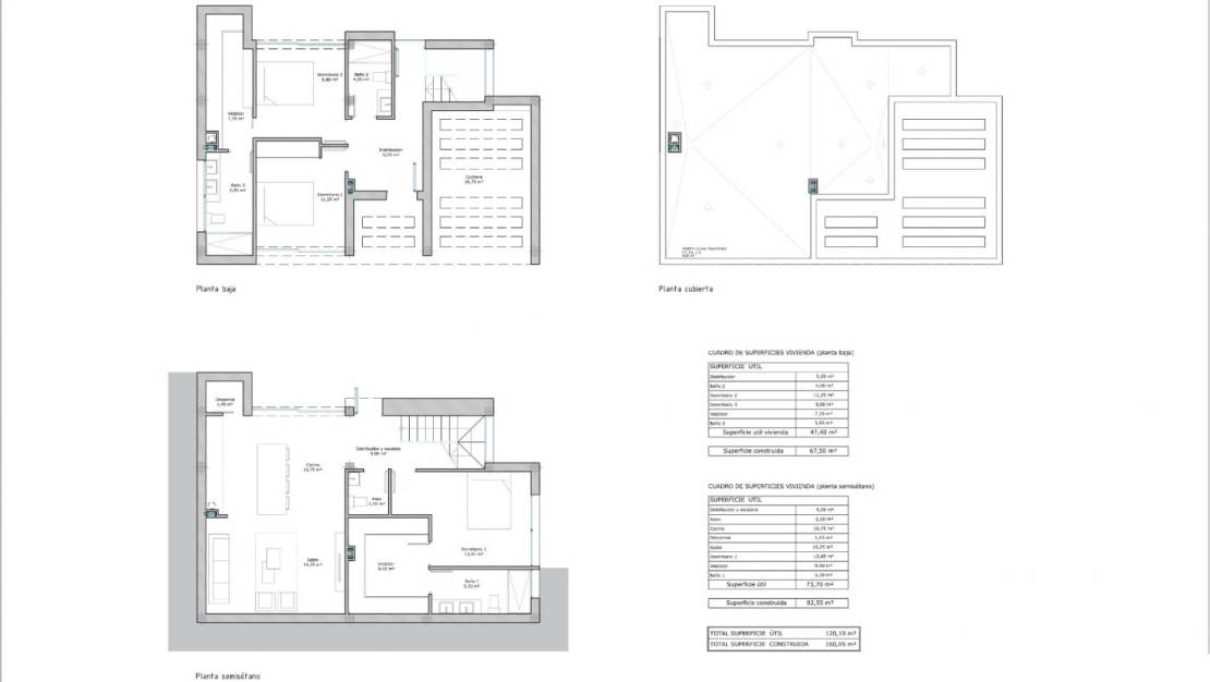
NYBYGGDA VILLOR I FORTUNA Nybyggda villor i Fortuna, Murcia. Oberoende villa byggd på 2 våningar och har 3 sovrum, 2 badrum, 2 omklädningsrum, öppet kök med vardagsrum, garage, privat trädgård med pool. Staden Fortuna ligger mindre än 3 km bort för daglig shopping och staden Murcia ligger 25 km bort där det finns ett brett utbud av gastronomiska och fritidsanläggningar. Klimatet på Costa Cálida, som ofta anses vara det bästa i Europa, möjliggör en mycket sällskaplig och hälsosam livsstil, utomhus, präglad av fantastiska idrotts- och fritidsanläggningar, med spännande och kosmopolitiska turiststäder, som utmärker sig för tillhandahållandet av förstklassiga tjänster, vissa av dem exklusiva, som betraktas som sann lyx. Costa Cálida i Murcia har mer än 300 soldagar per år. Förutom de golfbanor och småbåtshamnar som du kan njuta av längs hela kusten, erbjuder området också möjligheten att åka skidor i det närliggande Sierra Nevada, ett paradis för vintersportälskare, med vackra naturlandskap. Möjligheten att njuta av alla typer av kultur- och fritidsutbud i närliggande huvudstäder som Murcia och Cartagena. Ett paradis med utmärkta förbindelser till hela Europa. Flygplatserna Alicante-Elche och Murcias Corvera ligger en timme bort.
Spara 1000 på ditt spanska köp av fastighetsköp med en av våra föredragna valutaväxlingspartners
Behöver du finansiering för att hjälpa dig köpa drömspansk egendom? Vi arbetar med Mortgage Direct nummer 1 internationella inteckning mäklare i Spanien
Ovanpå inköpspriset måste du tillåta 10% för köpöverföringsskatt och ytterligare 3 500 euro för att täcka notaryskatter & avgifter & advokat / juridiska avgifter inklusive din NIE-ansökan
Om du ska köpa med en spansk inteckning måste du tillåta ytterligare 3 500 euro ovanför beloppen ovan för att täcka hypoteksmäklars avgifter, banklånprovision, bankvärdering och arrangemangsavgifter och försäkringar. Maximal inteckning tillgänglig för utlänningar är 70% av inköpspriset
Registrera NU för de senaste valutauppdateringarna och inteckningstips eftersom vi verkligen kan spara dig 1 000 och 1 000 på ditt spanska fastighetsköp
Uppgifterna ovan kan ändras och ingår inte i något avtal
C.C. Playa Flamenca Unit 129,
Calle Niagara, 62,
03189 Playa Flamenca,
Alicante, Spain
© 2026 Solmar Estates · Juridisk anteckning · Privatliv · Villkor gäller · Cookies · Web karta · Design: Mediaelx
Först och främst tack för att du kontaktade oss.
Vi har mottagit din begäran om egenskapsreferensen:N-36081. En av våra agenter kommer att kontakta dig så snart som möjligt.
Först och främst tack för att du kontaktade oss.
Vi har fått en begäran om en rapport om du sänker priset på fastigheten med referensen: N-36081
Under tiden kan du titta på det här urvalet av liknande egenskaper som kan vara av intresse för dig:
