
Välskött parhus beläget i bostadsområdet Entre Golf, i Villamartín, känt för sina lugna omgivningar och bekväma tillgång till lokala bekvämligheter.
Boendet ligger på gatan Bidasoa, inom gångavstånd från restauranger, kaféer och stormarknader, och en kort bilresa från Villamartin Plaza och La Fuente köpcentrum . Flera golfbanor finns också i närheten, inklusive Villamartín Golf Club .
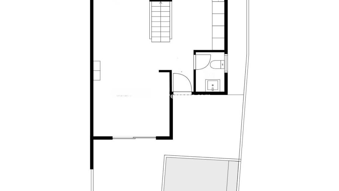
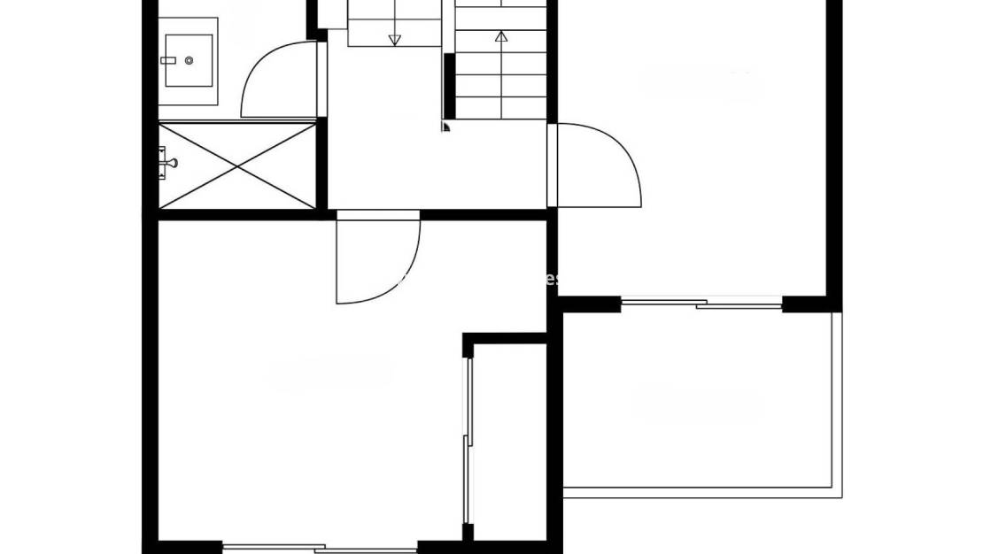
Bottenvåningen erbjuder ett rymligt och ljust vardagsrum i anslutning till ett öppet kök med direkt tillgång till en terrass i söderläge. En separat gästtoalett finns också på denna våning. Utomhusutrymmet inkluderar en privat pool med värmepump, en lättskött trädgård och parkering på tomten.
På övervåningen finns två sovrum med dubbelsäng, båda med inbyggda garderober och tillgång till privata balkonger. Badrummet är helkaklat och utrustat med duschkabin.
Fastigheten har även ett solterrass på taket med öppen utsikt över omgivningarna.
Den säljs möblerad, inklusive inredningsmöbler och hushållsartiklar, och är redo för omedelbar inflyttning.
De boende har också tillgång till ett gemensamt poolområde i närheten, med anlagda trädgårdar och ytterligare gemensamma faciliteter.
Belägen i Los Altos erbjuder denna fastighet en praktisk planlösning, utomhusutrymme och närhet till service, golfbanor och kusten.
Kontakta oss för mer information eller för att boka en visning.
Varför välja Solmar Estates?
Vi är stolta medlemmar i API – Agente de la Propiedad Inmobiliaria – en förening som har funnits inom spansk fastighetsbransch i många år. Att vara en del av API är ett alternativ som fastighetsmäklare väljer, vilket inkluderar skyldigheter gällande utbildning, erfarenhet och en omfattande etisk kod. Medlemskap i API ger våra köpare och säljare maximala garantier gällande vår verksamhet och våra kvalifikationer. API-registreringsnummer 00280.
För mer information klicka på länken nedan
Spara 1000 på ditt spanska köp av fastighetsköp med en av våra föredragna valutaväxlingspartners
Behöver du finansiering för att hjälpa dig köpa drömspansk egendom? Vi arbetar med Mortgage Direct nummer 1 internationella inteckning mäklare i Spanien
Ovanpå inköpspriset måste du tillåta 10% för köpöverföringsskatt och ytterligare 3 500 euro för att täcka notaryskatter & avgifter & advokat / juridiska avgifter inklusive din NIE-ansökan
Om du ska köpa med en spansk inteckning måste du tillåta ytterligare 3 500 euro ovanför beloppen ovan för att täcka hypoteksmäklars avgifter, banklånprovision, bankvärdering och arrangemangsavgifter och försäkringar. Maximal inteckning tillgänglig för utlänningar är 70% av inköpspriset
Registrera NU för de senaste valutauppdateringarna och inteckningstips eftersom vi verkligen kan spara dig 1 000 och 1 000 på ditt spanska fastighetsköp
Uppgifterna ovan kan ändras och ingår inte i något avtal