
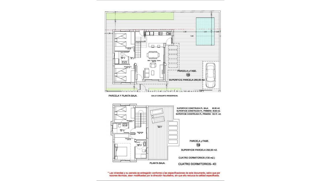
Moderna, nybyggda villor i La Herrada Los Montesinos med privat pool Exklusivt bostadsprojekt i en lugn miljö Beläget i det prestigefyllda bostadsområdet La Herrada i Los Montesinos, erbjuder detta exklusiva projekt med 16 moderna villor avskildhet, komfort och en utmärkt livskvalitet. La Herrada är känt för sin lugna bostadsmiljö, närheten till vardagsbekvämligheter och sitt privilegierade läge mellan de berömda saltfälten i Torrevieja och La Mata. Det är en idealisk plats för dem som söker en avslappnad och hälsosam medelhavslivsstil i södra Costa Blanca. Modern design med optimerade interiörutrymmen Varje villa har 130 m² väl fördelad boyta på två våningar, utformad för att maximera naturligt ljus och funktionalitet. Fastigheterna är byggda på tomter från 250 m² och erbjuder rymliga utomhusområden som är perfekta för solbad, underhållning eller avkoppling vid den privata poolen. Bekväm planlösning över två våningar På bottenvåningen finns ett öppet vardagsrum med ett fullt integrerat kök och direkt tillgång till trädgården och poolområdet. På denna våning finns också två sovrum, ett komplett badrum och en praktisk tvättstuga. På övervåningen finns två rymliga sovrum, båda med eget badrum, varav ett är en-suite. Båda sovrummen har tillgång till en 28 m² stor öppen privat terrass. För dem som vill ha ännu mer utomhusutrymme finns ett solarium på taket tillgängligt mot en extra kostnad. Högkvalitativa ytbehandlingar och moderna funktioner Villorna har högkvalitativa ytbehandlingar såsom badrumsmöbler, speglar, duschväggar och golvvärme i alla badrum. Det finns förinstallation för luftkonditionering, en motoriserad ingångsport för fordon, privat parkering på tomten och gated tillgång till bostadsområdet via en privat intern väg. Utmärkt läge nära viktiga bekvämligheter och attraktioner Stränderna i Guardamar och Torrevieja ligger 9 km bort La Marquesa Golf, La Finca Golf och Vistabella Golf ligger mindre än 5 km bort Alicantes flygplats ligger 29 km bort Naturparker, saltfält, cykelvägar och vandringsleder i närheten Bo bekvämt i hjärtat av Costa Blanca Dessa nybyggda villor i Los Montesinos erbjuder den perfekta kombinationen av modern komfort, naturskön omgivning och utmärkt tillgänglighet. Oavsett om du letar efter en permanent bostad eller ett fritidshus erbjuder detta bostadsområde allt du behöver för att njuta av en lugn och bekväm medelhavslivsstil. Kontakta oss idag för att boka en visning och säkra ditt nya hem i La Herrada.
Spara 1000 på ditt spanska köp av fastighetsköp med en av våra föredragna valutaväxlingspartners
Behöver du finansiering för att hjälpa dig köpa drömspansk egendom? Vi arbetar med Mortgage Direct nummer 1 internationella inteckning mäklare i Spanien
Ovanpå inköpspriset måste du tillåta 10% för köpöverföringsskatt och ytterligare 3 500 euro för att täcka notaryskatter & avgifter & advokat / juridiska avgifter inklusive din NIE-ansökan
Om du ska köpa med en spansk inteckning måste du tillåta ytterligare 3 500 euro ovanför beloppen ovan för att täcka hypoteksmäklars avgifter, banklånprovision, bankvärdering och arrangemangsavgifter och försäkringar. Maximal inteckning tillgänglig för utlänningar är 70% av inköpspriset
Registrera NU för de senaste valutauppdateringarna och inteckningstips eftersom vi verkligen kan spara dig 1 000 och 1 000 på ditt spanska fastighetsköp
Uppgifterna ovan kan ändras och ingår inte i något avtal