
Belägen i bostadskomplexet Riomar III har denna parhus i söderläge tillgång till ett stort gemensamt parkområde och pool. Fastigheten ligger på en attraktiv hörntomt och erbjuder både avskildhet och extra utomhusutrymme.
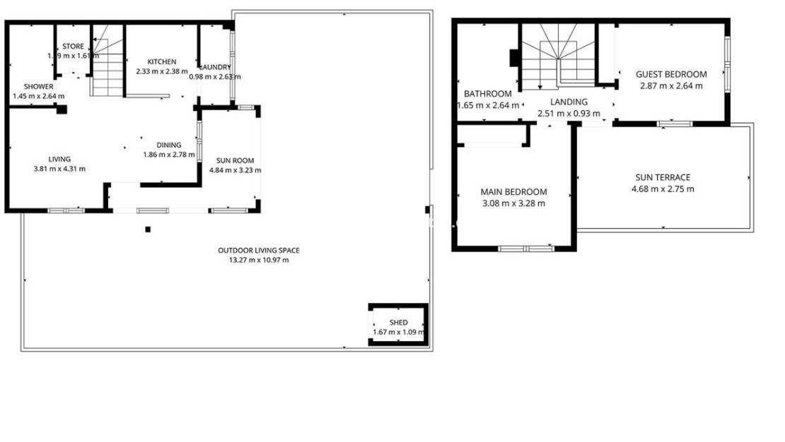
Huset består av två sovrum och två badrum, samt ett öppet kök och en separat tvättstuga/grovkök. Det rymliga vardagsrummet och matsalen leder ut till en inglasad terrass, vilket ger extra boyta perfekt för middagar eller avkoppling året runt.
Utomhus ligger fastigheten på en väl tilltagen hörntomt med en lättskött uteplats och en generös terrass på övre våningen, perfekt för att njuta av det soliga klimatet. Huset är utrustat med luftkonditionering och har förråd både inomhus och utomhus.
Fastigheten säljs fullt möblerad och presenteras i utmärkt skick.
Riomar III är känt för sina välskötta gemensamma trädgårdar och pooler. Komplexet ligger i ett lugnt område med mogna träd och grönområden, vilket gör det lämpligt för både året runt-boende och semesterbruk.
En av de största fördelarna med detta läge är dess närhet till stranden. De vackra stränderna i Mil Palmeras ligger bara 900 meter bort, inklusive Playa de Mil Palmeras, en strand med blå flagg och fin gyllene sand. Lokala barer, kaféer, butiker och andra bekvämligheter finns också inom räckhåll.
Kontakta oss idag för att boka en visning av detta välpresenterade hem i ett idealiskt läge vid kusten.
Varför välja Solmar Estates?
Vi är stolta medlemmar i API – Agente de la Propiedad Inmobiliaria – en förening som har funnits inom spansk fastighetsbransch i många år. Att vara en del av API är ett alternativ som fastighetsmäklare väljer, vilket inkluderar skyldigheter gällande utbildning, erfarenhet och en omfattande etisk kod. Medlemskap i API ger våra köpare och säljare maximala garantier gällande vår verksamhet och våra kvalifikationer. API-registreringsnummer 00280.
För mer information klicka på länken nedan
Spara 1000 på ditt spanska köp av fastighetsköp med en av våra föredragna valutaväxlingspartners
Behöver du finansiering för att hjälpa dig köpa drömspansk egendom? Vi arbetar med Mortgage Direct nummer 1 internationella inteckning mäklare i Spanien
Ovanpå inköpspriset måste du tillåta 10% för köpöverföringsskatt och ytterligare 3 500 euro för att täcka notaryskatter & avgifter & advokat / juridiska avgifter inklusive din NIE-ansökan
Om du ska köpa med en spansk inteckning måste du tillåta ytterligare 3 500 euro ovanför beloppen ovan för att täcka hypoteksmäklars avgifter, banklånprovision, bankvärdering och arrangemangsavgifter och försäkringar. Maximal inteckning tillgänglig för utlänningar är 70% av inköpspriset
Registrera NU för de senaste valutauppdateringarna och inteckningstips eftersom vi verkligen kan spara dig 1 000 och 1 000 på ditt spanska fastighetsköp
Uppgifterna ovan kan ändras och ingår inte i något avtal
C.C. Playa Flamenca Unit 129,
Calle Niagara, 62,
03189 Playa Flamenca,
Alicante, Spain
© 2026 Solmar Estates · Juridisk anteckning · Privatliv · Villkor gäller · Cookies · Web karta · Design: Mediaelx
Först och främst tack för att du kontaktade oss.
Vi har mottagit din begäran om egenskapsreferensen:R-91912. En av våra agenter kommer att kontakta dig så snart som möjligt.
Först och främst tack för att du kontaktade oss.
Vi har fått en begäran om en rapport om du sänker priset på fastigheten med referensen: R-91912
Under tiden kan du titta på det här urvalet av liknande egenskaper som kan vara av intresse för dig:
