
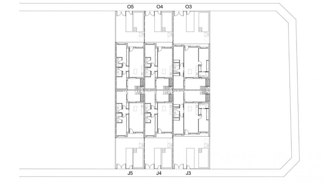
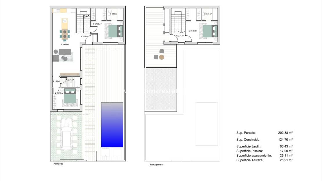
NYBYGGDA RADHUS I SAN JAVIER Nybyggt lyxkomplex med 24 villor på en våning eller på två våningar med privat pool, terrass och solarium med sommarkök som gör att du kan njuta av alla soltimmar, varje dag på året. Varje villa har 2 eller 3 sovrum och 2 utrustade badrum på ett plan eller 3 sovrum och 3 utrustade badrum på två plan. Utformad med en modern stil och öppet planerat koncept, som består av ett fullt utrustat kök och vardagsrum/matsal. Projektet ligger i San Javier (Murcia), nära stranden, omgivet av service, parker, idrottsanläggningar och flera golfbanor. Fastigheten kommer att uppfylla de högsta standarderna och kommer att vara utrustad med: Privat pool med dusch. Kök helt möblerat och utrustat med ugn, mikrovågsugn, kylskåp, integrerad diskmaskin, spishäll och fläkt. Belysning: inne i fastigheten (matsal, kök, korridorer och badrum) samt i utomhusområden. Fodrade garderober med lådor. Fullt utrustade badrum med toalett, kommod, spegel och dusch med skärmpaneler. Förinstallation för luftkonditionering med kanal. Solarium med sommarkök. Parkeringsplats på tomten. San Javier ligger nära alla bekvämligheter med enkel tillgång till stranden, vattensporter, affärer och transportnätet. Här kan du njuta av alla de faciliteter som San Javier har att erbjuda, som de lokala butikerna, barerna och restaurangerna samt närheten till köpcentrum, flygplatsen i Murcia och alla vackra platser som finns längs Mar Menor. Corvera/Murcia flygplats ligger 30 minuter bort och Alicante flygplats ligger 45 minuter bort.
Spara 1000 på ditt spanska köp av fastighetsköp med en av våra föredragna valutaväxlingspartners
Behöver du finansiering för att hjälpa dig köpa drömspansk egendom? Vi arbetar med Mortgage Direct nummer 1 internationella inteckning mäklare i Spanien
Ovanpå inköpspriset måste du tillåta 10% för köpöverföringsskatt och ytterligare 3 500 euro för att täcka notaryskatter & avgifter & advokat / juridiska avgifter inklusive din NIE-ansökan
Om du ska köpa med en spansk inteckning måste du tillåta ytterligare 3 500 euro ovanför beloppen ovan för att täcka hypoteksmäklars avgifter, banklånprovision, bankvärdering och arrangemangsavgifter och försäkringar. Maximal inteckning tillgänglig för utlänningar är 70% av inköpspriset
Registrera NU för de senaste valutauppdateringarna och inteckningstips eftersom vi verkligen kan spara dig 1 000 och 1 000 på ditt spanska fastighetsköp
Uppgifterna ovan kan ändras och ingår inte i något avtal