
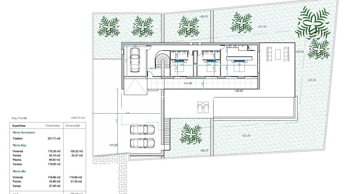
LYXIG NYBYGGD VILLA I MORAIRA Nybyggd lyxvilla med de bästa kvaliteterna, med gångavstånd till de vackra stränderna och Morairas centrum. Denna lyxvilla är fördelad på 3 våningar: på bottenvåningen (147,30m2) finns ett stort ljust vardagsrum bredvid det öppna köket med en kokö, en gästtoalett och ett sovrum med eget badrum. På utsidan av denna våning hittar vi poolen och grillplatsen. Sedan går vi upp till övervåningen (133,65m2) där vi hittar 3 rymliga rum med sina badrum en suite. Slutligen källarvåningen, där det leder till ett dubbelgarage och tvättstuga. EXTRAS: Tekniska snickerier med säkerhetsglas, komplett kök med Siemens-apparater, badrum och kranar av märket Roca, LED-belysning, aerotermiskt system för varmvatten och golvvärme, kanaliserad luftkonditionering (varm och kall) i hela huset, solpaneler, inbyggda garderober, elektriska fönsterluckor, interiört larm, förinstallation av utvändigt larm och övervakningskameror. Rektangulär pool med överflödssystem på 12x4,5 meter, grillplats på 22 m2, tvättstuga, färdig trädgård. Automatiska dörrar. Energiklass A. Sydorientering. Moraira är en liten stad med bra restauranger, barer och gott om stormarknader runt omkring. Det finns en mycket trevlig strand precis intill staden som är bra för familjer. Från strandpromenaden har man en fantastisk utsikt över Penon Ifach på andra sidan bukten i Calpe. Kustvägen dit är väl värd att gå med spektakulära vyer. Moraira ligger ungefär 1 timme och 15 minuter norrut på A7 från Alicantes flygplats och är ganska lätt att ta sig till. Det är ungefär lika långt eller lite mindre söderut från Valencias flygplats.
Spara 1000 på ditt spanska köp av fastighetsköp med en av våra föredragna valutaväxlingspartners
Behöver du finansiering för att hjälpa dig köpa drömspansk egendom? Vi arbetar med Mortgage Direct nummer 1 internationella inteckning mäklare i Spanien
Ovanpå inköpspriset måste du tillåta 10% för köpöverföringsskatt och ytterligare 3 500 euro för att täcka notaryskatter & avgifter & advokat / juridiska avgifter inklusive din NIE-ansökan
Om du ska köpa med en spansk inteckning måste du tillåta ytterligare 3 500 euro ovanför beloppen ovan för att täcka hypoteksmäklars avgifter, banklånprovision, bankvärdering och arrangemangsavgifter och försäkringar. Maximal inteckning tillgänglig för utlänningar är 70% av inköpspriset
Registrera NU för de senaste valutauppdateringarna och inteckningstips eftersom vi verkligen kan spara dig 1 000 och 1 000 på ditt spanska fastighetsköp
Uppgifterna ovan kan ändras och ingår inte i något avtal