
Denna exceptionella villa i söderläge, byggd 2020, erbjuder en perfekt blandning av modern design, komfort och utmärkt läge. Belägen i en lugn återvändsgata bara 300 meter från centrala Ciudad Quesada, erbjuder fastigheten enkel tillgång till butiker, kaféer, restauranger och lokala tjänster – perfekt för familjer, heltidsboende eller de som söker ett exklusivt semesterhus.
Modern fristående villa (byggd 2020)
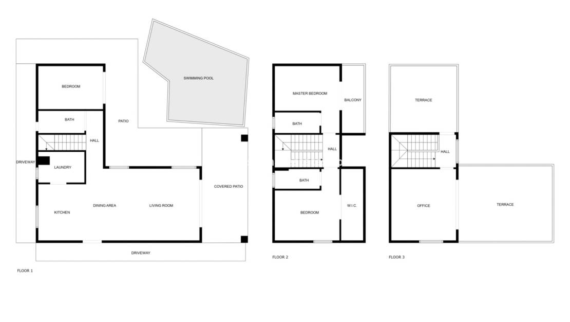
4 sovrum och 3 moderna badrum
153 m² byggd på en 533 m² privat tomt
Privat saltvattenpool
Öppet kök med kvalitetsapparater
Söderläge för sol hela dagen
Solarium med panoramautsikt
Tvättstuga/grovkök och förråd
Luftkonditionering och uppvärmning
Energiklass: B
Parkering utanför vägen och privat garage
300 m från butiker, kaféer och bekvämligheter
Denna ljusa och moderna villa är elegant designad över tre våningar och erbjuder generösa bostadsytor, högkvalitativa ytbehandlingar och fantastiska utomhusområden för njutning året runt.
Det rymliga vardagsrummet och matsalen i öppen planlösning flyter sömlöst in i det moderna köket och skapar ett inbjudande och praktiskt familjerum. Fönster från golv till tak har utsikt över den privata poolen och trädgården, vilket förstärker det naturliga ljuset. Denna våning inkluderar också ett elegant gästsovrum, ett komplett badrum och en praktisk tvättstuga.
Här hittar du två stora sovrum med eget badrum, båda med utmärkt förvaring och avskildhet. Ett sovrum har en klädkammare, medan det andra har en privat balkong med charmig utsikt över poolen och trädgården.
Övervåningen har ett mångsidigt fjärde rum – perfekt som gästrum, kontor eller studio – tillsammans med två rymliga terrasser. Dessa områden erbjuder vidsträckt utsikt över Ciudad Quesada, det omgivande landskapet, saltsjöar och till och med det avlägsna Medelhavet.
Utformad för minimalt underhåll och maximal komfort, har exteriören flera terrasser, ett solterrass och en lyxig saltvattenpool. Den säkra tomten inkluderar grindad entré, parkering utanför vägen och ett privat garage, vilket garanterar både bekvämlighet och sinnesro.
Belägen i ett av Ciudad Quesadas mest attraktiva centrala områden, erbjuder villan gångavstånd till dagliga tjänster och fritidsaktiviteter. Det pulserande internationella samhället och lokala sevärdheter bidrar till dess attraktionskraft för både familjer och investerare.
Avstånd:
Guardamar-stranden: 9 km (10 min)
Alicantes flygplats: 38 km (35 min)
La Marquesa Golf: 4 km
Butiker och bekvämligheter: 300 m
Dubbelglasade fönster
Inbyggda garderober i alla sovrum
Högkvalitativa golv och ytbehandlingar
Komfort året runt med AC och värme
Söderläge för naturligt ljus
Energieffektiv design (klass B)
Denna vackert underhållna villa erbjuder den perfekta kombinationen av stil, komfort och förstklassigt läge.
Kontakta oss idag för att boka en privat visning och upptäck allt detta fantastiska hem har att erbjuda.
Spara 1000 på ditt spanska köp av fastighetsköp med en av våra föredragna valutaväxlingspartners
Behöver du finansiering för att hjälpa dig köpa drömspansk egendom? Vi arbetar med Mortgage Direct nummer 1 internationella inteckning mäklare i Spanien
Ovanpå inköpspriset måste du tillåta 10% för köpöverföringsskatt och ytterligare 3 500 euro för att täcka notaryskatter & avgifter & advokat / juridiska avgifter inklusive din NIE-ansökan
Om du ska köpa med en spansk inteckning måste du tillåta ytterligare 3 500 euro ovanför beloppen ovan för att täcka hypoteksmäklars avgifter, banklånprovision, bankvärdering och arrangemangsavgifter och försäkringar. Maximal inteckning tillgänglig för utlänningar är 70% av inköpspriset
Registrera NU för de senaste valutauppdateringarna och inteckningstips eftersom vi verkligen kan spara dig 1 000 och 1 000 på ditt spanska fastighetsköp
Uppgifterna ovan kan ändras och ingår inte i något avtal