
Vi presenterar dessa exklusiva nybyggda stadsvillor i La Romana (Alicante), en charmig by i inlandet känd för sitt lugn, sin naturliga omgivning bland vingårdar och berg, och utmärkta förbindelser med städer som Elche, Aspe och Alicante. En idealisk miljö för dem som söker livskvalitet, avskildhet och komfort, med alla fördelar med ett modernt och hållbart hem.
Dessa bostäder kommer att vara leveransklara inom cirka 8 till 9 månader från byggstart och är utformade med material av högsta kvalitet med uppmärksamhet på varje detalj för att ge maximal komfort och energieffektivitet.
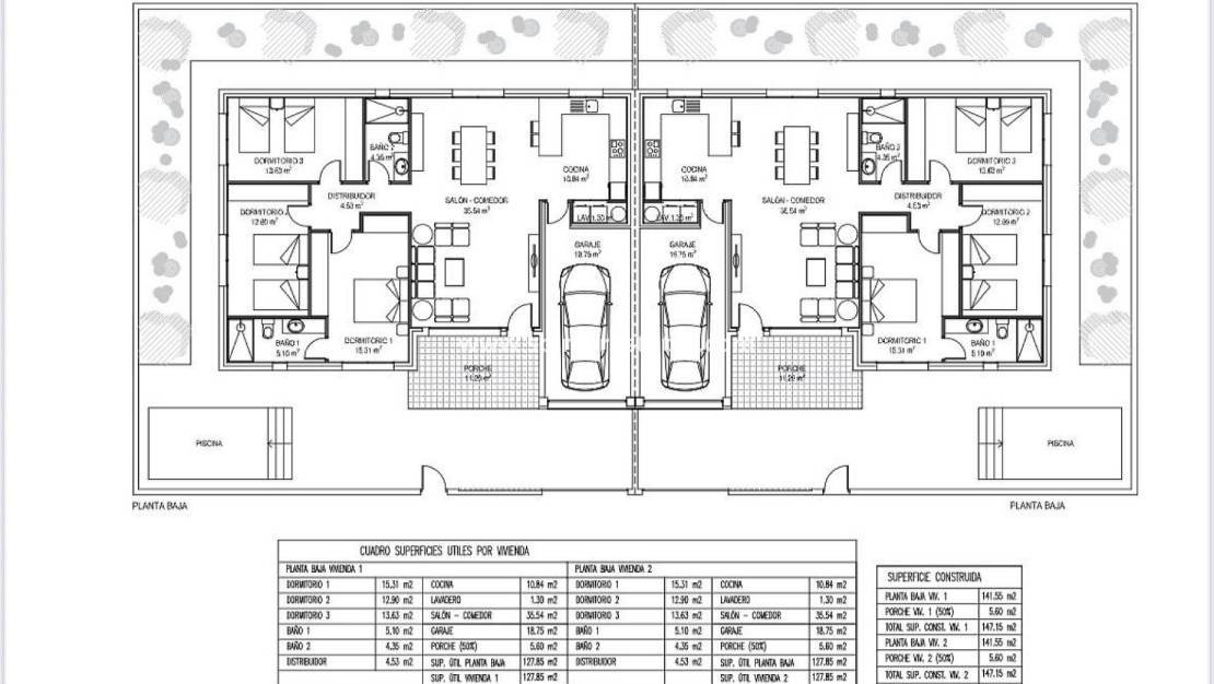
Huvudfunktioner
GRUND OCH KONSTRUKTION Armerad betongkonstruktion byggd på isolerade fundament sammankopplade med förankringsbalkar, vilket säkerställer byggnadens soliditet och hållbarhet.
FASADER OCH ISOLERING Vit monocapa utvändig finish med 14 cm termolera tegelverk, isolerad hålighet med EPS och invändig cementputs, vilket ger utmärkt värme- och akustisk isolering.
TAK Platt tak med integrerat dräneringssystem.
Snickeri och ytbehandlingar
Exteriör: Pansard ytterdörr med högsäkerhetslås, antracitgrå PVC-fönster med köldbrygga, motoriserade aluminiumjalusier och Climalit-dubbelglas. Fönsterbrädor i Capri-kalksten eller liknande.
Interiör: Vitlackerade innerdörrar med stål- eller svarta handtag. Inbyggda garderober upp till taket i huvudsovrummet, vilket kombinerar elegans och funktionalitet.
Skiljeväggar: Invändiga skiljeväggar i 7 cm tegel putsade med gips.
Interiörer och ytbehandlingar
Porslinsgolv av högsta kvalitet (kan anpassas från tillgängliga alternativ).
Halkfria golv på terrassen och utomhusområden.
Gångväg på cirka 1 meter avslutad med samma utvändiga beläggning.
Gipsskivor i undertak i hela huset.
Slät mattvit plastfärg på väggar och tak.
Badrum och kök
Badrum: Högkvalitativa keramiska vägg- och golvplattor, sanitetsartiklar i vitt porslin, duschkar med fast 1-metersduschvägg, kromade ettgreppsblandare och badrumsmöbler med inbyggt handfat och spegel.
Kök: Fullt utrustat med över- och underskåp upp till taket, bänkskiva i Silestone eller liknande med diskho och blandare i ett enda kran, förinstallation för vitvaror, köksö och valfri keramisk stänkskydd från premiumkvalitetsalternativ.
Installationer och komfort
Elinstallation med hög kapacitet och högkvalitativa armaturer.
TV- och datauttag i sovrum, vardagsrum och pergola.
Videoporttelefon med bild och förinstallation för utomhusbelysningspunkter.
Motoriserade jalusier.
Luftkonditionering (varm/kall) via kanaler (helt förinstallerad).
Varmvattenförsörjning via en 100-liters elvärmare.
Förinstallation för solpaneler på solariet för egenförbrukning.
Vertikalt ventilationssystem med galler för att förbättra hemmets energieffektivitet.
Avloppsvattenavlopp anslutet till huvudavloppssystemet.
Utomhusområden
Helt inhägnad tomt med en 1 meter hög mur och ett 0,60–0,80 m staket ovanpå.
Automatisk skjutgrind för fordon (3,50 × 2,00 m) med motor inkluderad.
Privat pool (5,00 × 2,50 m) med mosaikplattor, LED-belysning och beläggning längs hela ytan som matchar fasaden.
Konstgräsyta på cirka 15 m².
Energieffektivitet och hållbarhet
Dessa bostäder har förbättrats med konstruktionen och syftar till att optimera energiförbrukningen, säkerställa komfort, besparingar och hållbarhet. Utrustade med den senaste tekniken inom luftkonditionering och luftkvalitetssystem uppnår de en utmärkt energieffektivitetsklassning.
Plats: La Romana, Alicante
La Romana är en charmig stad i inlandet i Alicante, omgiven av natur, olivlundar och vingårdar, belägen bara 30 minuter från kusten och Alicante-Elche flygplats. Den erbjuder alla nödvändiga tjänster – skolor, stormarknader, restauranger och en vårdcentral – vilket gör dessa bostäder till ett perfekt val för både permanent boende och fritidshus.
Sammanfattningsvis
Nybyggda urbana villor i La Romana med modern design, privat pool, luftkonditionering, högkvalitativa material och avancerad energieffektivitet. Beräknad leverans inom 8–9 månader. Ett hem där komfort, kvalitet och miljö möts för att erbjuda en lugn och modern livsstil i hjärtat av Alicante.
Varför välja Solmar Estates?
Solmar Estates Costa Blanca CB är registrerade i den obligatoriska registreringen av fastighetsmäklare i Comunidad Valenciana under nummer RAICV 1869 och med det registrerade skattenumret ESE54206974.
För mer information klicka på länken nedan)
https://sforms.gva.es/sformssi...
Spara 1000 på ditt spanska köp av fastighetsköp med en av våra föredragna valutaväxlingspartners
Behöver du finansiering för att hjälpa dig köpa drömspansk egendom? Vi arbetar med Mortgage Direct nummer 1 internationella inteckning mäklare i Spanien
Ovanpå inköpspriset måste du tillåta 10% för köpöverföringsskatt och ytterligare 3 500 euro för att täcka notaryskatter & avgifter & advokat / juridiska avgifter inklusive din NIE-ansökan
Om du ska köpa med en spansk inteckning måste du tillåta ytterligare 3 500 euro ovanför beloppen ovan för att täcka hypoteksmäklars avgifter, banklånprovision, bankvärdering och arrangemangsavgifter och försäkringar. Maximal inteckning tillgänglig för utlänningar är 70% av inköpspriset
Registrera NU för de senaste valutauppdateringarna och inteckningstips eftersom vi verkligen kan spara dig 1 000 och 1 000 på ditt spanska fastighetsköp
Uppgifterna ovan kan ändras och ingår inte i något avtal