+34 966 116 650 +34 678 933 450 info@solmarestates.com
C.C. Playa Flamenca Unit 129, Calle Niagara, 62, 03189 Playa Flamenca, Alicante, Spain

Fristående villa · Nybyggnad Costa Blanca South · La Nucia · Don Mar

Ref.: N-80989
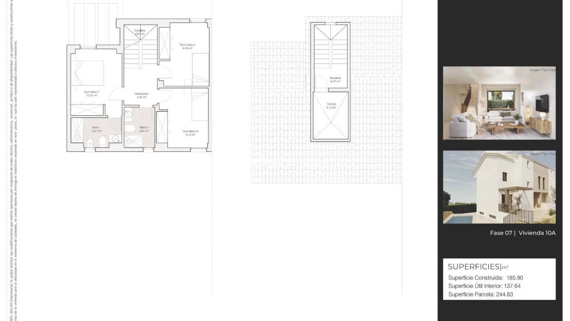
185m2
244m2
3
2
Ja

Egenskaper

Sovrum: 3
Badrum: 2
Byggd: 185m2
Tomt: 244m2
Energi~~POS=TRUNC: B
Storage / Trastero
Useable Build Space: 137 Msq.
Toilet: 1
Private Pool
Garden
Gated
Number of Parking Spaces: 1
Near Schools
Near Commercial Center
Near Bus Route
Under-Build / Basement
Double Bedrooms: 3
Solarium: Yes
Beach: 6000 Meters
Terrace: 22 Msq.
Location: Rural, Mountain, Urbanisation
Laundry Room
Parking - Space - Garage - Double Garage
Energi~~POS=TRUNC
Energi~~POS=TRUNC:
B

Beskrivning

Exklusiva nybyggda parhusvillor med privat pool och garage i La Nucía Upptäck detta förstklassiga bostadsområde med 14 nybyggda parhusvillor i medelhavsstil, som kombinerar tidlös arkitektur med modern interiör. Dessa bostäder ligger nära La Nucía huvudsakliga shoppingcenter och erbjuder en perfekt blandning av lugn, elegans och bekvämlighet. Bäst läge i La Nucía La Nucía är en eftertraktad stad i regionen Marina Baixa i Alicante, känd för sin fridfulla omgivning, utmärkta infrastruktur och närhet till den livliga staden Benidorm. Invånarna njuter av en avslappnad medelhavslivsstil med internationella skolor, förstklassiga idrottsanläggningar, toppmoderna sjukhus, gourmetrestauranger, golfbanor och vackra stränder i närheten. Staden ligger bara 8 km från Benidorm, 6 km från stränderna i Altea och 51 km norr om Alicante. Modern komfort och förstklassiga funktioner Varje villa ligger på en privat tomt och har en källare med garage, tvättstuga och förråd. Bottenvåningen har flera terrasser, en privat pool, ett öppet vardagsrum med matplats i anslutning till köket och en gästtoalett. På första våningen finns 3 sovrum och 2 badrum, inklusive en master suite med eget badrum. Solterrassen på taket erbjuder panoramautsikt. Högkvalitativa specifikationer inkluderar: Aluminiumfönster med värmeisoleringsprofil Säkerhetsdörr Motoriserad garageport Aerotermisk uppvärmning och kylning med Airzone-system för individuell rumskontroll Varmvatten genom aerotermiskt system En livsstil präglad av lugn och elegans I La Nucía definieras lyx av balans – tid, komfort och välbefinnande. Från frukost på terrassen till eftermiddagar på stranden eller golfbanan och kvällar på fina restauranger erbjuder denna plats en privilegierad livsstil i hjärtat av Costa Blanca. Avstånd till viktiga sevärdheter: Shoppingcenter: 1 km Strand: 6 km Benidorm: 8 km Playa del Albir: 15 km Terra Mítica: 5 minuter Elians International School: 5 minuter Alicante flygplats: 40 km Ditt drömhus vid Medelhavet Dessa villor i La Nucía är perfekta för dig som söker en permanent bostad, ett andra hem eller en förstklassig investeringsmöjlighet. Med sitt strategiska läge, högkvalitativa finish och moderna design representerar de en exceptionell möjlighet på Costa Blanca. Kontakta oss idag för att boka en visning och säkra din plats i detta exklusiva bostadsområde.

Plats

De allra bästa valutaväxling och inteckningstips

Spara 1000 på ditt spanska köp av fastighetsköp med en av våra föredragna valutaväxlingspartners

Behöver du finansiering för att hjälpa dig köpa drömspansk egendom? Vi arbetar med Mortgage Direct nummer 1 internationella inteckning mäklare i Spanien

Beräkna inteckningar

Valutaväxling

  • Pounds: 515.610 GBP
  • Ryska rubeln: 515.610 RUB
  • Schweiziska franc: 546.421 CHF
  • Kinesiska yuan: 4.755.980 CNY
  • Dollar: 695.693 USD
  • Svenska kronor: 6.427.080 SEK
  • Den norska kronan: 6.505.785 NOK

Köpskostnader

Ovanpå inköpspriset måste du tillåta 10% för köpöverföringsskatt och ytterligare 3 500 euro för att täcka notaryskatter & avgifter & advokat / juridiska avgifter inklusive din NIE-ansökan

Om du ska köpa med en spansk inteckning måste du tillåta ytterligare 3 500 euro ovanför beloppen ovan för att täcka hypoteksmäklars avgifter, banklånprovision, bankvärdering och arrangemangsavgifter och försäkringar. Maximal inteckning tillgänglig för utlänningar är 70% av inköpspriset

Registrera NU för de senaste valutauppdateringarna och inteckningstips eftersom vi verkligen kan spara dig 1 000 och 1 000 på ditt spanska fastighetsköp

Uppgifterna ovan kan ändras och ingår inte i något avtal

Be om information

Responsable del tratamiento: Solmar Estates, Finalidad del tratamiento: Gestión y control de los servicios ofrecidos a través de la página Web de Servicios inmobiliarios, Envío de información a traves de newsletter y otros, Legitimación: Por consentimiento, Destinatarios: No se cederan los datos, salvo para elaborar contabilidad, Derechos de las personas interesadas: Acceder, rectificar y suprimir los datos, solicitar la portabilidad de los mismos, oponerse altratamiento y solicitar la limitación de éste, Procedencia de los datos: El Propio interesado, Información Adicional: Puede consultarse la información adicional y detallada sobre protección de datos Aquí.

© 2026 Solmar Estates · Juridisk anteckning · Privatliv · Villkor gäller · Cookies · Web karta · Design: Mediaelx

Kontakta WhatsApp