
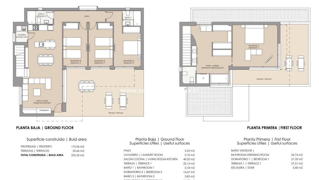
Nybyggda villor på Vistabella Golf Resort – Orihuela Upplev modernt medelhavsliv i hjärtat av Costa Blanca med dessa fantastiska nybyggda villor på Vistabella Golf Resort. Beläget mellan San Miguel de Salinas och Los Montesinos, i kommunen Orihuela, erbjuder detta exklusiva bostadsområde lyx, komfort och ett oslagbart läge för både golfentusiaster och livsstilsorienterade. Två olika villamodeller Köpare kan välja mellan två eleganta modeller: Enplansvillor med 3 sovrum, 2 badrum och takterrass. Tvåvåningsvillor med 4 sovrum, 3 badrum och solterrass på första våningen. Båda modellerna ligger på tomter på cirka 300 m² och har privat pool och parkering på tomten. Premiumkvalitet och modern komfort Varje villa har lyxig finish, inklusive fullt installerad luftkonditionering, utrustat kök med vitvaror, utomhusbelysning, elektriska fönsterluckor och eleganta duschväggar i badrummen. Kombinationen av stil och funktionalitet garanterar ett hem som är både vackert och praktiskt. Exklusiv livsstil på golfresort Vistabella Golf Resort är en gated community med en 18-håls golfbana, paddeltennisbanor, en bowlingbana, en stormarknad och ett brett utbud av barer och restauranger. Framtida uppgraderingar kommer att göra resorten till en riktig 5-stjärnig destination, med planerade tillägg som en champagnebar, sushibar, spahotell, konstgjord strand, tennisbana, fotbollsplan och gourmetbar. Förstklassigt läge på Costa Blanca Resorten erbjuder utmärkt tillgång till regionens bästa stränder, golfbanor och tjänster. Avstånd till viktiga sevärdheter: La Mata-stranden: 18 km Guardamar del Segura-stranden: 20 km Torrevieja: 15 km Alicante flygplats: 55 km Murcia flygplats: 68 km Villamartín Golf: 12 km Las Colinas Golf & Country Club: 14 km Ditt drömhem väntar Oavsett om det är som permanentbostad, semesterhus eller uthyrningsinvestering, erbjuder dessa nybyggda villor på Vistabella Golf Resort exceptionellt värde i ett av Spaniens mest eftertraktade kustområden. Kontakta oss idag för att boka en visning och säkra din plats i detta lyxiga golfsamhälle.
Spara 1000 på ditt spanska köp av fastighetsköp med en av våra föredragna valutaväxlingspartners
Behöver du finansiering för att hjälpa dig köpa drömspansk egendom? Vi arbetar med Mortgage Direct nummer 1 internationella inteckning mäklare i Spanien
Ovanpå inköpspriset måste du tillåta 10% för köpöverföringsskatt och ytterligare 3 500 euro för att täcka notaryskatter & avgifter & advokat / juridiska avgifter inklusive din NIE-ansökan
Om du ska köpa med en spansk inteckning måste du tillåta ytterligare 3 500 euro ovanför beloppen ovan för att täcka hypoteksmäklars avgifter, banklånprovision, bankvärdering och arrangemangsavgifter och försäkringar. Maximal inteckning tillgänglig för utlänningar är 70% av inköpspriset
Registrera NU för de senaste valutauppdateringarna och inteckningstips eftersom vi verkligen kan spara dig 1 000 och 1 000 på ditt spanska fastighetsköp
Uppgifterna ovan kan ändras och ingår inte i något avtal