
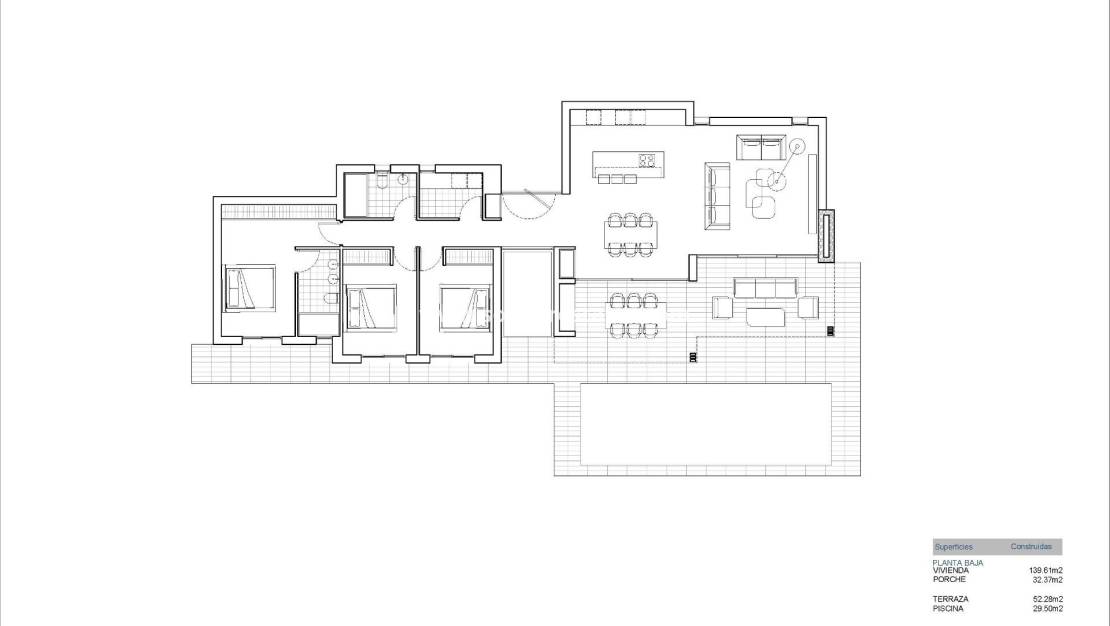
NYBYGGD VILLA I CALPE Nybyggd villa belägen i ett av de bostadsområden som föredras av alla invånare i Calpe, på grund av närheten till centrum, stränderna och samtidigt för att det är ett lugnt men säkert område, eftersom det ligger i utkanten av centrum. Fastigheten har planerats på en enda våning, vilket gör detta projekt praktiskt och bekvämt. Hela tomten är inhägnad och har en häck av cypresser inuti, vilket ger avskildhet och en trevlig miljö. Från huvudentrén till huset har vi tillgång till en hall, varifrån till vänster har vi tillgång till dagsområdet, som består av ett vardagsrum med matsal och öppet kök med ö. Från vardagsrummet har vi tillgång till utsidan, där vi har en täckt veranda område med grill och en stor terrass med pool på 40m2. På husets högra sida ligger sovdelen, med 4 sovrum: master suite med omklädningsrum och badrum, ett annat sovrum med eget badrum och ytterligare två sovrum som delar på ett badrum. Det finns också en tvättstuga. Utanför finns en parkeringsplats med en pergola i form av ett segel för två bilar. Calpe, en av städerna i La Marina Alta, ligger på den norra kusten i provinsen Alicante, omgiven av städerna Altea, Benidorm, Teulada-Moraira, Benissa. Calpe har en underbar blandning av gammal valenciansk kultur och moderna turistanläggningar. Det är en utmärkt utgångspunkt för att utforska det lokala området eller njuta av de många lokala stränderna. Bara Calpe har tre av kustens vackraste sandstränder. Calpe har också två segelklubbar: Real Club Náutico de Calpe och Club Náutico de Puerto Blanco. Fiskebyn Calpe har nu förvandlats till en turistmagnet, och staden har ett idealiskt läge, lätt att nå via motorvägen A7 och N332 som går från Valencia till Alicante. Det är ungefär en timmes bilresa från Alicantes flygplats och 1,5 timmar till Valencias flygplats.
Spara 1000 på ditt spanska köp av fastighetsköp med en av våra föredragna valutaväxlingspartners
Behöver du finansiering för att hjälpa dig köpa drömspansk egendom? Vi arbetar med Mortgage Direct nummer 1 internationella inteckning mäklare i Spanien
Ovanpå inköpspriset måste du tillåta 10% för köpöverföringsskatt och ytterligare 3 500 euro för att täcka notaryskatter & avgifter & advokat / juridiska avgifter inklusive din NIE-ansökan
Om du ska köpa med en spansk inteckning måste du tillåta ytterligare 3 500 euro ovanför beloppen ovan för att täcka hypoteksmäklars avgifter, banklånprovision, bankvärdering och arrangemangsavgifter och försäkringar. Maximal inteckning tillgänglig för utlänningar är 70% av inköpspriset
Registrera NU för de senaste valutauppdateringarna och inteckningstips eftersom vi verkligen kan spara dig 1 000 och 1 000 på ditt spanska fastighetsköp
Uppgifterna ovan kan ändras och ingår inte i något avtal