+34 966 116 650 +34 678 933 450 info@solmarestates.com
C.C. Playa Flamenca Unit 129, Calle Niagara, 62, 03189 Playa Flamenca, Alicante, Spain

Fristående villa · Nybyggnad Costa Blanca South · Aspe · Poligono 19

Ref.: N-57943
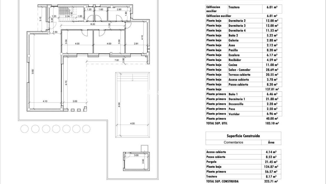
223m2
13.172m2
4
3
Ja

Egenskaper

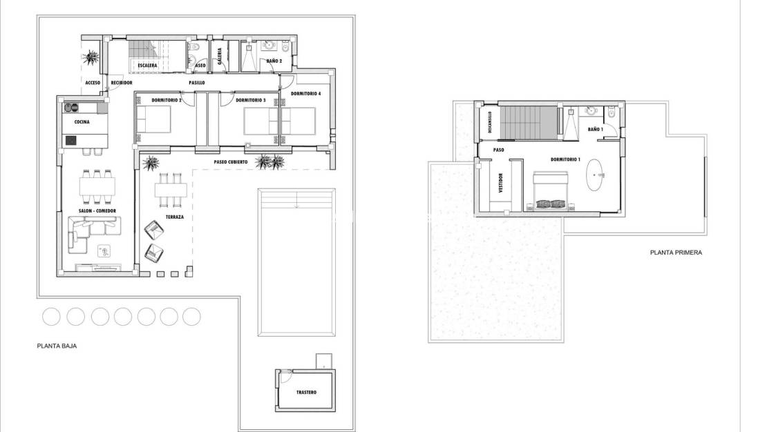
Sovrum: 4
Badrum: 3
Byggd: 223m2
Tomt: 13.172m2
Energi~~POS=TRUNC: B
Storage / Trastero
Useable Build Space: 183 Msq.
Private Pool
Garden
Gated
Number of Parking Spaces: 1
Near Schools
Air Conditioning: Pre-Installed
Double Bedrooms: 4
Location: Mountain
Beach: 25000 Meters
Parking - Space
Terrace: 34 Msq.
Energi~~POS=TRUNC
Energi~~POS=TRUNC:
B

Beskrivning

Nybyggda villor belägna i Aspe. Nybyggda villor med flera modeller att välja mellan med 2, 3 eller 4 sovrum, med en eller två våningar och byggda med platta eller struktur: beroende på modell och tomtval beräknas det exakta priset. Alla villor byggs på rustika tomter på över 10 000 m2, varav cirka 2 500 m2 kommer att stängslas in. Villorna har ett öppet kök med vardagsrum, inbyggda garderober, privat pool, veranda, förråd och utomhusparkeringsplats. Det finns flera tomter att välja mellan. För prisberäkningen har en tomt med ett pris på 77 500 euro använts (om en annan tomt väljs betalas eller krediteras skillnaden enligt tomtens pris). Byggs på egen bekostnad, leverans inom cirka 12 månader från beviljandet av bygglov. Om du letar efter en lugn miljö, nära typiska spanska byar långt från turistmassorna, omgiven av berg, med en mycket stor tomt och cirka 30 minuter från havet, är detta ditt hem. Aspe är en typisk spansk by med alla tjänster för det dagliga livet, omgiven av berg och med flera naturområden i närheten där du kan vandra eller cykla mountainbike. Beläget 25 km från stranden, 9 km från Elche och cirka 20 km från Alicante flygplats.

Plats

De allra bästa valutaväxling och inteckningstips

Spara 1000 på ditt spanska köp av fastighetsköp med en av våra föredragna valutaväxlingspartners

Behöver du finansiering för att hjälpa dig köpa drömspansk egendom? Vi arbetar med Mortgage Direct nummer 1 internationella inteckning mäklare i Spanien

Beräkna inteckningar

Valutaväxling

  • Pounds: 532.970 GBP
  • Ryska rubeln: 532.970 RUB
  • Schweiziska franc: 564.819 CHF
  • Kinesiska yuan: 4.916.114 CNY
  • Dollar: 719.117 USD
  • Svenska kronor: 6.643.480 SEK
  • Den norska kronan: 6.724.835 NOK

Köpskostnader

Ovanpå inköpspriset måste du tillåta 10% för köpöverföringsskatt och ytterligare 3 500 euro för att täcka notaryskatter & avgifter & advokat / juridiska avgifter inklusive din NIE-ansökan

Om du ska köpa med en spansk inteckning måste du tillåta ytterligare 3 500 euro ovanför beloppen ovan för att täcka hypoteksmäklars avgifter, banklånprovision, bankvärdering och arrangemangsavgifter och försäkringar. Maximal inteckning tillgänglig för utlänningar är 70% av inköpspriset

Registrera NU för de senaste valutauppdateringarna och inteckningstips eftersom vi verkligen kan spara dig 1 000 och 1 000 på ditt spanska fastighetsköp

Uppgifterna ovan kan ändras och ingår inte i något avtal

Be om information

Responsable del tratamiento: Solmar Estates, Finalidad del tratamiento: Gestión y control de los servicios ofrecidos a través de la página Web de Servicios inmobiliarios, Envío de información a traves de newsletter y otros, Legitimación: Por consentimiento, Destinatarios: No se cederan los datos, salvo para elaborar contabilidad, Derechos de las personas interesadas: Acceder, rectificar y suprimir los datos, solicitar la portabilidad de los mismos, oponerse altratamiento y solicitar la limitación de éste, Procedencia de los datos: El Propio interesado, Información Adicional: Puede consultarse la información adicional y detallada sobre protección de datos Aquí.

© 2026 Solmar Estates · Juridisk anteckning · Privatliv · Villkor gäller · Cookies · Web karta · Design: Mediaelx

Kontakta WhatsApp