
Deze halfvrijstaande villa, gelegen in het wooncomplex Riomar III, is op het zuiden georiënteerd en biedt toegang tot een groot gemeenschappelijk park met zwembad. De woning bevindt zich op een aantrekkelijke hoeklocatie en biedt zowel privacy als extra buitenruimte.
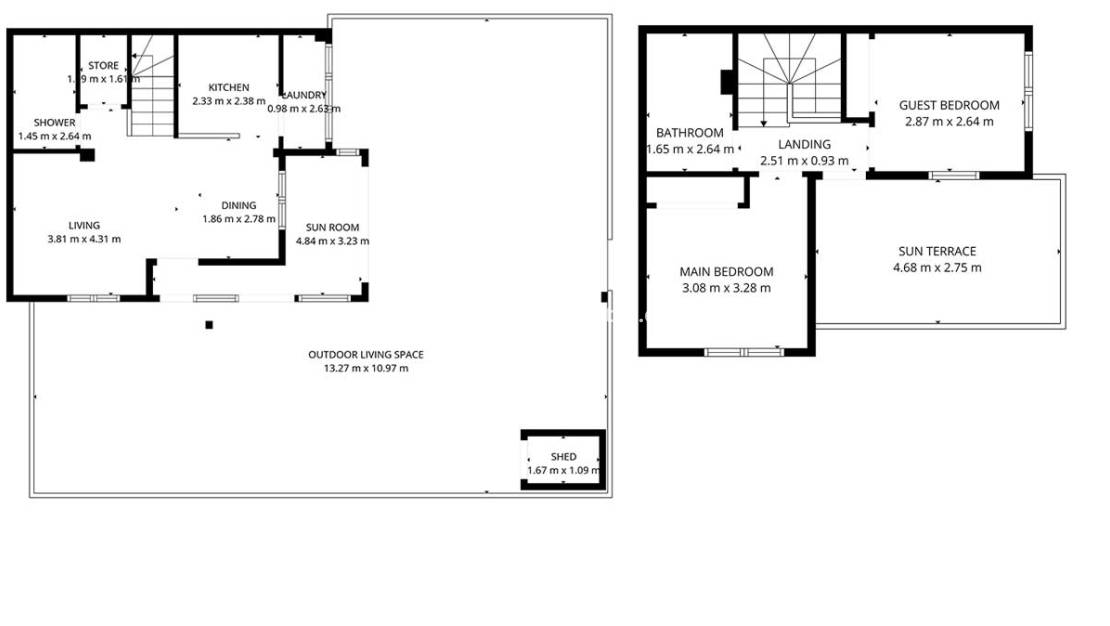
De woning bestaat uit twee slaapkamers en twee complete badkamers, een open keuken en een aparte was-/bijkeuken. De ruime woon- en eetkamer geeft toegang tot een glazen terras, dat extra leefruimte biedt, ideaal om het hele jaar door te dineren of te ontspannen.
Buiten ligt de woning op een ruim hoekperceel met een onderhoudsvriendelijke patiotuin en een royaal boventerras, perfect om te genieten van het zonnige klimaat. De woning is voorzien van airconditioning en beschikt over zowel binnen- als buitenbergruimte.
De woning wordt volledig gemeubileerd verkocht en verkeert in uitstekende staat.
Riomar III staat bekend om zijn goed onderhouden gemeenschappelijke tuinen en zwembaden. Het complex is gelegen in een rustige buurt met volwassen bomen en groene zones, waardoor het geschikt is voor zowel permanent wonen als vakantiegebruik.
Een van de grootste voordelen van deze locatie is de nabijheid van het strand. De prachtige stranden van Mil Palmeras liggen op slechts 900 meter afstand, waaronder Playa de Mil Palmeras, een strand met de Blauwe Vlag en fijn goudkleurig zand. Lokale bars, cafés, winkels en andere voorzieningen zijn ook gemakkelijk te bereiken.
Neem vandaag nog contact met ons op om een bezichtiging te regelen van deze fraai gepresenteerde woning op een ideale locatie aan de kust.
Waarom kiezen voor Solmar Estates?
Wij zijn trotse leden van de API – Agente de la Propiedad Inmobiliaria – een vereniging die al vele jaren actief is in de Spaanse vastgoedsector. Lidmaatschap van de API is een optie voor makelaars en brengt verplichtingen met zich mee op het gebied van opleiding, ervaring en een uitgebreide ethische code. Het API-lidmaatschap biedt onze kopers en verkopers maximale garanties met betrekking tot onze werkwijze en kwalificaties. API-registratienummer 00280.
Klik op de onderstaande link voor meer informatie.
Bespaar 1.000's op uw aankoop van onroerend goed in Spanje met behulp van een van onze favoriete valutapartners
Financiering nodig om u te helpen Spaans onroerend goed te kopen? Wij werken samen met de Hypotheek Direct, de nummer 1 internationale hypotheekmakelaar in Spanje
Bovenop de aankoopprijs moet u 10% toestaan voor overdrachtsbelasting en nog eens 3.500 euro om notarisbelastingen en kosten te dekken & advocaat / juridische kosten inclusief uw NIE-aanvraag
Als u met een Spaanse hypotheek gaat kopen, moet u een bedrag van 3.500 euro extra bovenop de bedragen hierboven laten staan om de kosten van de hypotheekmakelaar, de commissie van de bankhypotheek, de bankwaardering en de schikkingskosten en verzekeringen te dekken. Maximale beschikbare hypotheek voor niet-ingezetenen is 70% van de aankoopprijs
Registreer NU voor de nieuwste valuta-updates en hypotheekaanbiedingen, want we kunnen u echt 1.000's & 1.000's besparen op uw aankoop van Spaans onroerend goed
De hierboven gegeven informatie kan worden gewijzigd en maakt geen deel uit van een contract
C.C. Playa Flamenca Unit 129,
Calle Niagara, 62,
03189 Playa Flamenca,
Alicante, Spain
Allereerst bedankt dat je contact met ons hebt opgenomen.
We hebben uw verzoek met betrekking tot de eigenschap referentie ontvangen:R-91912. Een van onze agenten neemt zo snel mogelijk contact met u op.
Allereerst bedankt dat je contact met ons hebt opgenomen.
We hebben een aanvraag voor een rapport ontvangen als u de prijs van het onroerend goed met de referentie verlaagt: R-91912
Bekijk in de tussentijd eens een selectie van vergelijkbare woningen die voor u van belang kunnen zijn:
