
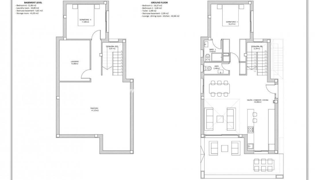
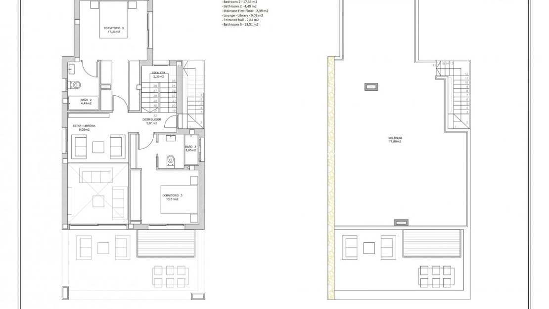
2 NIEUWBOUW VILLA'S IN TORREVIEJA 2 Nieuwe Mooie villa's in Torrevieja. Villas heeft 4 slaapkamers, 4 badkamers, open keuken met de zithoek, inbouwkasten, eigen tuin met het zwembad en off road parkeerplaats, prive solarium en kelder. Villas gelegen op 15 minuten lopen naar het beroemde Playa de La Mata (5 minuten met de auto). Torrevieja is een Spaanse stad in de provincie Alicante, aan de Costa Blanca. Het is bekend om zijn typisch mediterrane klimaat en kustlijn. Het heeft promenades met resorts langs zijn zandstranden. Het kleine Museum van de Zee en het Zout herbergt tentoonstellingen over de visserij- en zoutgeschiedenis van de stad. In het binnenland vindt u het natuurpark Lagunas de La Mata-Torrevieja met wandelpaden en twee zoutmeren, de ene roze en de andere groen. De luchthaven van Alicante ligt op 40 minuten afstand en die van Murcia op ongeveer 1 uur.
Bespaar 1.000's op uw aankoop van onroerend goed in Spanje met behulp van een van onze favoriete valutapartners
Financiering nodig om u te helpen Spaans onroerend goed te kopen? Wij werken samen met de Hypotheek Direct, de nummer 1 internationale hypotheekmakelaar in Spanje
Bovenop de aankoopprijs moet u 10% toestaan voor overdrachtsbelasting en nog eens 3.500 euro om notarisbelastingen en kosten te dekken & advocaat / juridische kosten inclusief uw NIE-aanvraag
Als u met een Spaanse hypotheek gaat kopen, moet u een bedrag van 3.500 euro extra bovenop de bedragen hierboven laten staan om de kosten van de hypotheekmakelaar, de commissie van de bankhypotheek, de bankwaardering en de schikkingskosten en verzekeringen te dekken. Maximale beschikbare hypotheek voor niet-ingezetenen is 70% van de aankoopprijs
Registreer NU voor de nieuwste valuta-updates en hypotheekaanbiedingen, want we kunnen u echt 1.000's & 1.000's besparen op uw aankoop van Spaans onroerend goed
De hierboven gegeven informatie kan worden gewijzigd en maakt geen deel uit van een contract
C.C. Playa Flamenca Unit 129,
Calle Niagara, 62,
03189 Playa Flamenca,
Alicante, Spain
Allereerst bedankt dat je contact met ons hebt opgenomen.
We hebben uw verzoek met betrekking tot de eigenschap referentie ontvangen:N-89198. Een van onze agenten neemt zo snel mogelijk contact met u op.
Allereerst bedankt dat je contact met ons hebt opgenomen.
We hebben een aanvraag voor een rapport ontvangen als u de prijs van het onroerend goed met de referentie verlaagt: N-89198
Bekijk in de tussentijd eens een selectie van vergelijkbare woningen die voor u van belang kunnen zijn:
