+34 966 116 650 +34 678 933 450 info@solmarestates.com
C.C. Playa Flamenca Unit 129, Calle Niagara, 62, 03189 Playa Flamenca, Alicante, Spain

Vrijstaande Villa · Nieuw gebouw Costa Blanca South · Orihuela · Vistabella Golf

Ref.: N-29011
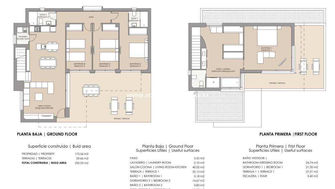
175m2
305m2
4
3
Ja

Kenmerken

Slaapkamers: 4
Badkamers: 3
Gebouwd: 175m2
Plot: 305m2
Energy Rating: B
Private Pool
Gated
Number of Parking Spaces: 1
Near Schools
Near Commercial Center
Location: Urbanisation
Solarium: Yes
Useable Build Space: 120 Msq.
Double Bedrooms: 4
Near Golf / Golf Resort Property
Beach: 14000 Meters
Terrace: 59 Msq.
Parking - Space
Energy Rating
Energy Rating:
B

Beschrijving

Nieuwbouwwoningen in Vistabella Golf Resort – Orihuela Ervaar het moderne mediterrane leven in het hart van de Costa Blanca met deze prachtige nieuwbouwwoningen in Vistabella Golf Resort. Gelegen tussen San Miguel de Salinas en Los Montesinos, in de gemeente Orihuela, biedt dit exclusieve project luxe, comfort en een ongeëvenaarde locatie voor zowel golfliefhebbers als mensen die op zoek zijn naar een bepaalde levensstijl. Twee verschillende villamodellen Kopers kunnen kiezen uit twee elegante ontwerpen: Gelijkvloerse villa's met 3 slaapkamers, 2 badkamers en een solarium op het dak. Villa's met twee verdiepingen, 4 slaapkamers, 3 badkamers en een solariumterras op de eerste verdieping. Beide modellen staan op percelen van ongeveer 300 m² en beschikken over een privézwembad en parkeergelegenheid op het terrein. Premium kwaliteit en modern comfort Elke villa is voorzien van luxe afwerkingen, waaronder volledig geïnstalleerde airconditioning, ingerichte keukens met apparatuur, buitenverlichting, elektrische rolluiken en elegante doucheschermen in de badkamers. De combinatie van stijl en functionaliteit zorgt voor een woning die zowel mooi als praktisch is. Exclusieve levensstijl in een golfresort Vistabella Golf Resort is een omheinde gemeenschap met een 18-holes golfbaan, paddle-tennisbanen, een bowlingbaan, een supermarkt en een breed scala aan bars en restaurants. Toekomstige upgrades zullen het resort tot een echte 5-sterrenbestemming maken, met geplande toevoegingen zoals een champagnebar, een sushibar, een spahotel, een kunststrand, een tennisbaan, een voetbalveld en een gastronomische bar. Toplocatie aan de Costa Blanca Het resort biedt uitstekende toegang tot de beste stranden, golfbanen en diensten van de regio. Afstanden tot belangrijke bezienswaardigheden zijn onder andere: Strand van La Mata: 18 km Strand van Guardamar del Segura: 20 km Torrevieja: 15 km Luchthaven Alicante: 55 km Luchthaven Murcia: 68 km Villamartín Golf: 12 km Las Colinas Golf & Country Club: 14 km Uw droomhuis wacht op u Of het nu gaat om een permanente woning, een vakantiehuis of een investering in verhuur, deze nieuwbouwwoningen in Vistabella Golf Resort bieden uitzonderlijke waarde in een van de meest gewilde kustgebieden van Spanje. Neem vandaag nog contact met ons op om een bezichtiging te regelen en uw plek in deze luxe golfgemeenschap veilig te stellen.

Plaats

De allerbeste wisselkoers- en hypotheekaanbiedingen

Bespaar 1.000's op uw aankoop van onroerend goed in Spanje met behulp van een van onze favoriete valutapartners

Financiering nodig om u te helpen Spaans onroerend goed te kopen? Wij werken samen met de Hypotheek Direct, de nummer 1 internationale hypotheekmakelaar in Spanje

Bereken hypotheken

Wisselkantoor

  • Pounds: 477.330 GBP
  • Russische roebel: 477.330 RUB
  • Zwitserse frank: 505.853 CHF
  • Chinese yuan: 4.402.884 CNY
  • Dollar: 644.043 USD
  • Zweedse kroon: 5.949.918 SEK
  • De Noorse kroon: 6.022.780 NOK

Aanschafkosten

Bovenop de aankoopprijs moet u 10% toestaan ​​voor overdrachtsbelasting en nog eens 3.500 euro om notarisbelastingen en kosten te dekken & advocaat / juridische kosten inclusief uw NIE-aanvraag

Als u met een Spaanse hypotheek gaat kopen, moet u een bedrag van 3.500 euro extra bovenop de bedragen hierboven laten staan ​​om de kosten van de hypotheekmakelaar, de commissie van de bankhypotheek, de bankwaardering en de schikkingskosten en verzekeringen te dekken. Maximale beschikbare hypotheek voor niet-ingezetenen is 70% van de aankoopprijs

Registreer NU voor de nieuwste valuta-updates en hypotheekaanbiedingen, want we kunnen u echt 1.000's & 1.000's besparen op uw aankoop van Spaans onroerend goed

De hierboven gegeven informatie kan worden gewijzigd en maakt geen deel uit van een contract

Vraag voor informatie

Responsable del tratamiento: Solmar Estates, Finalidad del tratamiento: Gestión y control de los servicios ofrecidos a través de la página Web de Servicios inmobiliarios, Envío de información a traves de newsletter y otros, Legitimación: Por consentimiento, Destinatarios: No se cederan los datos, salvo para elaborar contabilidad, Derechos de las personas interesadas: Acceder, rectificar y suprimir los datos, solicitar la portabilidad de los mismos, oponerse altratamiento y solicitar la limitación de éste, Procedencia de los datos: El Propio interesado, Información Adicional: Puede consultarse la información adicional y detallada sobre protección de datos Aquí.

© 2026 Solmar Estates · Colofon · Privacy · Voorwaarden zijn van toepassing · Cookies · Web plan · Ontwerp: Mediaelx

Contact WhatsApp