+34 966 116 650 +34 678 933 450 info@solmarestates.com
C.C. Playa Flamenca Unit 129, Calle Niagara, 62, 03189 Playa Flamenca, Alicante, Spain

Vrijstaande Villa · Nieuw gebouw Costa Blanca South · La Romana · Batistes

Ref.: N-87335
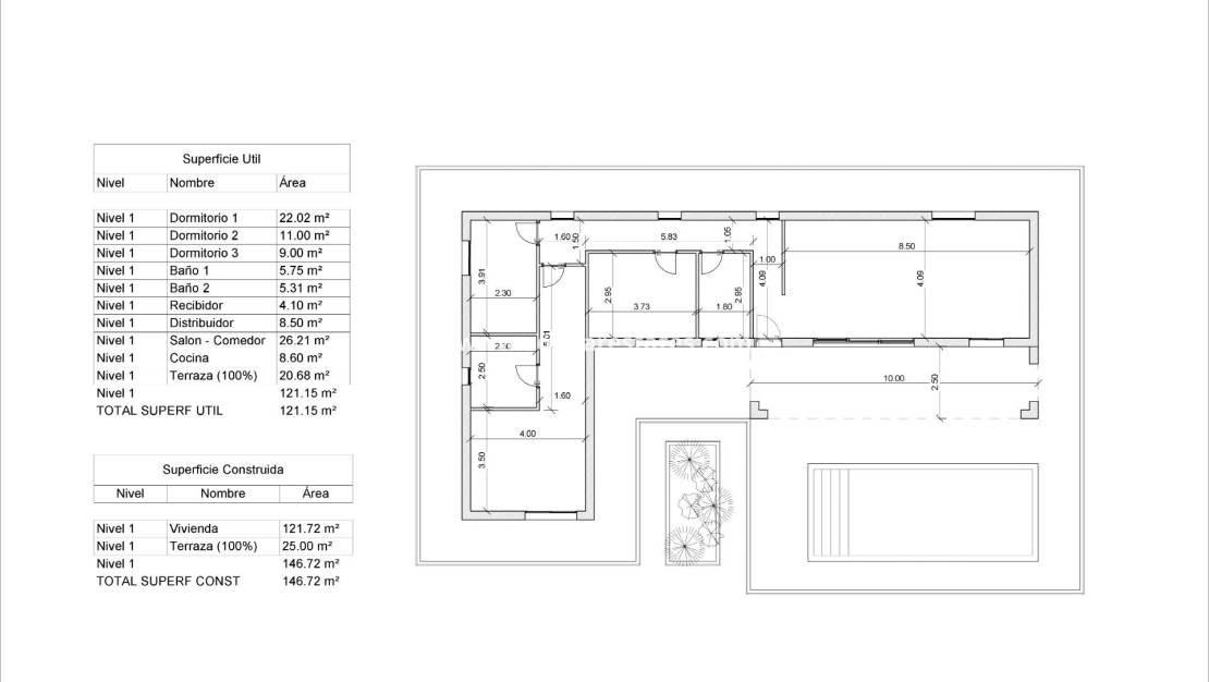
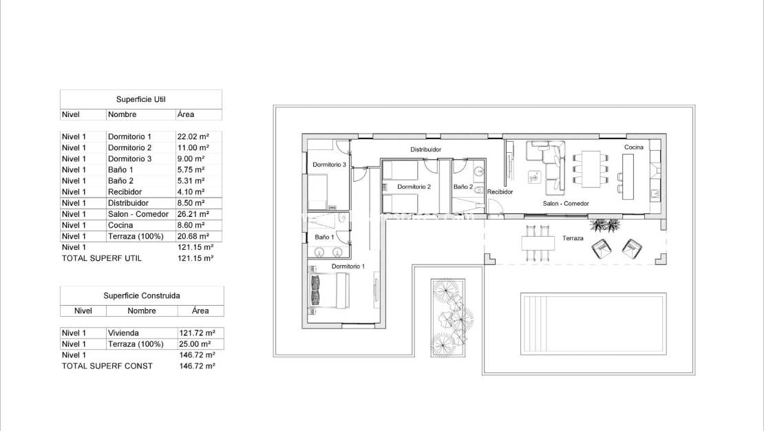
146m2
10.227m2
3
2
Ja

Kenmerken

Slaapkamers: 3
Badkamers: 2
Gebouwd: 146m2
Plot: 10.227m2
Energy Rating: B
Private Pool
Garden
Gated
Terrace: 20 Msq.
Number of Parking Spaces: 1
Near Schools
Air Conditioning: Pre-Installed
Double Bedrooms: 3
Useable Build Space: 120 Msq.
Parking - Space
Beach: 40000 Meters
Energy Rating
Energy Rating:
B

Beschrijving

Nieuwbouwwoningen in La Romana. Nieuwbouwwoningen met verschillende modellen naar keuze met 2 of 3 slaapkamers, met 1 of 2 verdiepingen en gebouwd met vloerplaten of met een structuur: afhankelijk van het model en het gekozen perceel wordt de exacte prijs berekend. Alle villa's worden gebouwd op rustieke percelen van meer dan 10.000 m2, waarvan 2.500 m2 omheind zal worden. De villa's beschikken over een open keuken met woonkamer, inbouwkasten, privézwembad, veranda en buitenparkeerplaats. Er zijn verschillende percelen beschikbaar. Voor de prijsberekening is uitgegaan van een perceel met een prijs van 62.000 euro (als u een ander perceel kiest, betaalt u het verschil op basis van de prijs van het perceel). Het project wordt in eigen beheer uitgevoerd en wordt binnen ongeveer 12 maanden na verlening van de vergunning opgeleverd. Als u op zoek bent naar een rustige omgeving, dicht bij typisch Spaanse dorpjes, ver weg van het massatoerisme, omgeven door bergen, met een zeer groot perceel en op ongeveer 30 minuten van de zee, dan is dit uw huis. La Romana is een typisch Spaans dorpje met alle voorzieningen voor het dagelijks leven, omgeven door bergen en met verschillende natuurgebieden in de buurt waar u kunt wandelen of mountainbiken. Gelegen op 30 minuten van de luchthaven van Alicante.

Plaats

De allerbeste wisselkoers- en hypotheekaanbiedingen

Bespaar 1.000's op uw aankoop van onroerend goed in Spanje met behulp van een van onze favoriete valutapartners

Financiering nodig om u te helpen Spaans onroerend goed te kopen? Wij werken samen met de Hypotheek Direct, de nummer 1 internationale hypotheekmakelaar in Spanje

Bereken hypotheken

Wisselkantoor

  • Pounds: 348.948 GBP
  • Russische roebel: 348.948 RUB
  • Zwitserse frank: 369.800 CHF
  • Chinese yuan: 3.218.693 CNY
  • Dollar: 470.822 USD
  • Zweedse kroon: 4.349.640 SEK
  • De Noorse kroon: 4.402.905 NOK

Aanschafkosten

Bovenop de aankoopprijs moet u 10% toestaan ​​voor overdrachtsbelasting en nog eens 3.500 euro om notarisbelastingen en kosten te dekken & advocaat / juridische kosten inclusief uw NIE-aanvraag

Als u met een Spaanse hypotheek gaat kopen, moet u een bedrag van 3.500 euro extra bovenop de bedragen hierboven laten staan ​​om de kosten van de hypotheekmakelaar, de commissie van de bankhypotheek, de bankwaardering en de schikkingskosten en verzekeringen te dekken. Maximale beschikbare hypotheek voor niet-ingezetenen is 70% van de aankoopprijs

Registreer NU voor de nieuwste valuta-updates en hypotheekaanbiedingen, want we kunnen u echt 1.000's & 1.000's besparen op uw aankoop van Spaans onroerend goed

De hierboven gegeven informatie kan worden gewijzigd en maakt geen deel uit van een contract

Vraag voor informatie

Responsable del tratamiento: Solmar Estates, Finalidad del tratamiento: Gestión y control de los servicios ofrecidos a través de la página Web de Servicios inmobiliarios, Envío de información a traves de newsletter y otros, Legitimación: Por consentimiento, Destinatarios: No se cederan los datos, salvo para elaborar contabilidad, Derechos de las personas interesadas: Acceder, rectificar y suprimir los datos, solicitar la portabilidad de los mismos, oponerse altratamiento y solicitar la limitación de éste, Procedencia de los datos: El Propio interesado, Información Adicional: Puede consultarse la información adicional y detallada sobre protección de datos Aquí.

© 2026 Solmar Estates · Colofon · Privacy · Voorwaarden zijn van toepassing · Cookies · Web plan · Ontwerp: Mediaelx

Contact WhatsApp