
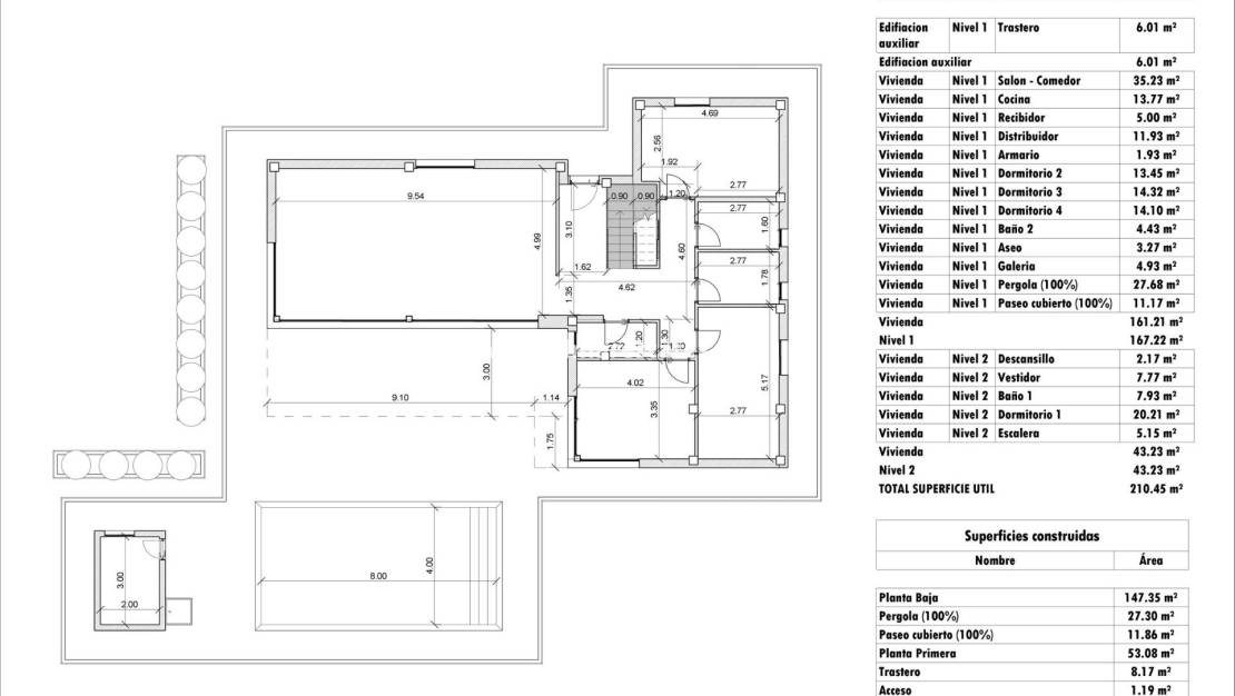
Nieuwbouwwoningen gelegen in de gemeente Aspe. Nieuwbouwwoningen met verschillende modellen naar keuze met 2, 3 of 4 slaapkamers, met één of twee verdiepingen en gebouwd met platen of met een structuur: afhankelijk van het model en het gekozen perceel wordt de exacte prijs berekend. Alle villa's worden gebouwd op rustieke percelen van meer dan 10.000 m2, waarvan ongeveer 2.500 m2 omheind zal worden. De villa's beschikken over een open keuken met woonkamer, inbouwkasten, privézwembad, veranda, berging en buitenparkeerplaats. Er zijn verschillende percelen beschikbaar. Voor de prijsberekening is uitgegaan van een perceel met een prijs van 77.500 euro (als u een ander perceel kiest, betaalt u het verschil). Het project wordt in eigen beheer uitgevoerd en wordt binnen ongeveer 12 maanden na verlening van de vergunning opgeleverd. Als u op zoek bent naar een rustige omgeving, dicht bij typisch Spaanse dorpjes, ver weg van de toeristische drukte, omgeven door bergen, met een zeer groot perceel en op ongeveer 30 minuten van de zee, dan is dit uw huis. Aspe is een typisch Spaans dorp met alle voorzieningen voor het dagelijks leven, omgeven door bergen en met verschillende natuurgebieden in de omgeving waar u kunt wandelen of mountainbiken. Gelegen op 25 km van het strand, op 9 km van Elche en op ongeveer 20 km van de luchthaven van Alicante.
Bespaar 1.000's op uw aankoop van onroerend goed in Spanje met behulp van een van onze favoriete valutapartners
Financiering nodig om u te helpen Spaans onroerend goed te kopen? Wij werken samen met de Hypotheek Direct, de nummer 1 internationale hypotheekmakelaar in Spanje
Bovenop de aankoopprijs moet u 10% toestaan voor overdrachtsbelasting en nog eens 3.500 euro om notarisbelastingen en kosten te dekken & advocaat / juridische kosten inclusief uw NIE-aanvraag
Als u met een Spaanse hypotheek gaat kopen, moet u een bedrag van 3.500 euro extra bovenop de bedragen hierboven laten staan om de kosten van de hypotheekmakelaar, de commissie van de bankhypotheek, de bankwaardering en de schikkingskosten en verzekeringen te dekken. Maximale beschikbare hypotheek voor niet-ingezetenen is 70% van de aankoopprijs
Registreer NU voor de nieuwste valuta-updates en hypotheekaanbiedingen, want we kunnen u echt 1.000's & 1.000's besparen op uw aankoop van Spaans onroerend goed
De hierboven gegeven informatie kan worden gewijzigd en maakt geen deel uit van een contract
C.C. Playa Flamenca Unit 129,
Calle Niagara, 62,
03189 Playa Flamenca,
Alicante, Spain
Allereerst bedankt dat je contact met ons hebt opgenomen.
We hebben uw verzoek met betrekking tot de eigenschap referentie ontvangen:N-63923. Een van onze agenten neemt zo snel mogelijk contact met u op.
Allereerst bedankt dat je contact met ons hebt opgenomen.
We hebben een aanvraag voor een rapport ontvangen als u de prijs van het onroerend goed met de referentie verlaagt: N-63923
Bekijk in de tussentijd eens een selectie van vergelijkbare woningen die voor u van belang kunnen zijn:
