
Située au sein du complexe résidentiel Riomar III, cette villa mitoyenne exposée plein sud bénéficie d'un accès à un grand parc commun et à une piscine. Nichée sur un terrain d'angle privilégié, elle offre à la fois intimité et un espace extérieur supplémentaire.
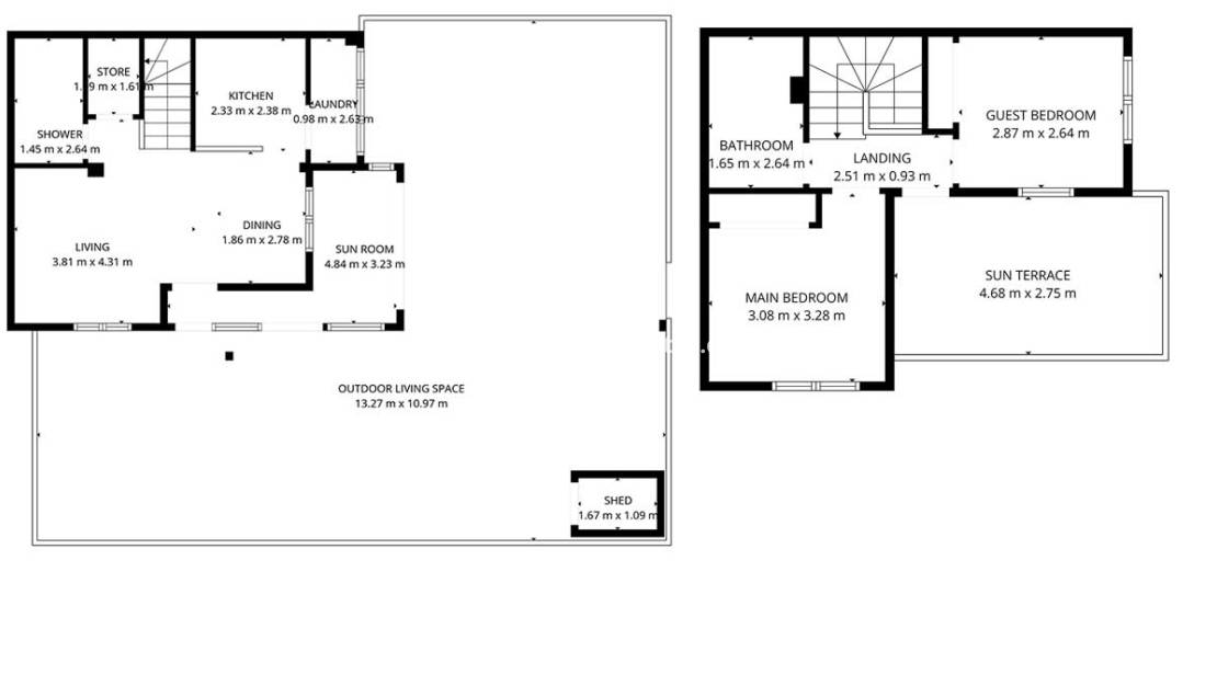
Cette maison comprend deux chambres et deux salles de bains complètes, ainsi qu'une cuisine ouverte et une buanderie/cellier séparée. Le salon et la salle à manger spacieux donnent sur une terrasse vitrée, offrant un espace de vie supplémentaire idéal pour dîner ou se détendre en toute saison.
À l'extérieur, la propriété bénéficie d'un emplacement idéal sur un terrain d'angle de belle taille, avec un patio-jardin facile d'entretien et une grande terrasse à l'étage, parfaite pour profiter du soleil. La maison est équipée de la climatisation et dispose de pièces de rangement intérieures et extérieures.
La propriété est vendue entièrement meublée et en excellent état.
Riomar III est réputé pour ses jardins communs et ses piscines bien entretenus. Situé dans un quartier paisible, arboré et verdoyant, le complexe est idéal pour y vivre à l'année ou pour y passer des vacances.
L'un des principaux atouts de cet emplacement est sa proximité avec la plage. Les magnifiques plages de Mil Palmeras se trouvent à seulement 900 mètres, notamment la Playa de Mil Palmeras, une plage Pavillon Bleu au sable fin et doré. Bars, cafés, boutiques et autres commodités sont également facilement accessibles.
Contactez-nous dès aujourd'hui pour organiser une visite de cette maison bien présentée, idéalement située en bord de mer.
Pourquoi choisir Solmar Estates ?
Nous sommes fiers d'être membres de l'API (Agente de la Propiedad Inmobiliaria), une association présente dans l'immobilier espagnol depuis de nombreuses années. L'adhésion à l'API est un engagement des agents immobiliers qui implique des obligations en matière de formation, d'expérience et de respect d'un code de déontologie rigoureux. Notre adhésion à l'API offre à nos acheteurs et vendeurs des garanties maximales quant à notre professionnalisme et nos qualifications. Numéro d'enregistrement API : 00280.
Pour plus d'informations, cliquez sur le lien ci-dessous.
Économisez 1 000 sur votre achat immobilier espagnol en utilisant l’un de nos partenaires de change préférés
Besoin de financement pour vous aider à acheter une propriété espagnole de rêve? Nous travaillons avec Mortgage Direct, le courtier hypothécaire numéro 1 en Espagne
En plus du prix d’achat, vous devez prévoir 10% de taxe sur les transferts, ainsi que 3 500 euros supplémentaires pour couvrir les taxes de notaire, les honoraires et les frais légaux, y compris votre demande NIE
Si vous souhaitez acheter avec une hypothèque espagnole, vous devrez prévoir 3 500 euros supplémentaires, en plus des montants indiqués ci-dessus, afin de couvrir les frais de courtier, la commission hypothécaire, l'évaluation et les frais d'agence et les assurances. Le montant maximum de l'hypothèque disponible pour les non-résidents est de 70% du prix d'achat
Inscrivez-vous MAINTENANT aux dernières mises à jour de devises et offres d'hypothèque, car nous pouvons réellement vous faire économiser 1 000 et 1 000 sur votre achat d'une propriété en Espagne
Les informations données ci-dessus sont sujettes à modification et ne font pas partie intégrante d’un contrat
C.C. Playa Flamenca Unit 129,
Calle Niagara, 62,
03189 Playa Flamenca,
Alicante, Spain
© 2026 Solmar Estates · Mentions légales · Intimité · Thermes et conditions d'application · Cookies · Plan du site · Conception: Mediaelx
Tout d’abord, merci de nous contacter.
Nous avons reçu votre demande concernant la référence du bien:R-91912. Un de nos agents vous contactera dans les meilleurs délais.
Tout d’abord, merci de nous contacter.
Nous avons reçu une demande de rapport si vous abaissez le prix de la propriété avec la référence: R-91912
En attendant, jetez un œil à cette sélection de propriétés similaires qui pourraient vous intéresser:
