+34 966 116 650 +34 678 933 450 info@solmarestates.com
C.C. Playa Flamenca Unit 129, Calle Niagara, 62, 03189 Playa Flamenca, Alicante, Spain

Appartement · Nouvelle construction Murcia · San Javier · pueblo

Réf.: N-92120
74m2
20m2
3
2
Oui

Les caractéristiques

Chambres: 3
Salles de bain: 2
Construit: 74m2
Intrigue: 20m2
Énergie: B
Communal Pool
BBQ
Gated
Number of Parking Spaces: 1
Near Trees
Near Schools
Near Commercial Center
Near Bus Route
Location: Coastal, Urbanisation
Double Bedrooms: 2
Air Conditioning: Pre-Installed
Solarium: Yes
Useable Build Space: 70 Msq.
Beach: 3500 Meters
Parking - Space
Terrace: 87 Msq.
Énergie
Énergie:
B

La description

Appartements et penthouses modernes avec solarium à San Javier, près de Mar Menor

Emplacement privilégié à San Javier, près de la plage
Ce nouveau complexe résidentiel de 16 logements modernes est situé dans la ville animée de San Javier, dans la région de Murcie, à seulement 3,5 km des eaux calmes de la Mar Menor. La région est réputée pour son ensoleillement tout au long de l'année, son style de vie côtier décontracté et ses excellents services. À quelques minutes à pied, vous trouverez des supermarchés, des restaurants, des installations sportives et toutes les commodités quotidiennes, ce qui en fait un endroit idéal pour vivre à l'année ou passer des vacances. La côte méditerranéenne n'est qu'à 10 minutes en voiture et offre une grande variété de plages et de promenades en bord de mer.

Choix entre des appartements au rez-de-chaussée avec jardin ou des appartements au dernier étage avec solarium privé
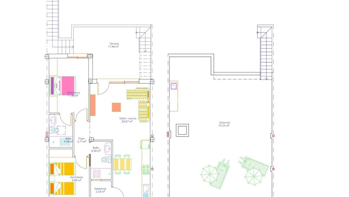
Les acheteurs peuvent choisir entre des appartements au rez-de-chaussée avec 3 chambres et 2 salles de bains, dont une en suite, avec une terrasse à l'avant et un jardin privé à l'arrière avec cuisine d'été. Les appartements au dernier étage offrent quant à eux 2 chambres et 2 salles de bains, dont une en suite, une terrasse à l'avant et un grand solarium privé avec cuisine d'été, parfait pour profiter du soleil toute l'année. Chaque agencement a été soigneusement conçu pour maximiser la vie en plein air et la lumière naturelle.

Espaces communs attrayants pour la détente
Le complexe résidentiel comprend un espace commun magnifiquement aménagé avec une piscine avec jacuzzi, un parking à vélos et des jardins verdoyants où les résidents peuvent se détendre et se retrouver dans un environnement paisible.

Des caractéristiques de qualité conçues pour un confort moderne
Chaque propriété est construite selon des normes élevées de confort et d'efficacité énergétique. Les menuiseries extérieures en PVC anthracite avec rupture de pont thermique et double vitrage offrent une excellente isolation et une protection solaire. Les cuisines sont entièrement équipées d'appareils électroménagers. Les maisons comprennent une préinstallation pour la climatisation canalisée et un système aérothermique pour l'eau chaude, garantissant une consommation d'énergie réduite. Les salles de bains sont livrées avec un meuble-lavabo, un miroir et une paroi de douche. Chaque propriété comprend également une place de parking attribuée.

Excellente connectivité et points d'intérêt à proximité
San Javier offre d'excellentes connexions routières et un accès facile aux principales destinations de la région.
Plages de Mar Menor 3,5 km
Plages méditerranéennes 10 km
Roda Golf et Mar Menor Golf à 8 km
Port de plaisance de Los Alcazares à 7 km
Aéroport de Murcie Corvera à 30 km
Aéroport d'Alicante à 75 km
Centre commercial Zenia Boulevard à 30 km

Profitez du style de vie méditerranéen à San Javier
Ce programme immobilier offre la combinaison parfaite entre emplacement, confort et vie en plein air à proximité de la mer et des terrains de golf. Contactez-nous dès aujourd'hui pour obtenir plus d'informations ou pour organiser une visite de votre future maison à San Javier.

Emplacement

Les meilleures offres de change et d'hypothèque

Économisez 1 000 sur votre achat immobilier espagnol en utilisant l’un de nos partenaires de change préférés

Besoin de financement pour vous aider à acheter une propriété espagnole de rêve? Nous travaillons avec Mortgage Direct, le courtier hypothécaire numéro 1 en Espagne

Calculer les hypothèques

Échange de devises

  • Livres sterling: 236.885 GBP
  • Rouble russe: 236.885 RUB
  • Franc suisse: 251.041 CHF
  • Yuan chinois: 2.185.028 CNY
  • Dollar: 319.620 USD
  • Couronne suédoise: 2.952.778 SEK
  • La couronne norvégienne: 2.988.937 NOK

Coûts d'achat

En plus du prix d’achat, vous devez prévoir 10% de taxe sur les transferts, ainsi que 3 500 euros supplémentaires pour couvrir les taxes de notaire, les honoraires et les frais légaux, y compris votre demande NIE

Si vous souhaitez acheter avec une hypothèque espagnole, vous devrez prévoir 3 500 euros supplémentaires, en plus des montants indiqués ci-dessus, afin de couvrir les frais de courtier, la commission hypothécaire, l'évaluation et les frais d'agence et les assurances. Le montant maximum de l'hypothèque disponible pour les non-résidents est de 70% du prix d'achat

Inscrivez-vous MAINTENANT aux dernières mises à jour de devises et offres d'hypothèque, car nous pouvons réellement vous faire économiser 1 000 et 1 000 sur votre achat d'une propriété en Espagne

Les informations données ci-dessus sont sujettes à modification et ne font pas partie intégrante d’un contrat

Demander des informations

Responsable del tratamiento: Solmar Estates, Finalidad del tratamiento: Gestión y control de los servicios ofrecidos a través de la página Web de Servicios inmobiliarios, Envío de información a traves de newsletter y otros, Legitimación: Por consentimiento, Destinatarios: No se cederan los datos, salvo para elaborar contabilidad, Derechos de las personas interesadas: Acceder, rectificar y suprimir los datos, solicitar la portabilidad de los mismos, oponerse altratamiento y solicitar la limitación de éste, Procedencia de los datos: El Propio interesado, Información Adicional: Puede consultarse la información adicional y detallada sobre protección de datos Aquí.

© 2026 Solmar Estates · Mentions légales · Intimité · Thermes et conditions d'application · Cookies · Plan du site · Conception: Mediaelx

Contact WhatsApp