
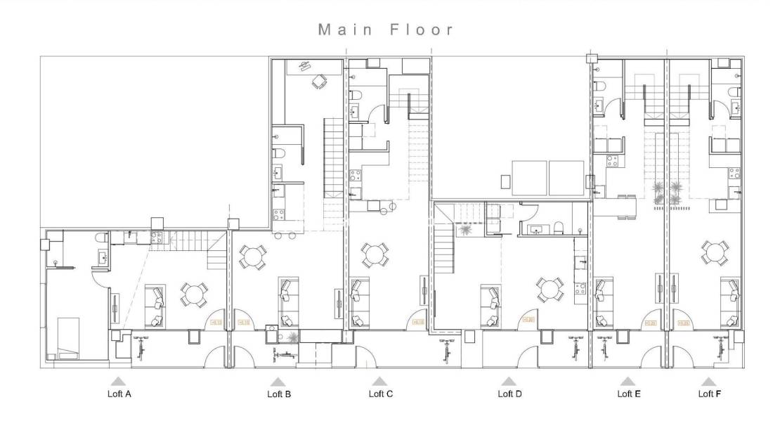
Appartements loft duplex modernes au cœur d'Alicante Nouveau programme immobilier exclusif dans le quartier de Benalúa Découvrez une opportunité exceptionnelle d'acquérir un élégant appartement loft duplex à Benalúa, l'un des quartiers les plus animés et les mieux desservis d'Alicante. Ce projet unique transforme six locaux commerciaux inutilisés en lofts résidentiels contemporains, offrant un style de vie urbain moderne à seulement 1 km de la côte méditerranéenne. Benalúa est connu pour ses commerces de proximité, ses cafés, ses activités culturelles et sa proximité avec le centre-ville, ce qui en fait un quartier très prisé tant par les résidents que par les investisseurs. Design contemporain de style loft Chaque logement a été entièrement repensé pour offrir un espace de vie frais, ouvert et élégant. La promotion comprend des lofts en duplex de 1 et 2 chambres avec 2 salles de bains, tous dotés d'impressionnants espaces à double hauteur qui améliorent la lumière naturelle et offrent une véritable ambiance loft. L'étage supérieur abrite une chambre et une salle de bains complète, créant ainsi intimité et confort. Avec un accès indépendant depuis la rue et une terrasse privée, chaque appartement allie architecture moderne et fonctionnalité. Des finitions de haute qualité, des agencements contemporains et des intérieurs lumineux font de ces lofts un choix idéal pour ceux qui recherchent style et fonctionnalité. Confort et équipements collectifs Les résidents auront accès à une piscine commune située dans l'immeuble, offrant une atmosphère relaxante et rafraîchissante pour les chaudes journées méditerranéennes. Les terrasses privées et les entrées indépendantes ajoutent une touche supplémentaire de commodité et d'exclusivité. Emplacement privilégié à proximité des principaux points d'intérêt Idéalement situé pour y vivre ou investir, le complexe est entouré de services essentiels et d'attractions majeures : Front de mer d'Alicante : 1 km Gare Renfe : 0,8 km Centre commercial El Corte Inglés : 0,7 km Palais de justice d'Alicante : 0,5 km Aéroport d'Alicante : 12 km Marina et port d'Alicante : 2 km Parcours de golf (Alicante Golf) : 7 km La région offre d'excellentes liaisons de transport public, des lieux culturels, des espaces verts et un accès facile aux belles plages de la ville. Un investissement intelligent dans le style de vie côtier d'Alicante Que vous recherchiez une résidence principale, une propriété de vacances ou un investissement à fort potentiel locatif, ces appartements loft en duplex à Benalúa représentent une opportunité unique dans l'un des quartiers les plus prometteurs d'Alicante. Contactez-nous dès aujourd'hui pour réserver votre loft exclusif et profiter d'un mode de vie moderne au cœur d'Alicante.
Économisez 1 000 sur votre achat immobilier espagnol en utilisant l’un de nos partenaires de change préférés
Besoin de financement pour vous aider à acheter une propriété espagnole de rêve? Nous travaillons avec Mortgage Direct, le courtier hypothécaire numéro 1 en Espagne
En plus du prix d’achat, vous devez prévoir 10% de taxe sur les transferts, ainsi que 3 500 euros supplémentaires pour couvrir les taxes de notaire, les honoraires et les frais légaux, y compris votre demande NIE
Si vous souhaitez acheter avec une hypothèque espagnole, vous devrez prévoir 3 500 euros supplémentaires, en plus des montants indiqués ci-dessus, afin de couvrir les frais de courtier, la commission hypothécaire, l'évaluation et les frais d'agence et les assurances. Le montant maximum de l'hypothèque disponible pour les non-résidents est de 70% du prix d'achat
Inscrivez-vous MAINTENANT aux dernières mises à jour de devises et offres d'hypothèque, car nous pouvons réellement vous faire économiser 1 000 et 1 000 sur votre achat d'une propriété en Espagne
Les informations données ci-dessus sont sujettes à modification et ne font pas partie intégrante d’un contrat