+34 966 116 650 +34 678 933 450 info@solmarestates.com
C.C. Playa Flamenca Unit 129, Calle Niagara, 62, 03189 Playa Flamenca, Alicante, Spain

Appartement · Nouvelle construction Costa Blanca South · Torrevieja · Centro

Réf.: N-39809
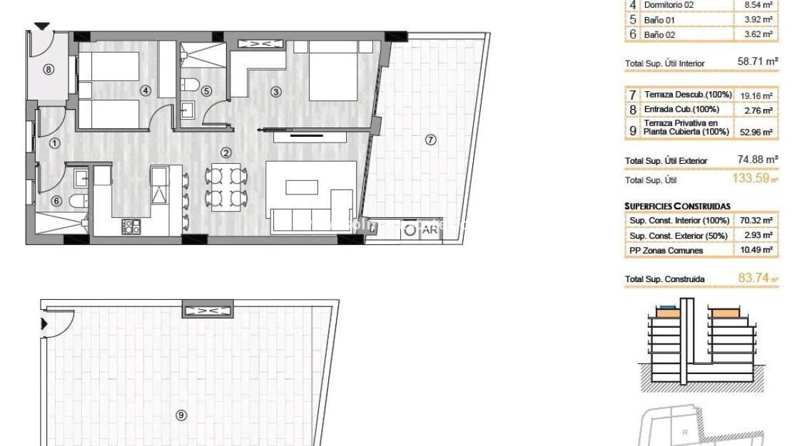
79m2
2
2
Oui

Les caractéristiques

Chambres: 2
Salles de bain: 2
Construit: 79m2
Énergie: B
Communal Pool
Elevator/Lift
Gated
Near Schools
Near Commercial Center
Near Bus Route
Gym
Double Bedrooms: 2
Air Conditioning: Pre-Installed
Location: Coastal
Beach: 400 Meters
Near Childrens Parks
Parking - Space
Useable Build Space: 83 Msq.
Terrace: 72 Msq.
Solarium: 53 Msq.
Énergie
Énergie:
B

La description

Appartements neufs au cœur de Torrevieja À seulement 400 m de Playa del Cura Emplacement privilégié dans le centre de Torrevieja Ce nouvel immeuble résidentiel bénéficie d'un emplacement imbattable dans le centre de Torrevieja, à seulement 400 m de Playa del Cura. Entouré de magasins, supermarchés, restaurants et services quotidiens, il offre tout ce dont vous avez besoin à quelques pas. Le quartier donne également accès à des parcs, des zones de loisirs et des espaces verts, créant un équilibre parfait entre commodités urbaines et moments de détente. Maisons modernes de 2 et 3 chambres Le complexe propose une sélection d'appartements de 2 et 3 chambres, y compris des penthouses, certains avec solariums privés. Chaque maison est conçue dans un style contemporain, avec des plans d'étage ouverts, de grandes terrasses et des cuisines intégrées de style américain. Les salles de bains sont entièrement équipées avec des meubles, des parois de douche et le chauffage au sol. Les cuisines comprennent des appareils électroménagers et chaque appartement est pré-équipé pour la climatisation centralisée. Un parking souterrain et des débarras sont disponibles en option. Des installations de style resort pour votre bien-être Les résidents peuvent profiter d'une gamme d'équipements exclusifs. Le rez-de-chaussée dispose d'une salle de sport entièrement équipée, idéale pour les entraînements quotidiens. Le solarium sur le toit offre une véritable oasis de détente avec des chaises longues, un sauna finlandais et une mini-piscine. L'ascenseur et les escaliers relient directement le toit pour un maximum de commodité et d'accessibilité. Vivre dans un environnement naturel et côtier unique Torrevieja est connue pour son climat méditerranéen chaud, avec une température moyenne annuelle de 20 °C, ce qui en fait un endroit parfait pour vivre toute l'année. La ville est célèbre pour ses lagunes salées naturelles et le parc naturel protégé de La Mata et Torrevieja, situé à seulement 4 km du complexe. Ses lacs roses et verts, ses sentiers de randonnée pittoresques et sa riche biodiversité offrent un mode de vie sain et inspirant. Distances par rapport aux principaux points d'intérêt Playa del Cura 0,4 km Port de Torrevieja 1 km Parc naturel de La Mata 4 km Golf de Villamartin 8 km Aéroport d'Alicante 45 km Aéroport de Murcie 60 km Découvrez le mode de vie méditerranéen Ne manquez pas l'occasion d'acquérir une maison moderne dans l'une des villes côtières les plus prisées de la Costa Blanca. Contactez-nous dès aujourd'hui pour organiser une visite et réserver votre place dans ce nouveau complexe exceptionnel.

Emplacement

Les meilleures offres de change et d'hypothèque

Économisez 1 000 sur votre achat immobilier espagnol en utilisant l’un de nos partenaires de change préférés

Besoin de financement pour vous aider à acheter une propriété espagnole de rêve? Nous travaillons avec Mortgage Direct, le courtier hypothécaire numéro 1 en Espagne

Calculer les hypothèques

Échange de devises

  • Livres sterling: 302.942 GBP
  • Rouble russe: 302.942 RUB
  • Franc suisse: 321.045 CHF
  • Yuan chinois: 2.794.338 CNY
  • Dollar: 408.749 USD
  • Couronne suédoise: 3.776.180 SEK
  • La couronne norvégienne: 3.822.423 NOK

Coûts d'achat

En plus du prix d’achat, vous devez prévoir 10% de taxe sur les transferts, ainsi que 3 500 euros supplémentaires pour couvrir les taxes de notaire, les honoraires et les frais légaux, y compris votre demande NIE

Si vous souhaitez acheter avec une hypothèque espagnole, vous devrez prévoir 3 500 euros supplémentaires, en plus des montants indiqués ci-dessus, afin de couvrir les frais de courtier, la commission hypothécaire, l'évaluation et les frais d'agence et les assurances. Le montant maximum de l'hypothèque disponible pour les non-résidents est de 70% du prix d'achat

Inscrivez-vous MAINTENANT aux dernières mises à jour de devises et offres d'hypothèque, car nous pouvons réellement vous faire économiser 1 000 et 1 000 sur votre achat d'une propriété en Espagne

Les informations données ci-dessus sont sujettes à modification et ne font pas partie intégrante d’un contrat

Demander des informations

Responsable del tratamiento: Solmar Estates, Finalidad del tratamiento: Gestión y control de los servicios ofrecidos a través de la página Web de Servicios inmobiliarios, Envío de información a traves de newsletter y otros, Legitimación: Por consentimiento, Destinatarios: No se cederan los datos, salvo para elaborar contabilidad, Derechos de las personas interesadas: Acceder, rectificar y suprimir los datos, solicitar la portabilidad de los mismos, oponerse altratamiento y solicitar la limitación de éste, Procedencia de los datos: El Propio interesado, Información Adicional: Puede consultarse la información adicional y detallada sobre protección de datos Aquí.

© 2026 Solmar Estates · Mentions légales · Intimité · Thermes et conditions d'application · Cookies · Plan du site · Conception: Mediaelx

Contact WhatsApp