
Situé au cœur de Playa Flamenca, à quelques pas du centre commercial Zenia Boulevard, des plages, des installations sportives, des zones de loisirs et des écoles, ce triplex mitoyen lumineux exposé plein sud offre une combinaison parfaite de confort et de commodité.
Cette propriété fait partie d'une résidence sécurisée avec portail automatique, de nombreuses places de stationnement dans la rue et une piscine commune centrale, garantissant intimité et tranquillité. Son orientation plein sud lui assure un ensoleillement optimal tout au long de la journée. Un solarium à l'arrière offre un espace extérieur ombragé durant les mois les plus chauds de l'été, tandis qu'une terrasse à l'avant permet de profiter du soleil en toute saison.
Le rez-de-chaussée comprend un séjour-salle à manger avec cheminée et une cuisine séparée donnant directement sur une terrasse couverte avec toit en aluminium et verre. Cet espace polyvalent peut servir de second salon, de buanderie ou de chambre supplémentaire, et comprend une salle de bains avec douche.
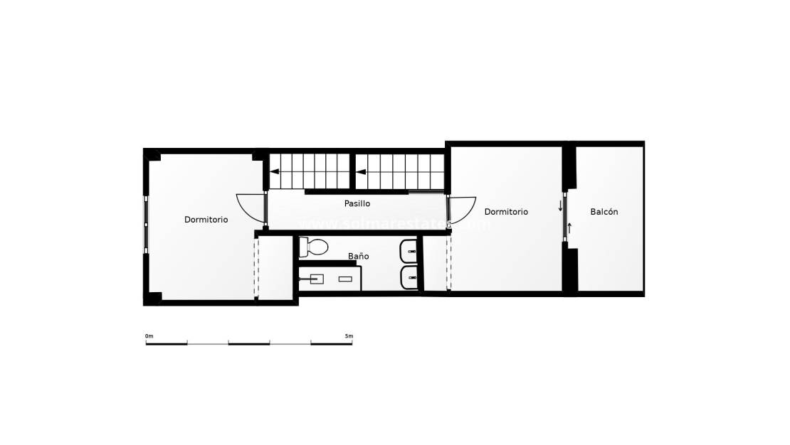
Le premier étage comprend deux chambres avec placards intégrés, dont une avec balcon, et une salle de bains complète avec douche à l'italienne. Le dernier étage abrite une troisième chambre mansardée avec salle de bains privative et accès à une terrasse-solarium privée, idéale pour des enfants ou des adolescents.
Cette maison entièrement meublée et équipée (électroménager inclus) est en excellent état et prête à être habitée immédiatement. Idéale comme résidence secondaire ou principale, cette propriété est à visiter absolument.
Pourquoi choisir Solmar Estates ?
Notre entreprise familiale repose sur des valeurs fondamentales telles que l'honnêteté, l'intégrité et un service client irréprochable. Nous mettons un point d'honneur à comprendre les besoins de nos clients et nous nous efforçons de rendre votre visite agréable, détendue et sans pression.
Pour en savoir plus, cliquez sur le lien.
https://solmarestates.com/about-us/
Économisez 1 000 sur votre achat immobilier espagnol en utilisant l’un de nos partenaires de change préférés
Besoin de financement pour vous aider à acheter une propriété espagnole de rêve? Nous travaillons avec Mortgage Direct, le courtier hypothécaire numéro 1 en Espagne
En plus du prix d’achat, vous devez prévoir 10% de taxe sur les transferts, ainsi que 3 500 euros supplémentaires pour couvrir les taxes de notaire, les honoraires et les frais légaux, y compris votre demande NIE
Si vous souhaitez acheter avec une hypothèque espagnole, vous devrez prévoir 3 500 euros supplémentaires, en plus des montants indiqués ci-dessus, afin de couvrir les frais de courtier, la commission hypothécaire, l'évaluation et les frais d'agence et les assurances. Le montant maximum de l'hypothèque disponible pour les non-résidents est de 70% du prix d'achat
Inscrivez-vous MAINTENANT aux dernières mises à jour de devises et offres d'hypothèque, car nous pouvons réellement vous faire économiser 1 000 et 1 000 sur votre achat d'une propriété en Espagne
Les informations données ci-dessus sont sujettes à modification et ne font pas partie intégrante d’un contrat