+34 966 116 650 +34 678 933 450 info@solmarestates.com
C.C. Playa Flamenca Unit 129, Calle Niagara, 62, 03189 Playa Flamenca, Alicante, Spain

Villa individuelle · Nouvelle construction Costa Blanca South · La Romana · Batistes

Réf.: N-24691
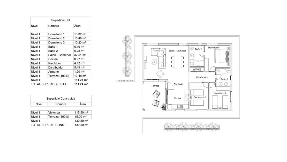
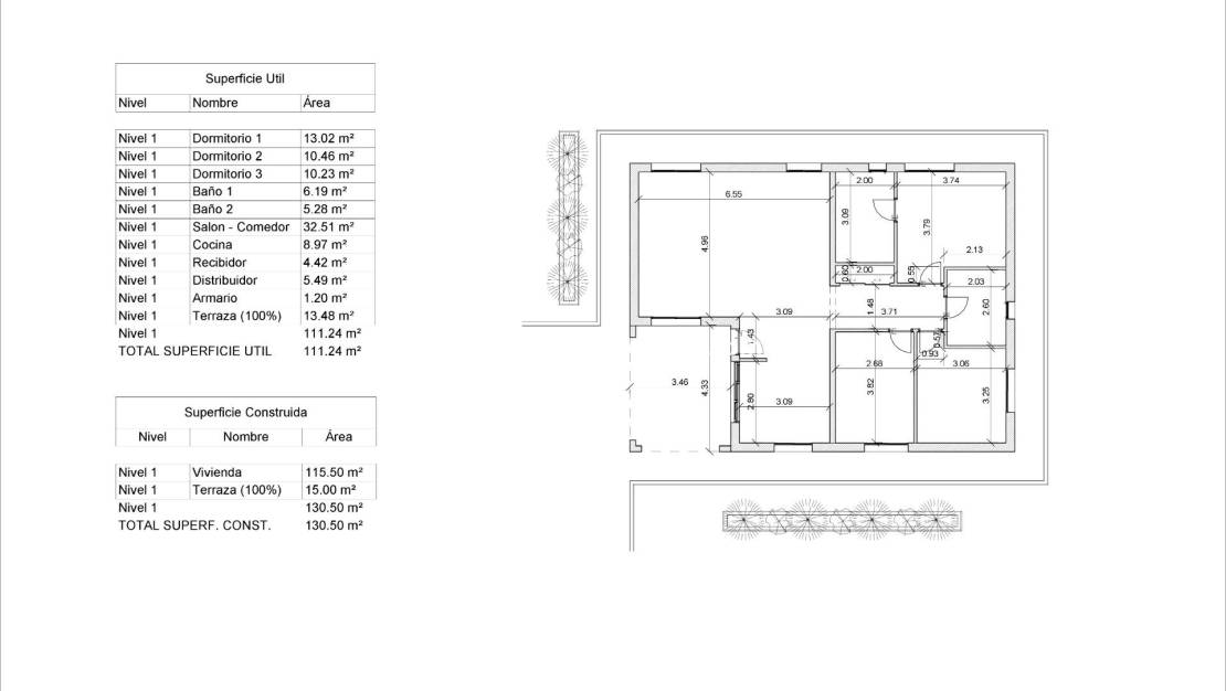
130m2
10.227m2
3
2
Oui

Les caractéristiques

Chambres: 3
Salles de bain: 2
Construit: 130m2
Intrigue: 10.227m2
Énergie: B
Private Pool
Garden
Gated
Number of Parking Spaces: 1
Near Schools
Air Conditioning: Pre-Installed
Double Bedrooms: 3
Useable Build Space: 110 Msq.
Terrace: 15 Msq.
Location: Mountain
Parking - Space
Beach: 40000 Meters
Énergie
Énergie:
B

La description

Villas neuves situées à La Romana. Villas neuves avec plusieurs modèles au choix, comprenant 2 ou 3 chambres, sur un ou deux étages et construites avec dalle ou structure : le prix exact sera calculé en fonction du modèle et du terrain choisi. Toutes les villas sont construites sur des terrains rustiques de plus de 10 000 m², dont 2 500 m² seront clôturés. Les villas disposent d'une cuisine américaine avec salon, placards intégrés, piscine privée, porche et place de parking extérieure. Plusieurs terrains sont disponibles, le prix a été calculé sur la base d'un terrain de 62 000 euros (si vous choisissez un autre terrain, la différence sera payée ou remboursée en fonction du prix de celui-ci). Réalisé en autopromotion, livraison dans un délai de 12 mois à compter de l'octroi du permis. Si vous recherchez un environnement calme, à proximité de villages espagnols typiques, loin du tourisme de masse, entouré de montagnes, avec un très grand terrain et à environ 30 minutes de la mer, cette maison est faite pour vous. La Romana est un village espagnol typique avec tous les services nécessaires à la vie quotidienne, entouré de montagnes et de plusieurs sites naturels à proximité où vous pourrez faire des randonnées ou du VTT. Situé à 30 minutes de l'aéroport d'Alicante.

Emplacement

Les meilleures offres de change et d'hypothèque

Économisez 1 000 sur votre achat immobilier espagnol en utilisant l’un de nos partenaires de change préférés

Besoin de financement pour vous aider à acheter une propriété espagnole de rêve? Nous travaillons avec Mortgage Direct, le courtier hypothécaire numéro 1 en Espagne

Calculer les hypothèques

Échange de devises

  • Livres sterling: 328.115 GBP
  • Rouble russe: 328.115 RUB
  • Franc suisse: 347.722 CHF
  • Yuan chinois: 3.026.533 CNY
  • Dollar: 442.714 USD
  • Couronne suédoise: 4.089.960 SEK
  • La couronne norvégienne: 4.140.045 NOK

Coûts d'achat

En plus du prix d’achat, vous devez prévoir 10% de taxe sur les transferts, ainsi que 3 500 euros supplémentaires pour couvrir les taxes de notaire, les honoraires et les frais légaux, y compris votre demande NIE

Si vous souhaitez acheter avec une hypothèque espagnole, vous devrez prévoir 3 500 euros supplémentaires, en plus des montants indiqués ci-dessus, afin de couvrir les frais de courtier, la commission hypothécaire, l'évaluation et les frais d'agence et les assurances. Le montant maximum de l'hypothèque disponible pour les non-résidents est de 70% du prix d'achat

Inscrivez-vous MAINTENANT aux dernières mises à jour de devises et offres d'hypothèque, car nous pouvons réellement vous faire économiser 1 000 et 1 000 sur votre achat d'une propriété en Espagne

Les informations données ci-dessus sont sujettes à modification et ne font pas partie intégrante d’un contrat

Demander des informations

Responsable del tratamiento: Solmar Estates, Finalidad del tratamiento: Gestión y control de los servicios ofrecidos a través de la página Web de Servicios inmobiliarios, Envío de información a traves de newsletter y otros, Legitimación: Por consentimiento, Destinatarios: No se cederan los datos, salvo para elaborar contabilidad, Derechos de las personas interesadas: Acceder, rectificar y suprimir los datos, solicitar la portabilidad de los mismos, oponerse altratamiento y solicitar la limitación de éste, Procedencia de los datos: El Propio interesado, Información Adicional: Puede consultarse la información adicional y detallada sobre protección de datos Aquí.

© 2026 Solmar Estates · Mentions légales · Intimité · Thermes et conditions d'application · Cookies · Plan du site · Conception: Mediaelx

Contact WhatsApp