
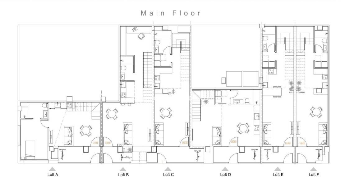
Modernos apartamentos dúplex tipo loft en el corazón de Alicante Exclusiva promoción nueva en el barrio de Benalúa Descubra una oportunidad excepcional para adquirir un elegante apartamento dúplex tipo loft en Benalúa, uno de los barrios más animados y bien comunicados de Alicante. Este proyecto único transforma seis locales comerciales en desuso en modernos lofts residenciales, ofreciendo un estilo de vida urbano a solo 1 km de la costa mediterránea. Benalúa es conocido por sus tiendas locales, cafeterías, actividad cultural y su proximidad al centro de la ciudad, lo que lo convierte en una zona muy codiciada tanto por residentes como por inversores. Diseño contemporáneo estilo loft Cada vivienda ha sido completamente rediseñada para ofrecer un espacio fresco, abierto y elegante. La promoción incluye lofts dúplex de 1 y 2 dormitorios con 2 baños, todos ellos con impresionantes zonas de doble altura que potencian la luz natural y proporcionan un auténtico ambiente loft. La planta superior alberga un dormitorio y un baño completo, lo que crea privacidad y comodidad. Con acceso independiente desde la calle y terraza privada, cada apartamento combina la arquitectura moderna con la funcionalidad. Los acabados de alta calidad, las distribuciones contemporáneas y los interiores luminosos hacen de estos lofts una opción destacada para aquellos que buscan estilo y funcionalidad. Comodidad y servicios comunitarios Los residentes disfrutarán de acceso a una piscina comunitaria situada dentro del edificio, que proporciona un ambiente relajante y refrescante para los cálidos días mediterráneos. Las terrazas privadas y las entradas independientes añaden un plus de comodidad y exclusividad. Ubicación privilegiada cerca de los principales puntos de interés Con una ubicación perfecta tanto para vivir como para invertir, la promoción está rodeada de servicios esenciales y principales atracciones: Paseo marítimo de Alicante: 1 km Estación de tren de Renfe: 0,8 km Centro comercial El Corte Inglés: 0,7 km Palacio de Justicia de Alicante: 0,5 km Aeropuerto de Alicante: 12 km Puerto deportivo y puerto de Alicante: 2 km Campos de golf (Alicante Golf): 7 km La zona ofrece excelentes conexiones de transporte público, lugares culturales, zonas verdes y fácil acceso a las hermosas playas de la ciudad. Una inversión inteligente en el estilo de vida costero de Alicante Tanto si busca una vivienda habitual, una propiedad vacacional o una inversión con un gran potencial de alquiler, estos apartamentos dúplex tipo loft en Benalúa representan una oportunidad única en una de las zonas más prometedoras de Alicante. Póngase en contacto con nosotros hoy mismo para reservar su loft exclusivo y disfrutar de una vida moderna en el corazón de Alicante.
Ahorre 1,000 en su compra de propiedad en España con uno de nuestros socios de cambio de moneda preferidos
¿Necesita financiación para comprar la propiedad española de sus sueños? Trabajamos con Mortgage Direct, el corredor hipotecario internacional número 1 en España
Además del precio de compra, debe permitir el 10% del impuesto de transferencia de compra y otros 3.500 euros para cubrir los impuestos y cargos notariales y los cargos legales / de abogado, incluida su solicitud NIE
Si va a comprar con una hipoteca española, deberá permitir 3.500 euros adicionales además de los montos anteriores para cubrir los honorarios de los agentes hipotecarios, las comisiones hipotecarias bancarias, las tasas y arreglos bancarios y los seguros. La hipoteca máxima disponible para no residentes es el 70% del precio de compra
Regístrese AHORA para obtener las últimas actualizaciones de divisas y ofertas de hipotecas, ya que realmente podemos ahorrarle 1,000 y 1,000 en su compra de propiedades en España
La información proporcionada anteriormente está sujeta a cambios y no forma parte de ningún contrato