+34 966 116 650 +34 678 933 450 info@solmarestates.com
C.C. Playa Flamenca Unit 129, Calle Niagara, 62, 03189 Playa Flamenca, Alicante, Spain

Apartamento · Nueva construcción Almeria · Vera · Vera Playa

Ref.: N-12392
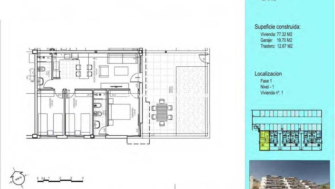
77m2
3
2

Características

Habitaciones: 3
Baños: 2
Construidos: 77m2
Calificación energética: B
Communal Pool
Furnished
Elevator/Lift
Gated
Number of Parking Spaces: 1
Views: Sea
Near Schools
Near Commercial Center
Location: Coastal, Urbanisation
Double Bedrooms: 3
Useable Build Space: 70 Msq.
Terrace: 42 Msq.
Parking - Space
Beach: 700 Meters
Storage / Trastero
Calificación energética
Calificación energética:
B

Descripción

Apartamentos de nueva construcción con vistas al mar en Vera Playa, Almería Descubra esta excepcional promoción residencial en Vera Playa, que ofrece 27 modernos apartamentos en su primera fase. Diseñado para combinar comodidad, funcionalidad y espectaculares vistas al mar Mediterráneo, este proyecto es ideal para quienes buscan una vivienda en la Costa de Almería con estilo y comodidad. Viviendas modernas con vistas al mar Cada apartamento ha sido cuidadosamente diseñado para maximizar la luz natural y la vida al aire libre. Las opciones incluyen distribuciones de 1, 2 y 3 dormitorios, con plantas bajas con jardines privados, plantas intermedias con amplias terrazas y áticos con soláriums privados. Gracias al diseño en terrazas, todas las viviendas disfrutan de terrazas descubiertas con impresionantes vistas al mar. Acabados de calidad y viviendas totalmente equipadas Todas las propiedades están completamente amuebladas y equipadas, listas para entrar a vivir. Las características incluyen: Cocina amueblada con electrodomésticos incluidos Baños completos con accesorios modernos Sistema de aire acondicionado por conductos Plaza de aparcamiento privada y trastero Instalaciones comunitarias exclusivas Lo más destacado de este complejo residencial es su piscina comunitaria, rodeada de jardines paisajísticos, que crea el espacio perfecto para relajarse, tomar el sol y disfrutar en familia. Ubicación privilegiada en Vera Playa Vera Playa es conocida por sus largas playas de arena, su estilo de vida relajado y sus excelentes servicios. La urbanización se encuentra en una zona tranquila pero bien comunicada, con fácil acceso a los servicios y al transporte. Distancias clave: Playa: 700 m Desert Springs Golf Resort: 8 km Centro de Vera: 5 km Puerto deportivo y restaurantes de Garrucha: 6 km Parque comercial de Mojácar: 10 km Aeropuerto de Almería: 85 km (aprox. 1 hora) Estación de tren de alta velocidad AVE (en construcción): 3 km Una vivienda ideal o una oportunidad de inversión Tanto si busca una residencia permanente, un refugio para las vacaciones o una inversión segura, estos apartamentos de nueva construcción en Vera Playa ofrecen una excelente relación calidad-precio en uno de los destinos costeros más deseados de Almería. Haga de Vera Playa su nuevo hogar y disfrute de la combinación perfecta entre la vida moderna, las vistas al mar y el estilo de vida mediterráneo. Póngase en contacto con nosotros hoy mismo para concertar una visita y asegurarse la propiedad de sus sueños en la Costa de Almería.

Localización

Las mejores ofertas de cambio de divisas e hipotecas

Ahorre 1,000 en su compra de propiedad en España con uno de nuestros socios de cambio de moneda preferidos

¿Necesita financiación para comprar la propiedad española de sus sueños? Trabajamos con Mortgage Direct, el corredor hipotecario internacional número 1 en España

Calcular hipoteca

Cambio de divisas

  • Libras: 237.884 GBP
  • Rublo Ruso: 237.884 RUB
  • Franco Suizo: 252.099 CHF
  • Yuan Chino: 2.194.236 CNY
  • Dolar: 320.967 USD
  • Corona Sueca: 2.965.221 SEK
  • Corona Noruega: 3.001.533 NOK

Costos de compra

Además del precio de compra, debe permitir el 10% del impuesto de transferencia de compra y otros 3.500 euros para cubrir los impuestos y cargos notariales y los cargos legales / de abogado, incluida su solicitud NIE

Si va a comprar con una hipoteca española, deberá permitir 3.500 euros adicionales además de los montos anteriores para cubrir los honorarios de los agentes hipotecarios, las comisiones hipotecarias bancarias, las tasas y arreglos bancarios y los seguros. La hipoteca máxima disponible para no residentes es el 70% del precio de compra

Regístrese AHORA para obtener las últimas actualizaciones de divisas y ofertas de hipotecas, ya que realmente podemos ahorrarle 1,000 y 1,000 en su compra de propiedades en España

La información proporcionada anteriormente está sujeta a cambios y no forma parte de ningún contrato

Solicitar información

Responsable del tratamiento: Solmar Estates, Finalidad del tratamiento: Gestión y control de los servicios ofrecidos a través de la página Web de Servicios inmobiliarios, Envío de información a traves de newsletter y otros, Legitimación: Por consentimiento, Destinatarios: No se cederan los datos, salvo para elaborar contabilidad, Derechos de las personas interesadas: Acceder, rectificar y suprimir los datos, solicitar la portabilidad de los mismos, oponerse altratamiento y solicitar la limitación de éste, Procedencia de los datos: El Propio interesado, Información Adicional: Puede consultarse la información adicional y detallada sobre protección de datos Aquí.

© 2026 Solmar Estates · Nota legal · Privacidad · Términos y condiciones de aplicación · Cookies · Mapa Web · Diseño: Mediaelx

Contactar WhatsApp