+34 966 116 650 +34 678 933 450 info@solmarestates.com
C.C. Playa Flamenca Unit 129, Calle Niagara, 62, 03189 Playa Flamenca, Alicante, Spain

Villa independiente · Nueva construcción Costa Blanca South · La Romana · Batistes

Ref.: N-24691
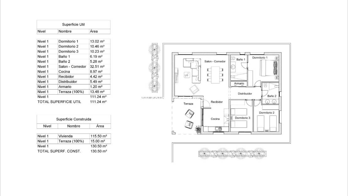
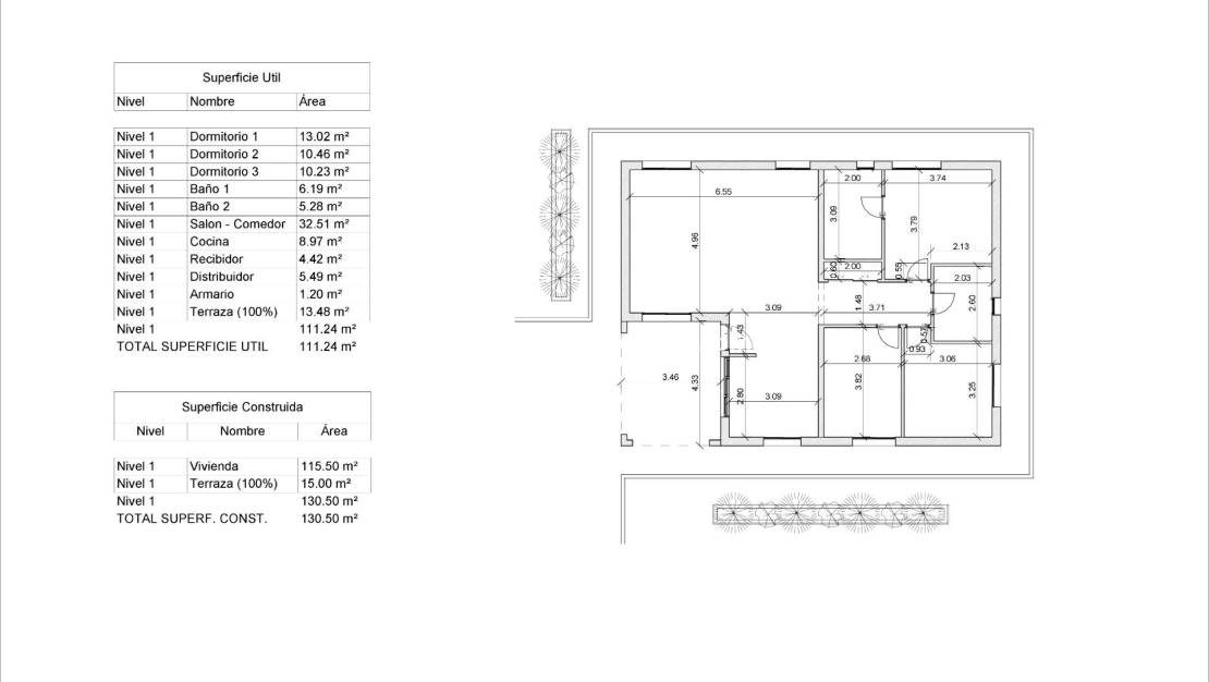
130m2
10.227m2
3
2

Características

Habitaciones: 3
Baños: 2
Construidos: 130m2
Parcela: 10.227m2
Calificación energética: B
Private Pool
Garden
Gated
Number of Parking Spaces: 1
Near Schools
Air Conditioning: Pre-Installed
Double Bedrooms: 3
Useable Build Space: 110 Msq.
Terrace: 15 Msq.
Location: Mountain
Parking - Space
Beach: 40000 Meters
Calificación energética
Calificación energética:
B

Descripción

Villas de obra nueva situadas en La Romana. Villas de obra nueva con varios modelos a elegir entre 2 o 3 dormitorios, de una o 2 plantas y construidas con losa o con estructura: dependiendo del modelo y la parcela elegida, se calculará el precio exacto. Todas las villas se construyen en parcelas rústicas de más de 10.000 m2 de los cuales se vallarán 2.500 m2. Las villas disponen de cocina americana con el salón, armarios empotrados, piscina privada, porche y plaza de parking exterior. Hay varias parcelas a elegir, para el cálculo del precio se ha considerado una parcela con un precio de 62.000 eur (si se elige otra parcela, se pagará o abonará la diferencia según el precio de la misma). Realizada en régimen de auto promoción, entrega en unos 12 meses desde la concesión de la licencia. Si busca un entorno tranquilo, cerca de pueblos típicos españoles alejados de la masificación turística, rodeado de montañas, con una amplísima parcela y a unos 30 minutos del mar, esta es su casa. La Romana es un típico pueblo español con todos los servicios para el día a día, rodeado de montañas y con varios parajes naturales en las cercanías donde se pueden hacer rutas de senderismo o mountain bike. Situado a 30 minutos del aeropuerto de Alicante.

Localización

Las mejores ofertas de cambio de divisas e hipotecas

Ahorre 1,000 en su compra de propiedad en España con uno de nuestros socios de cambio de moneda preferidos

¿Necesita financiación para comprar la propiedad española de sus sueños? Trabajamos con Mortgage Direct, el corredor hipotecario internacional número 1 en España

Calcular hipoteca

Cambio de divisas

  • Libras: 328.115 GBP
  • Rublo Ruso: 328.115 RUB
  • Franco Suizo: 347.722 CHF
  • Yuan Chino: 3.026.533 CNY
  • Dolar: 442.714 USD
  • Corona Sueca: 4.089.960 SEK
  • Corona Noruega: 4.140.045 NOK

Costos de compra

Además del precio de compra, debe permitir el 10% del impuesto de transferencia de compra y otros 3.500 euros para cubrir los impuestos y cargos notariales y los cargos legales / de abogado, incluida su solicitud NIE

Si va a comprar con una hipoteca española, deberá permitir 3.500 euros adicionales además de los montos anteriores para cubrir los honorarios de los agentes hipotecarios, las comisiones hipotecarias bancarias, las tasas y arreglos bancarios y los seguros. La hipoteca máxima disponible para no residentes es el 70% del precio de compra

Regístrese AHORA para obtener las últimas actualizaciones de divisas y ofertas de hipotecas, ya que realmente podemos ahorrarle 1,000 y 1,000 en su compra de propiedades en España

La información proporcionada anteriormente está sujeta a cambios y no forma parte de ningún contrato

Solicitar información

Responsable del tratamiento: Solmar Estates, Finalidad del tratamiento: Gestión y control de los servicios ofrecidos a través de la página Web de Servicios inmobiliarios, Envío de información a traves de newsletter y otros, Legitimación: Por consentimiento, Destinatarios: No se cederan los datos, salvo para elaborar contabilidad, Derechos de las personas interesadas: Acceder, rectificar y suprimir los datos, solicitar la portabilidad de los mismos, oponerse altratamiento y solicitar la limitación de éste, Procedencia de los datos: El Propio interesado, Información Adicional: Puede consultarse la información adicional y detallada sobre protección de datos Aquí.

© 2026 Solmar Estates · Nota legal · Privacidad · Términos y condiciones de aplicación · Cookies · Mapa Web · Diseño: Mediaelx

Contactar WhatsApp