
Gut gepflegtes und stilvolles Doppelhaus in der charmanten Urbanisation Entre Golf, einer der beliebtesten und ruhigsten Wohnanlagen von Villamartín.
Das Haus liegt in der ruhigen und privaten Straße Bidasoa, nur wenige Gehminuten von Restaurants, Cafés und Supermärkten entfernt und nur eine kurze Autofahrt von der beliebten Villamartin Plaza und La Fuente. Auch mehrere Golfplätze, darunter Villamartin Golf, sind nur eine kurze Autofahrt entfernt.
Hell und geräumig
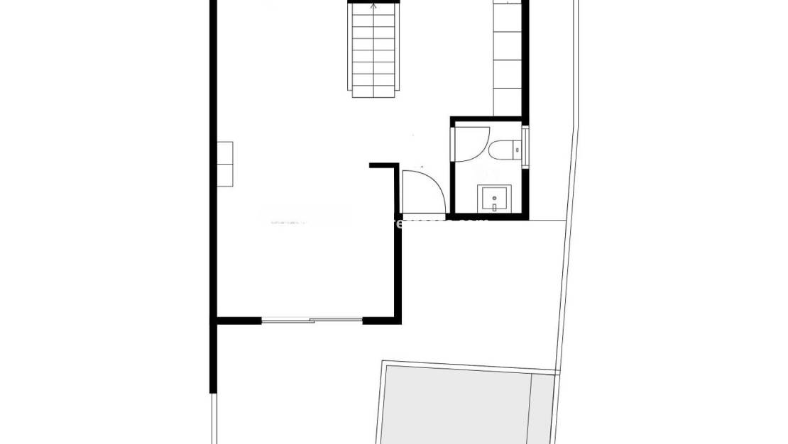
Das helle Wohnzimmer geht nahtlos in die offene Küche und die sonnige, nach Süden ausgerichtete Terrasse über. Es gibt auch eine separate Toilette, ideal für Gäste.
Sie haben Ihren eigenen privaten Pool mit Wärmepumpe, einen pflegeleichten Garten und die Möglichkeit, auf dem Grundstück zu parken.
Mehrere Nachbarn haben sich dafür entschieden, den Essbereich in ein zusätzliches Schlafzimmer umzuwandeln – die Möglichkeiten sind vielfältig.
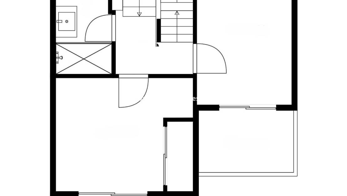
Im Obergeschoss befinden sich zwei geräumige Doppelzimmer, beide mit Einbauschränken und einem privaten Balkon – ideal, um den Morgen mit einer Tasse Kaffee zu beginnen. Das helle, vollständig geflieste Badezimmer ist mit einer geräumigen Dusche ausgestattet.
Auf dem Solarium erwartet Sie eine wunderschöne Dachterrasse mit atemberaubendem Blick auf die Umgebung.
Bezugsfertig & möbliert
Die Wohnung wird möbliert mit stilvollen Einrichtungsgegenständen, Accessoires und praktischen Haushaltsgegenständen verkauft – bringen Sie einfach Ihren Koffer mit und beginnen Sie Ihr neues Leben.
Erstklassige Lage in Villamartin - Los Altos
Los Altos ist bekannt für seine ruhige Atmosphäre, seine hervorragende Infrastruktur und die Nähe zu Stränden, Geschäften und Restaurants. Eine perfekte Kombination aus Platz, Komfort und mediterranem Charme.
Neben Ihrem eigenen privaten Pool haben Sie auch Zugang zum Gemeinschaftspoolbereich der Urbanisation, der sich nur wenige Meter weiter am Ende der Straße befindet. Er ist sehr gepflegt, mit echtem Rasen, Sonnenschirmen und einem Bouleplatz.
Diese Immobilie spricht sowohl Dauerbewohner als auch Urlauber an und wird exklusiv über uns verkauft. Kontaktieren Sie uns noch heute, um eine Besichtigung dieses Juwels in erstklassiger Lage zu vereinbaren!
Sparen Sie 1.000 € beim Kauf Ihrer spanischen Immobilie und kaufen Sie bei einem unserer bevorzugten Geldwechselpartner
Benötigen Sie Finanzmittel, um eine spanische Traumimmobilie zu erwerben? Wir arbeiten mit Mortgage Direct, dem internationalen Hypothekenmakler Nummer 1 in Spanien, zusammen
Zusätzlich zum Kaufpreis müssen Sie 10% für die Kauftransfersteuer und weitere 3.500 Euro zur Deckung der Notarsteuern und -gebühren sowie der Anwalts- / Rechtskosten einschließlich Ihres NIE-Antrags einplanen
Wenn Sie eine spanische Hypothek kaufen möchten, müssen Sie zusätzlich zu den oben genannten Beträgen weitere 3.500 Euro einplanen, um die Gebühren für Hypothekenmakler, die Hypothekenkommission, die Bankbewertung sowie die Gebühren für Vereinbarungen und Versicherungen zu decken. Die maximale Hypothek für Ausländer beträgt 70% des Kaufpreises
Registrieren Sie sich JETZT, um die neuesten Währungsaktualisierungen und Hypothekenangebote zu erhalten, da wir Ihnen beim Kauf Ihrer spanischen Immobilie 1.000 & 1.000 Euro sparen können
Die oben gemachten Angaben sind freibleibend und nicht Vertragsbestandteil