
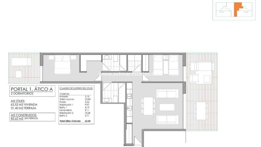
Boutique-Neubauwohnungen in Jávea in der Nähe des Strandes und des Stadtzentrums Exklusives Wohnen an der Costa Blanca Nord Diese Boutique-Neubauwohnanlage befindet sich in Jávea an der begehrten Costa Blanca Nord. Das Projekt wurde so konzipiert, dass es natürliches Licht, Ruhe und das Leben im Freien in sich vereint, und verbindet mediterrane Eleganz mit zeitgenössischer Architektur in einer der begehrtesten Gegenden der Region. Umgeben von der atemberaubenden Landschaft des Naturparks Montgó und nur 1300 Meter vom Strand entfernt, bietet die Wohnanlage ein einzigartiges Mikroklima mit mehr als 300 Sonnentagen im Jahr. Das Stadtzentrum ist nur 500 Meter entfernt und bietet einfachen Zugang zu Supermärkten, Restaurants, Apotheken, lokalen Geschäften und der Bushaltestelle. 22 einzigartige Wohnungen mit privaten Außenbereichen Dieser private und sichere Wohnkomplex besteht aus nur 22 exklusiven 2- und 3-Zimmer-Wohnungen, die sorgfältig auf drei Ebenen verteilt sind, um unterschiedlichen Lebensstilen gerecht zu werden. Die Wohnungen im Erdgeschoss verfügen über private Gärten. Die Wohnungen im ersten Stock verfügen über geräumige Terrassen, die sich ideal zum Entspannen und Essen im Freien eignen. Die Penthäuser bieten große offene Terrassen mit wunderschönem freiem Blick. Alle Immobilien verfügen über einen privaten Parkplatz und einen Abstellraum im Untergeschoss, was Komfort und Praktikabilität gewährleistet. Hochwertige Ausstattung und Energieeffizienz Die Wohnungen werden mit hochwertigen Oberflächen und einer Energieeffizienzklasse A geliefert und verbinden Komfort mit Nachhaltigkeit. Zu den Ausstattungsmerkmalen gehören: Voll installierte Klimaanlage Aerothermisches System für Warmwasser Motorisierte Rollläden in den Wohnzimmern Verstärkte Sicherheitseingangstür Einbauküchen mit Geräten Badezimmer mit Duschwänden Photovoltaik-Solarmodule für den gemeinschaftlichen Verbrauch Die Anlage wurde so konzipiert, dass die Wartungs- und Gemeinschaftskosten minimiert werden, was sie ideal für das ganze Jahr über sowie als Investition macht. Gemeinschaftsbereiche für Ihr Wohlbefinden Die Bewohner können sich in dieser bewachten Wohnanlage an gepflegten Gärten und einem Gemeinschaftspool erfreuen. Das Design fördert Privatsphäre, Entspannung und die Verbindung zur Natur und bietet eine friedliche Atmosphäre in der Nähe des Meeres und der Berge. Erstklassige Lage in der Nähe von Stränden, Golfplätzen und Yachthafen Jávea ist bekannt für seine charmante Altstadt, wunderschöne Buchten und den lebhaften Yachthafen. Der nahe gelegene Hafen von Jávea bietet nautische Aktivitäten und Restaurants am Wasser, während mehrere Golfplätze leicht zu erreichen sind. Entfernungen zu wichtigen Sehenswürdigkeiten Strand 1,3 km Stadtzentrum von Jávea 0,5 km Hafen von Jávea 2 km Javea Golf 5 km La Sella Golf 10 km Flughafen Alicante 100 km Flughafen Valencia 115 km Eine sichere Investition und ein außergewöhnlicher Lebensstil Angesichts der starken nationalen und internationalen Nachfrage bietet dieses Bauprojekt eine hervorragende Gelegenheit, in Jávea zu leben oder zu investieren. Kontaktieren Sie uns noch heute, um weitere Informationen zu erhalten oder eine private Besichtigung dieses exklusiven Boutique-Projekts zu vereinbaren. 857
Sparen Sie 1.000 € beim Kauf Ihrer spanischen Immobilie und kaufen Sie bei einem unserer bevorzugten Geldwechselpartner
Benötigen Sie Finanzmittel, um eine spanische Traumimmobilie zu erwerben? Wir arbeiten mit Mortgage Direct, dem internationalen Hypothekenmakler Nummer 1 in Spanien, zusammen
Zusätzlich zum Kaufpreis müssen Sie 10% für die Kauftransfersteuer und weitere 3.500 Euro zur Deckung der Notarsteuern und -gebühren sowie der Anwalts- / Rechtskosten einschließlich Ihres NIE-Antrags einplanen
Wenn Sie eine spanische Hypothek kaufen möchten, müssen Sie zusätzlich zu den oben genannten Beträgen weitere 3.500 Euro einplanen, um die Gebühren für Hypothekenmakler, die Hypothekenkommission, die Bankbewertung sowie die Gebühren für Vereinbarungen und Versicherungen zu decken. Die maximale Hypothek für Ausländer beträgt 70% des Kaufpreises
Registrieren Sie sich JETZT, um die neuesten Währungsaktualisierungen und Hypothekenangebote zu erhalten, da wir Ihnen beim Kauf Ihrer spanischen Immobilie 1.000 & 1.000 Euro sparen können
Die oben gemachten Angaben sind freibleibend und nicht Vertragsbestandteil