
Neubauwohnungen nur 200 Meter vom Strand in Puerto de Mazarrón entfernt
Exklusives Wohnen an der Küste der Costa Cálida
Wir präsentieren Ihnen eine neue Wohnanlage mit modernen Wohnungen in Puerto de Mazarrón, nur 200 Meter vom wunderschönen Strand Playa Negra entfernt. Dieses Projekt befindet sich in einer der begehrtesten Küstenregionen der Region Murcia und bietet eine außergewöhnliche Gelegenheit, das mediterrane Leben in der Nähe des Meeres, wichtiger Annehmlichkeiten und der Natur zu genießen.
Puerto de Mazarrón ist bekannt für seine atemberaubenden Strände, das kristallklare Wasser, den charmanten Yachthafen und die entspannte Atmosphäre. Mit exzellenten Dienstleistungen, Freizeitmöglichkeiten im Freien und einem ganzjährig warmen Klima ist es ein ideales Ziel sowohl für den dauerhaften Wohnsitz als auch für Urlaubsreisen.
Modernes Design und funktionale Grundrisse
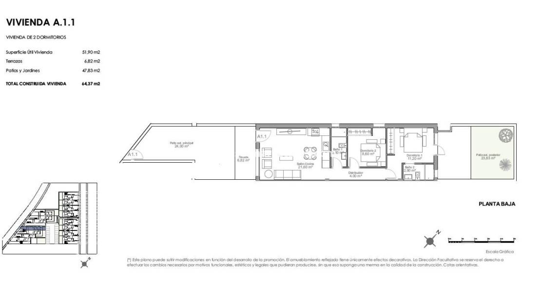
Diese exklusive Wohnanlage besteht aus 30 modernen Häusern mit 2 Schlafzimmern und 1 oder 2 Badezimmern, die sorgfältig entworfen wurden, um Komfort, Stil und Effizienz zu bieten. Der niedrige Komplex umfasst Wohnungen im Erdgeschoss mit privaten Terrassen und Gärten sowie Wohnungen im ersten Stock mit Terrassen und privaten Dachterrassen. Die Häuser verfügen über private Parkplätze entweder auf dem Grundstück oder innerhalb der Wohnanlage.
Die Wohnungen sind so ausgerichtet, dass sie möglichst viel Tageslicht erhalten, und verfügen über offene Wohnbereiche, große Fenster und eine hochwertige Ausstattung. In der ersten Phase werden individuell gestaltbare Wohnungen mit funktionalen Grundrissen angeboten, die an Ihre Lebensgewohnheiten angepasst werden können.
Die Wohnungen im Erdgeschoss verfügen über einen privaten Garten, eine hintere Terrasse und einen Parkplatz auf dem Grundstück oder einen Gemeinschaftsparkplatz.
Die Wohnungen im obersten Stockwerk bieten einen privaten Zugangsbereich im Erdgeschoss, eine Terrasse im ersten Stock und eine Dachterrasse sowie einen zugewiesenen Parkplatz.
Zu den optionalen Extras gehören private Pools auf den Terrassen im Erdgeschoss oder Whirlpools auf den Dachterrassen.
Hochwertige Ausstattung
Jede Immobilie umfasst
Verstärkte Eingangstür
Vorinstallation für Klimaanlage
Komplette Badezimmer mit Möbeln, Spiegeln und Duschwänden
Außenbereiche für Grillabende, Pergolen und Chill-out-Bereiche
Diese Wohnanlage bietet eine sichere, familienfreundliche und etablierte Umgebung, nur wenige Gehminuten von Supermärkten, Schulen, medizinischen Einrichtungen, Parks und dem Strand entfernt.
Erstklassige Lage in Puerto de Mazarrón
Entfernungen zu wichtigen Sehenswürdigkeiten
Playa Negra 0,2 km
Yachthafen von Mazarrón 2 km
Einkaufszentrum Mazarrón Park 5 km
Cartagena 35 km
Murcia Stadt 70 km
Flughafen Murcia Corvera 45 km
Golfplätze Camposol und Hacienda del Álamo 25–35 km
Genießen Sie Wassersport, Wandern und Radfahren in der nahe gelegenen Sierra de las Moreras und entdecken Sie das Beste, was der Lebensstil an der Costa Cálida zu bieten hat.
Machen Sie das Mittelmeer zu Ihrem Zuhause
Verpassen Sie nicht die Gelegenheit, sich eine Neubauimmobilie nur wenige Schritte vom Strand in Puerto de Mazarrón zu sichern. Kontaktieren Sie uns noch heute für Verfügbarkeit, Details und Besichtigungstermine.
Sparen Sie 1.000 € beim Kauf Ihrer spanischen Immobilie und kaufen Sie bei einem unserer bevorzugten Geldwechselpartner
Benötigen Sie Finanzmittel, um eine spanische Traumimmobilie zu erwerben? Wir arbeiten mit Mortgage Direct, dem internationalen Hypothekenmakler Nummer 1 in Spanien, zusammen
Zusätzlich zum Kaufpreis müssen Sie 10% für die Kauftransfersteuer und weitere 3.500 Euro zur Deckung der Notarsteuern und -gebühren sowie der Anwalts- / Rechtskosten einschließlich Ihres NIE-Antrags einplanen
Wenn Sie eine spanische Hypothek kaufen möchten, müssen Sie zusätzlich zu den oben genannten Beträgen weitere 3.500 Euro einplanen, um die Gebühren für Hypothekenmakler, die Hypothekenkommission, die Bankbewertung sowie die Gebühren für Vereinbarungen und Versicherungen zu decken. Die maximale Hypothek für Ausländer beträgt 70% des Kaufpreises
Registrieren Sie sich JETZT, um die neuesten Währungsaktualisierungen und Hypothekenangebote zu erhalten, da wir Ihnen beim Kauf Ihrer spanischen Immobilie 1.000 & 1.000 Euro sparen können
Die oben gemachten Angaben sind freibleibend und nicht Vertragsbestandteil