
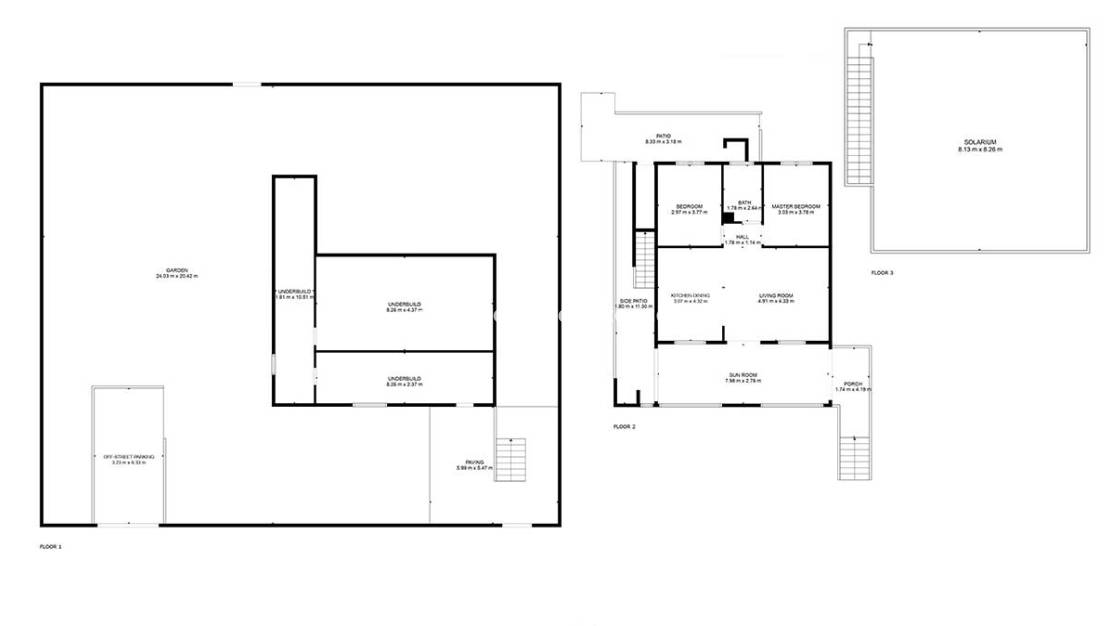
Diese charmante, freistehende Villa mit 2 Schlafzimmern liegt auf einem großzügigen 490 m² großen Grundstück in der ruhigen Wohngegend Blue Lagoon in Villamartin. Umgeben von einem üppigen Garten mit farbenprächtigen Blumen, Sträuchern und Bäumen bietet das Anwesen Privatsphäre, viel Platz und großes Potenzial.
Der Zugang erfolgt über ein Fußgängertor an der Vorder- und Rückseite sowie eine Zufahrt zu einem privaten Parkplatz. Ein Weg vom Haupttor führt zu einer großen Terrasse und einem geschlossenen Wintergarten – ein heller, geräumiger Bereich, der sich ideal zum Entspannen das ganze Jahr über eignet und einen weiten Blick über die Nachbarschaft bietet.
Im Inneren öffnet sich die Eingangstür zu einem großzügigen, offenen Wohnbereich mit einer gemütlichen Sitzecke auf der rechten Seite und einer voll ausgestatteten Küche mit Essbereich auf der linken Seite. Im hinteren Teil befinden sich zwei Schlafzimmer und ein Familienbad. Sowohl die Schlafzimmer als auch die Sitzecke verfügen über Wandheizkörper, und das Haus ist mit einer Gaszentralheizung ausgestattet.
Eine Außentreppe führt hinauf zu einer großen Dachterrasse mit Solarium und beeindruckendem Panoramablick über die Umgebung bis hin zum Mittelmeer. Unterhalb der Terrasse befindet sich ein teilweise ausgebauter Keller, der derzeit als Lagerraum genutzt wird, aber Ausbaupotenzial bietet, sowie ein weiterer Abstellraum im hinteren Bereich.
Das Anwesen verfügt zwar derzeit über keinen Pool, bietet aber ausreichend Platz, um bei Bedarf einen anzulegen. Auch die umliegenden Villen liegen auf großzügigen Grundstücken, wodurch ein angenehmes Gefühl von Weite und Privatsphäre entsteht.
Extras:
Gaszentralheizung · Gepflegter Garten · Großes Untergeschoss mit Ausbaupotenzial · Platz für einen privaten Pool
Standort:
Nur 5 Autominuten von Bars, Restaurants und Geschäften entfernt und nur 8 Minuten vom Boulevard La Zenia. Wunderschöne Strände und mehrere erstklassige Golfplätze befinden sich ebenfalls in der Nähe. Die internationalen Flughäfen Alicante und Murcia sind jeweils in etwa 45 Minuten mit dem Auto zu erreichen.
Dieses beliebte Haus bietet Komfort, großzügigen Außenbereich und fantastisches Potenzial – ein idealer ständiger Wohnsitz oder ein perfektes Feriendomizil.
Warum Solmar Estates wählen?
Wir finden Ihre Traumimmobilie an der Costa Blanca und in Murcia. In diesen sonnigen Regionen bieten wir Ihnen eine große Auswahl an Bestandsimmobilien und Neubauprojekten. Bei uns finden Sie stets eine Vielzahl an Wohnungen, Häusern und freistehenden Villen.
Über den unten stehenden Link können Sie alle unsere Immobilien durchsuchen:
Sparen Sie 1.000 € beim Kauf Ihrer spanischen Immobilie und kaufen Sie bei einem unserer bevorzugten Geldwechselpartner
Benötigen Sie Finanzmittel, um eine spanische Traumimmobilie zu erwerben? Wir arbeiten mit Mortgage Direct, dem internationalen Hypothekenmakler Nummer 1 in Spanien, zusammen
Zusätzlich zum Kaufpreis müssen Sie 10% für die Kauftransfersteuer und weitere 3.500 Euro zur Deckung der Notarsteuern und -gebühren sowie der Anwalts- / Rechtskosten einschließlich Ihres NIE-Antrags einplanen
Wenn Sie eine spanische Hypothek kaufen möchten, müssen Sie zusätzlich zu den oben genannten Beträgen weitere 3.500 Euro einplanen, um die Gebühren für Hypothekenmakler, die Hypothekenkommission, die Bankbewertung sowie die Gebühren für Vereinbarungen und Versicherungen zu decken. Die maximale Hypothek für Ausländer beträgt 70% des Kaufpreises
Registrieren Sie sich JETZT, um die neuesten Währungsaktualisierungen und Hypothekenangebote zu erhalten, da wir Ihnen beim Kauf Ihrer spanischen Immobilie 1.000 & 1.000 Euro sparen können
Die oben gemachten Angaben sind freibleibend und nicht Vertragsbestandteil