+34 966 116 650 +34 678 933 450 info@solmarestates.com
C.C. Playa Flamenca Unit 129, Calle Niagara, 62, 03189 Playa Flamenca, Alicante, Spain

Freistehende Villa · Neubau Costa Blanca South · Orihuela · Vistabella Golf

Ref.: N-86349
114m2
298m2
3
2
Ja

Charakteristik

Schlafzimmer: 3
Das Badezimmer: 2
Gebaut: 114m2
Grundstück: 298m2
Nennleistung: B
Location: Urbanisation
Double Bedrooms: 3
Solarium: Yes
Near Golf / Golf Resort Property
Useable Build Space: 100 Msq.
Beach: 14000 Meters
Parking - Space
Terrace: 121 Msq.
Private Pool
Gated
Number of Parking Spaces: 1
Near Schools
Near Commercial Center
Nennleistung
Nennleistung:
B

Beschreibung

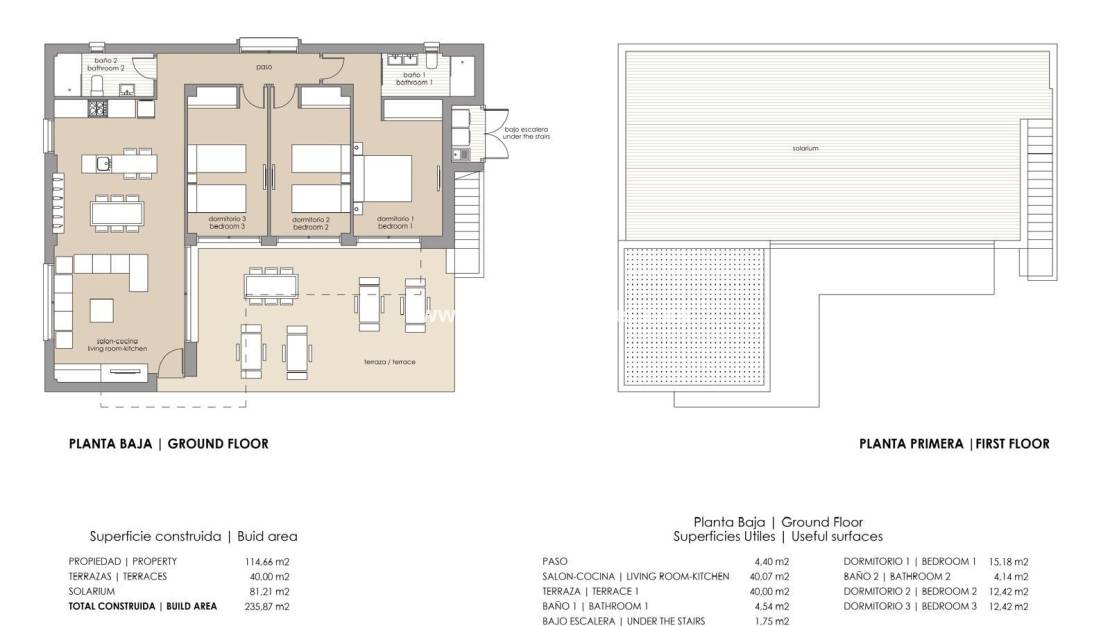
Neubau-Villen im Vistabella Golf Resort – Orihuela Erleben Sie modernes mediterranes Wohnen im Herzen der Costa Blanca mit diesen atemberaubenden Neubau-Villen im Vistabella Golf Resort. Zwischen San Miguel de Salinas und Los Montesinos, in der Gemeinde Orihuela, bietet diese exklusive Wohnanlage Luxus, Komfort und eine unschlagbare Lage für Golfbegeisterte und Lifestyle-Suchende gleichermaßen. Zwei unterschiedliche Villenmodelle Käufer können zwischen zwei eleganten Designs wählen: Ebenerdige Villen mit 3 Schlafzimmern, 2 Bädern und einer Dachterrasse. Zweistöckige Villen mit 4 Schlafzimmern, 3 Bädern und einer Sonnenterrasse im ersten Stock. Beide Modelle stehen auf Grundstücken von ca. 300 m² und verfügen über einen privaten Pool und einen Parkplatz auf dem Grundstück. Premium-Qualität und moderner Komfort Jede Villa verfügt über eine luxuriöse Ausstattung, darunter eine voll installierte Klimaanlage, Einbauküchen mit Geräten, Außenbeleuchtung, elektrische Rollläden und elegante Duschwände in den Badezimmern. Die Kombination aus Stil und Funktionalität sorgt für ein Zuhause, das sowohl schön als auch praktisch ist. Exklusiver Golf-Resort-Lifestyle Das Vistabella Golf Resort ist eine bewachte Wohnanlage mit einem 18-Loch-Golfplatz, Paddle-Tennisplätzen, einer Bowlingbahn, einem Supermarkt und einer Vielzahl von Bars und Restaurants. Zukünftige Erweiterungen werden das Resort zu einem echten 5-Sterne-Resort machen, mit geplanten Ergänzungen wie einer Champagner-Bar, einer Sushi-Bar, einem Spa-Hotel, einem künstlichen Strand, einem Tennisplatz, einem Fußballplatz und einer Gourmet-Bar. Erstklassige Lage an der Costa Blanca Das Resort bietet eine hervorragende Anbindung an die besten Strände, Golfplätze und Dienstleistungen der Region. Die Entfernungen zu den wichtigsten Sehenswürdigkeiten betragen: Strand von La Mata: 18 km Strand von Guardamar del Segura: 20 km Torrevieja: 15 km Flughafen Alicante: 55 km Flughafen Murcia: 68 km Villamartín Golf: 12 km Las Colinas Golf & Country Club: 14 km Ihr Traumhaus erwartet Sie Ob als Dauerwohnsitz, Ferienhaus oder Mietobjekt – diese neu gebauten Villen im Vistabella Golf Resort bieten außergewöhnlichen Wert in einer der begehrtesten Küstenregionen Spaniens. Kontaktieren Sie uns noch heute, um einen Besichtigungstermin zu vereinbaren und sich Ihren Platz in dieser luxuriösen Golfanlage zu sichern.

Ort

Die allerbesten Devisen- und Hypothekenangebote

Sparen Sie 1.000 € beim Kauf Ihrer spanischen Immobilie und kaufen Sie bei einem unserer bevorzugten Geldwechselpartner

Benötigen Sie Finanzmittel, um eine spanische Traumimmobilie zu erwerben? Wir arbeiten mit Mortgage Direct, dem internationalen Hypothekenmakler Nummer 1 in Spanien, zusammen

Berechnen Hypotheken

Geldwechsel

  • Pfund: 407.887 GBP
  • Russischen Rubel: 407.887 RUB
  • Schweizerfranken: 432.261 CHF
  • Chinesischen Yuan: 3.762.348 CNY
  • Dollar: 550.347 USD
  • Schwedische Krone: 5.084.318 SEK
  • Die norwegische Krone: 5.146.580 NOK

Anschaffungskosten

Zusätzlich zum Kaufpreis müssen Sie 10% für die Kauftransfersteuer und weitere 3.500 Euro zur Deckung der Notarsteuern und -gebühren sowie der Anwalts- / Rechtskosten einschließlich Ihres NIE-Antrags einplanen

Wenn Sie eine spanische Hypothek kaufen möchten, müssen Sie zusätzlich zu den oben genannten Beträgen weitere 3.500 Euro einplanen, um die Gebühren für Hypothekenmakler, die Hypothekenkommission, die Bankbewertung sowie die Gebühren für Vereinbarungen und Versicherungen zu decken. Die maximale Hypothek für Ausländer beträgt 70% des Kaufpreises

Registrieren Sie sich JETZT, um die neuesten Währungsaktualisierungen und Hypothekenangebote zu erhalten, da wir Ihnen beim Kauf Ihrer spanischen Immobilie 1.000 & 1.000 Euro sparen können

Die oben gemachten Angaben sind freibleibend und nicht Vertragsbestandteil

© 2026 Solmar Estates · Rechtlicher Hinweis · Privatsphäre · Geschäftsbedingungen gelten · Cookies · Web-Karte · Entwurf: Mediaelx

Kontakt WhatsApp