+34 966 116 650 +34 678 933 450 info@solmarestates.com
C.C. Playa Flamenca Unit 129, Calle Niagara, 62, 03189 Playa Flamenca, Alicante, Spain

Freistehende Villa · Neubau Costa Blanca South · Aspe · Poligono 19

Ref.: N-89234
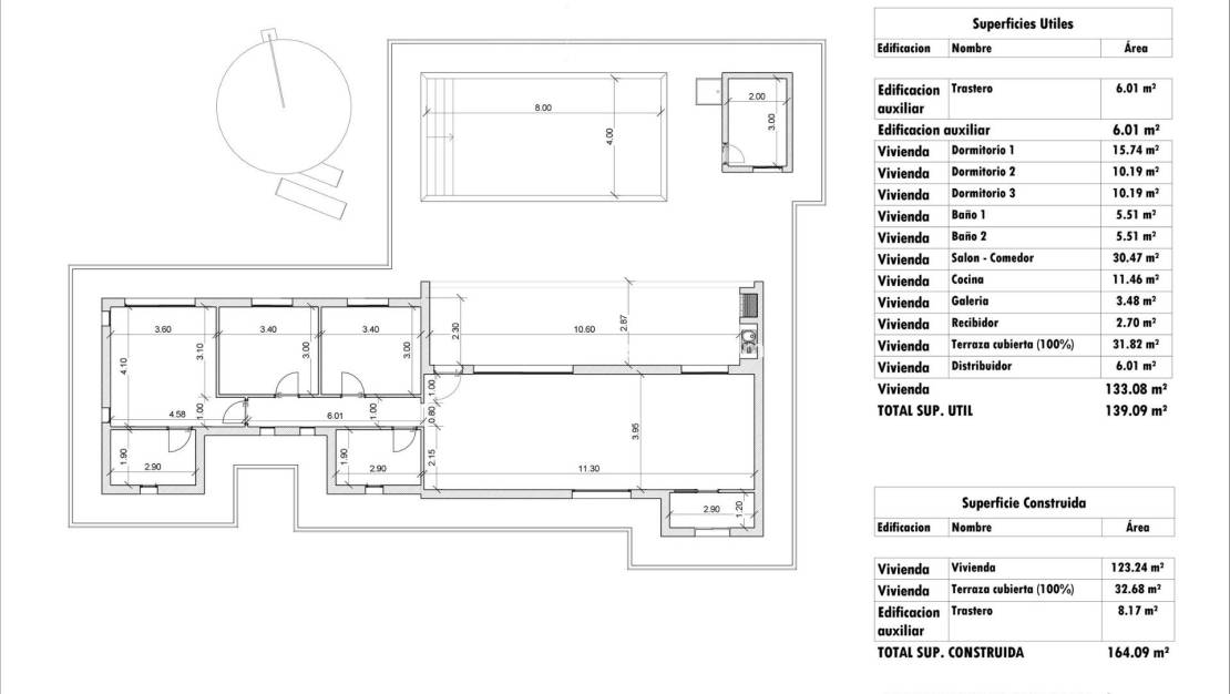
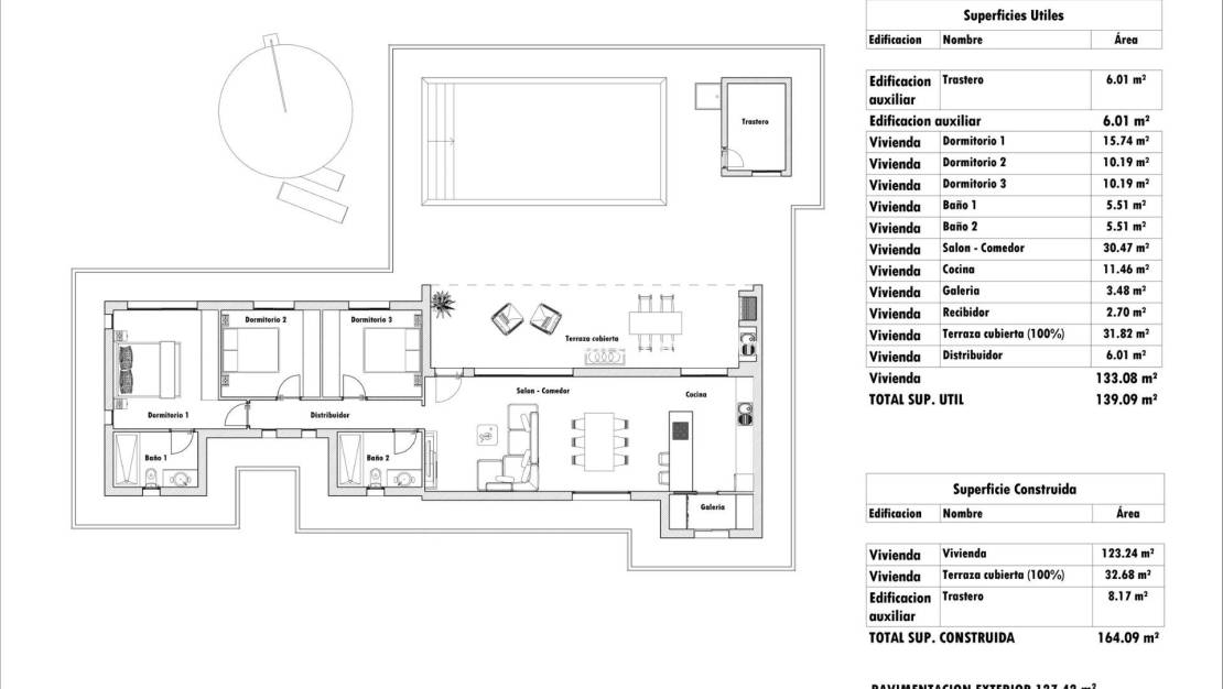
164m2
13.172m2
3
2
Ja

Charakteristik

Schlafzimmer: 3
Das Badezimmer: 2
Gebaut: 164m2
Grundstück: 13.172m2
Nennleistung: B
Private Pool
Garden
Gated
Number of Parking Spaces: 1
Near Schools
Air Conditioning: Pre-Installed
Double Bedrooms: 3
Location: Mountain
Beach: 25000 Meters
Terrace: 32 Msq.
Parking - Space
Useable Build Space: 139 Msq.
Storage / Trastero
Nennleistung
Nennleistung:
B

Beschreibung

Neubauvillen in der Gemeinde Aspe. Neubauvillen mit verschiedenen Modellen zur Auswahl mit 2, 3 oder 4 Schlafzimmern, 1 oder 2 Etagen und in Plattenbauweise oder mit Struktur: Je nach Modell und gewähltem Grundstück wird der genaue Preis berechnet. Alle Villen werden auf rustikalen Grundstücken von mehr als 10.000 m² gebaut, von denen etwa 2.500 m² eingezäunt werden. Die Villen verfügen über eine offene Küche mit Wohnzimmer, Einbauschränke, einen privaten Pool, eine Veranda, einen Abstellraum und einen Außenparkplatz. Es stehen mehrere Grundstücke zur Auswahl. Für die Preisberechnung wurde ein Grundstück mit einem Preis von 77.500 Euro zugrunde gelegt (bei Wahl eines anderen Grundstücks ist die Differenz entsprechend dem Preis des Grundstücks zu zahlen). Die Fertigstellung erfolgt im Selbstbau, die Übergabe erfolgt ca. 12 Monate nach Erteilung der Baugenehmigung. Wenn Sie eine ruhige Umgebung suchen, in der Nähe von typisch spanischen Dörfern, fernab vom Massentourismus, umgeben von Bergen, mit einem sehr großen Grundstück und nur etwa 30 Minuten vom Meer entfernt, dann ist dies Ihr Zuhause. Aspe ist ein typisch spanisches Dorf mit allen Dienstleistungen für den täglichen Bedarf, umgeben von Bergen und mit mehreren Naturlandschaften in der Nähe, in denen Sie Wanderungen oder Mountainbike-Touren unternehmen können. Es liegt 25 km vom Strand, 9 km von Elche und etwa 20 km vom Flughafen Alicante entfernt.

Ort

Die allerbesten Devisen- und Hypothekenangebote

Sparen Sie 1.000 € beim Kauf Ihrer spanischen Immobilie und kaufen Sie bei einem unserer bevorzugten Geldwechselpartner

Benötigen Sie Finanzmittel, um eine spanische Traumimmobilie zu erwerben? Wir arbeiten mit Mortgage Direct, dem internationalen Hypothekenmakler Nummer 1 in Spanien, zusammen

Berechnen Hypotheken

Geldwechsel

  • Pfund: 399.294 GBP
  • Russischen Rubel: 399.294 RUB
  • Schweizerfranken: 423.154 CHF
  • Chinesischen Yuan: 3.683.082 CNY
  • Dollar: 538.752 USD
  • Schwedische Krone: 4.977.200 SEK
  • Die norwegische Krone: 5.038.150 NOK

Anschaffungskosten

Zusätzlich zum Kaufpreis müssen Sie 10% für die Kauftransfersteuer und weitere 3.500 Euro zur Deckung der Notarsteuern und -gebühren sowie der Anwalts- / Rechtskosten einschließlich Ihres NIE-Antrags einplanen

Wenn Sie eine spanische Hypothek kaufen möchten, müssen Sie zusätzlich zu den oben genannten Beträgen weitere 3.500 Euro einplanen, um die Gebühren für Hypothekenmakler, die Hypothekenkommission, die Bankbewertung sowie die Gebühren für Vereinbarungen und Versicherungen zu decken. Die maximale Hypothek für Ausländer beträgt 70% des Kaufpreises

Registrieren Sie sich JETZT, um die neuesten Währungsaktualisierungen und Hypothekenangebote zu erhalten, da wir Ihnen beim Kauf Ihrer spanischen Immobilie 1.000 & 1.000 Euro sparen können

Die oben gemachten Angaben sind freibleibend und nicht Vertragsbestandteil

© 2026 Solmar Estates · Rechtlicher Hinweis · Privatsphäre · Geschäftsbedingungen gelten · Cookies · Web-Karte · Entwurf: Mediaelx

Kontakt WhatsApp